← Newham

Status

Pending Commercial
Received
Not recorded
New homes
0

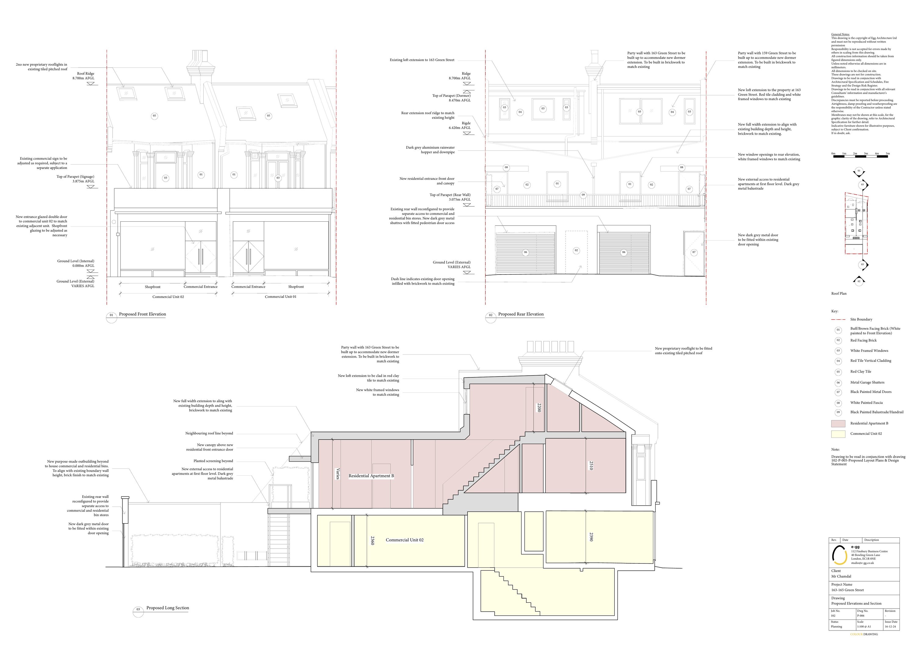
Full proposal

Subdivision of retail space into two separate units at ground floor, including adjustments to existing shopfront façade and partial change of use. Rear infill extensions at first floor level and loft conversion to residential accommodation, including adjustments to fenestration and rear boundary wall.

Have your say

Your comment matters. Councils must consider every representation that raises material planning considerations.

Write a comment