← Newham

Status

Pending House extension
Received
Not recorded
New homes
0

Full proposal

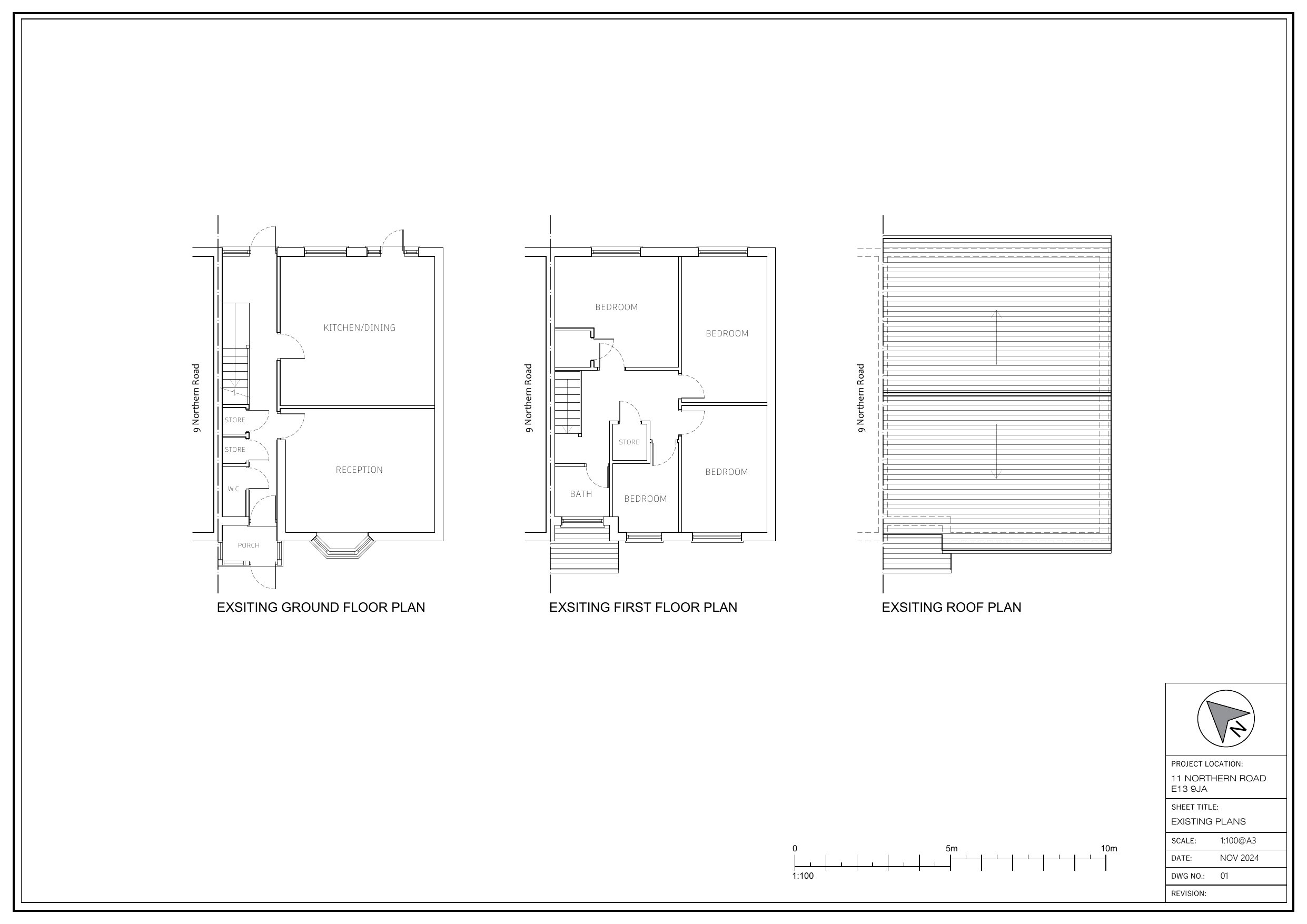
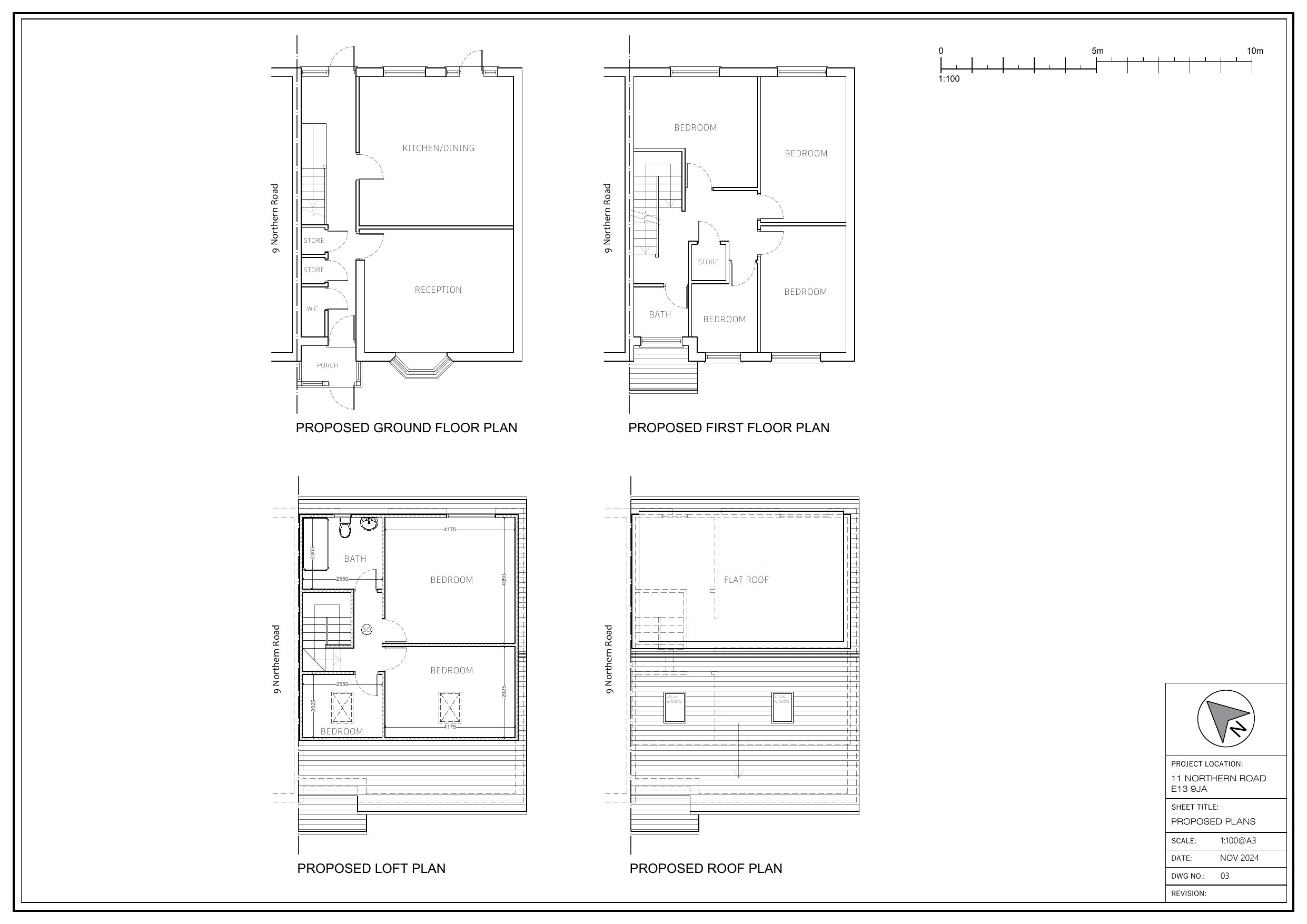
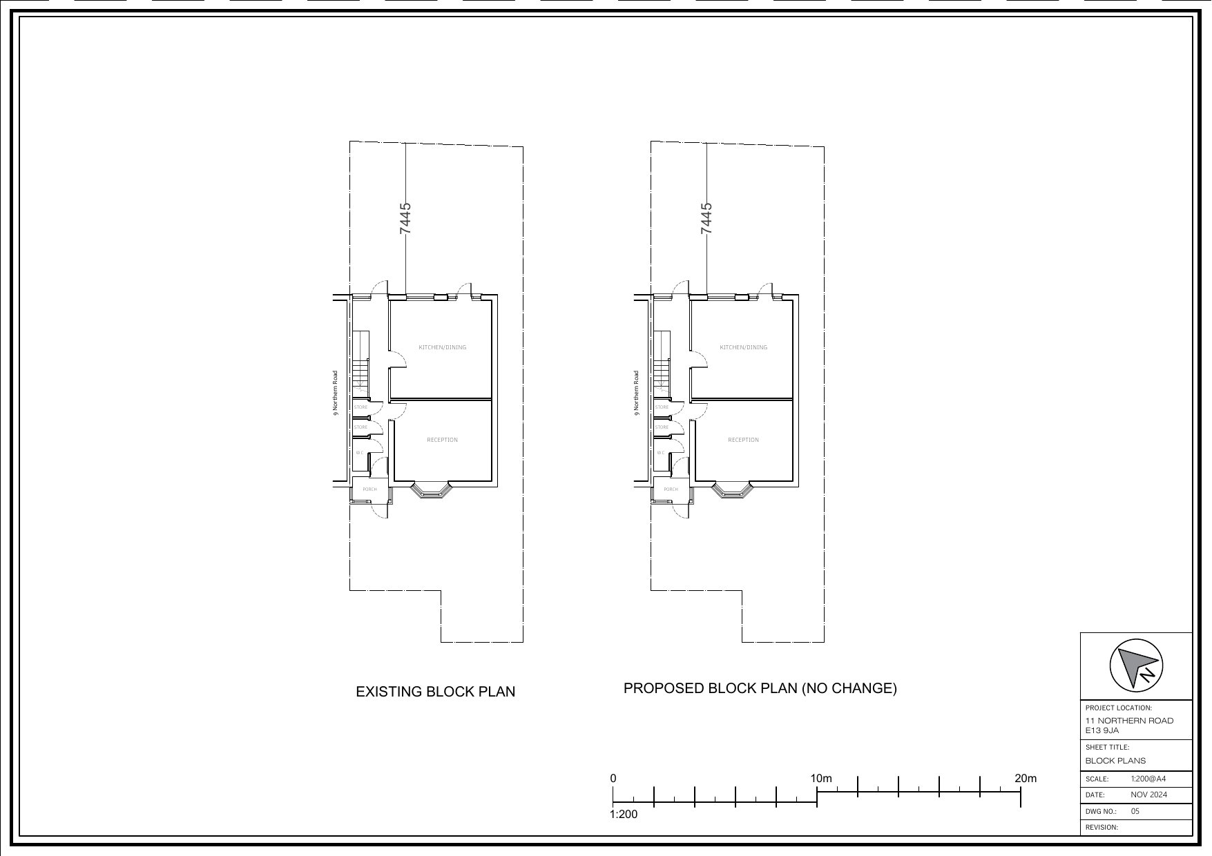
Erection of rear dormer roof extension and installation of 2x front rooflights.

Have your say

Your comment matters. Councils must consider every representation that raises material planning considerations.

Write a comment