← Newham

Status

Pending House extension
Received
Not recorded
New homes
0

Full proposal

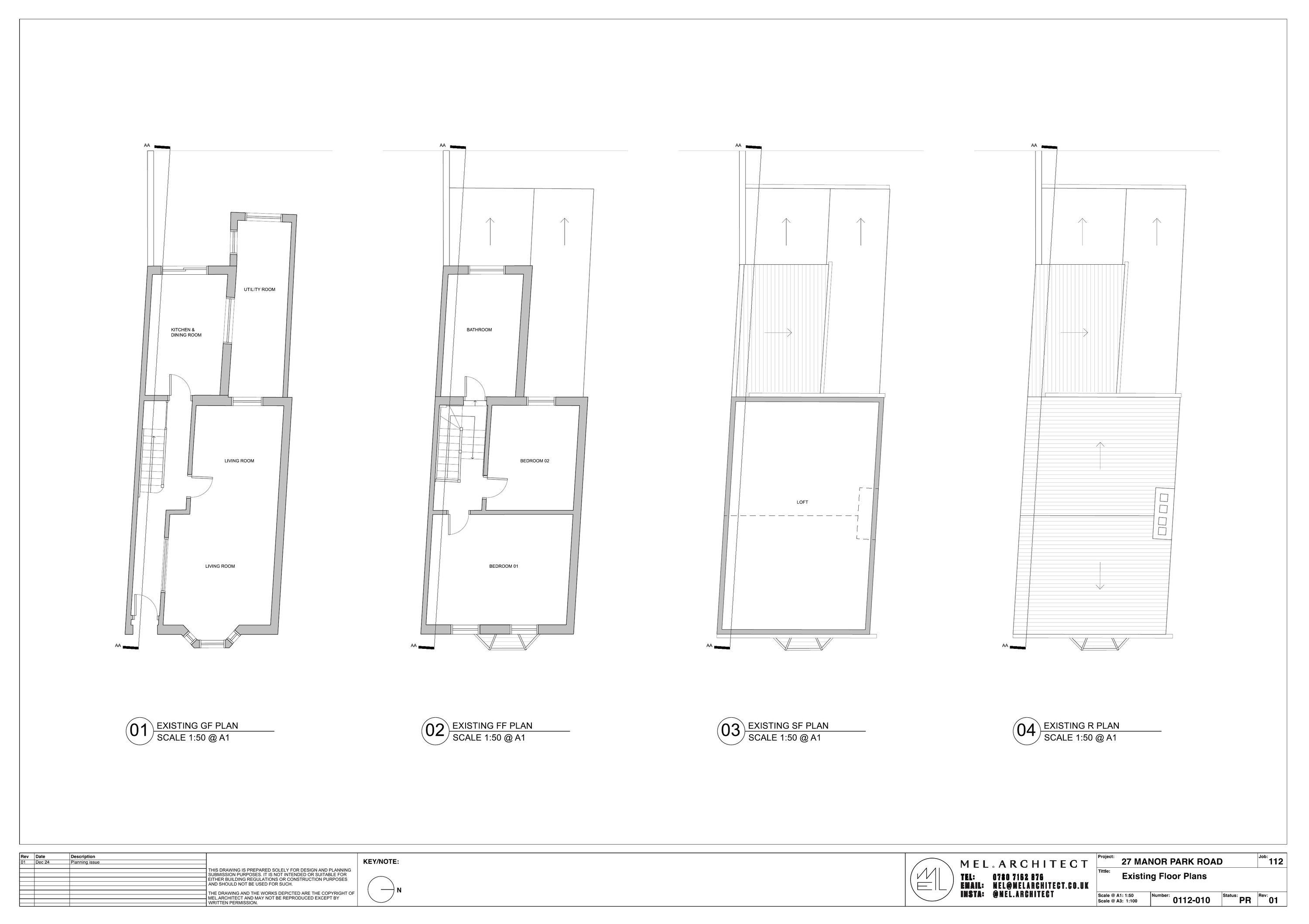
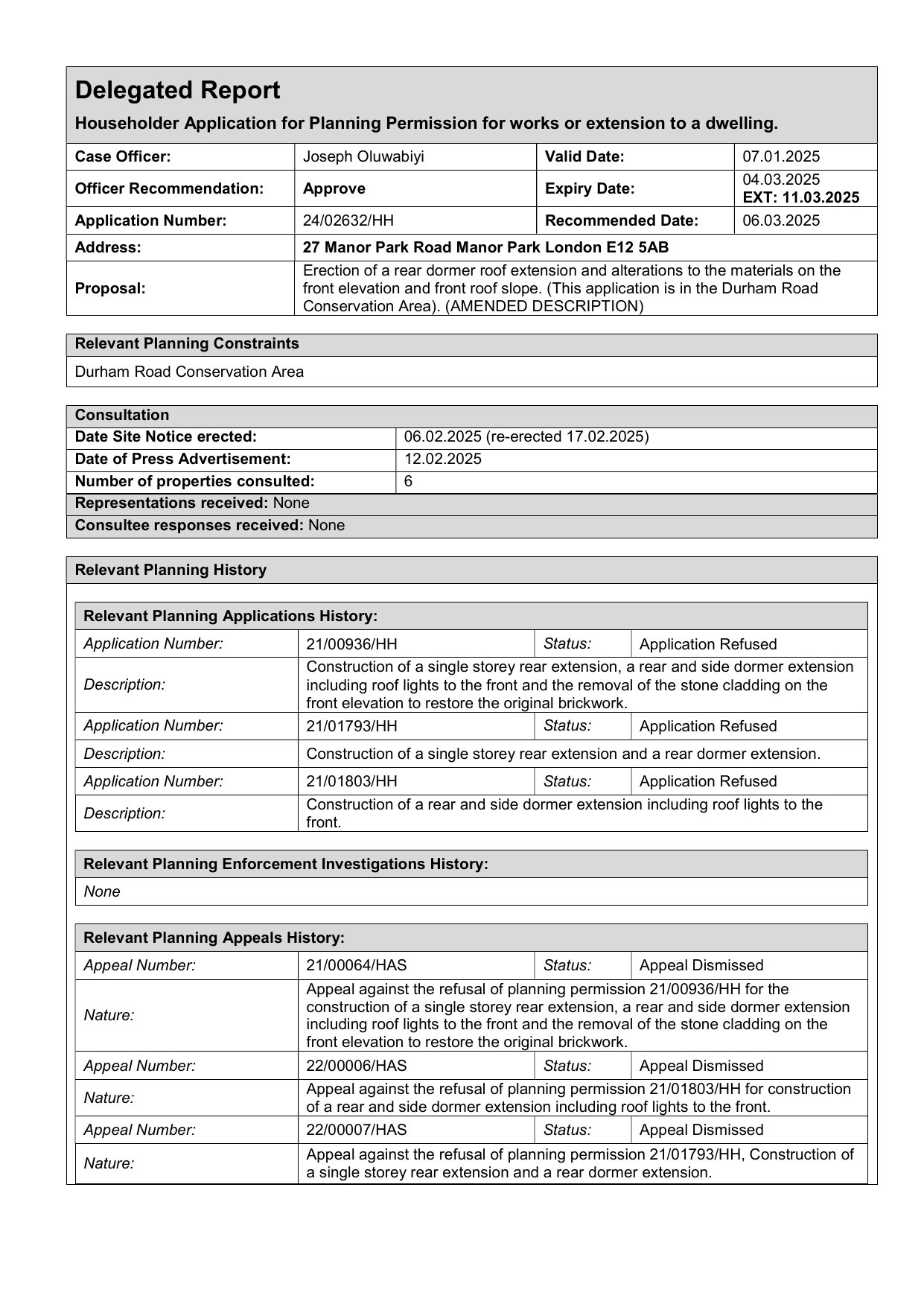
Erection of a rear dormer roof extension and alterations to the materials on the front elevation and front roof slope. (This application is in the Durham Road Conservation Area). (AMENDED DESCRIPTION)

Documents

Application Form (Public)
Archived · Original link
Drawing
Archived · Original link
Decision
Archived · Original link
Decision
Archived · Original link
Drawing
Archived · Original link

Have your say

Your comment matters. Councils must consider every representation that raises material planning considerations.

Write a comment