Application
24/02649/FUL
Newham · IDOX
Status
Unknown status
New housing
Received
n/a
New dwellings
4
What you can do
Take Action
Make your voice heard. Authorities need to hear from people who support new homes.
Summary
Construct two-storey building containing four self-contained one-bedroom flats; add three rear windows.
Full Proposal
Construction of a two-storey building comprising 4x self-contained one-bedroom flats (Class C3), and the addition of three new windows on the rear (north) elevation of Kendon House.
Detail pages
- View live detail on council site
- No archived detail page available.
Documents
APPLICATIONFORMREDACTED
Application Form (Public)
Not downloaded
· Council link
BIN/BIKE STORE DETAIL
Documentation
Not downloaded
· Council link
BIODIVERSITY STATEMENT AND BIODIVERSITY GAIN PLAN
Documentation
Not downloaded
· Council link
CIL FORM 1
CIL
Not downloaded
· Council link
COVER LETTER
Documentation
Not downloaded
· Council link
DAYLIGHT AND SUNLIGHT ASSESSMENT
Documentation
Not downloaded
· Council link
DECISION NOTICE
Decision
Not downloaded
· Council link
DELEGATED REPORT
Decision
Not downloaded
· Council link
DESIGN AND ACCESS STATEMENT
Documentation
Not downloaded
· Council link
ENERGY STATEMENT
Documentation
Not downloaded
· Council link
EXISTING DRAWINGS
Drawing
Not downloaded
· Council link
EXISTING SITE AND GF PLAN
Revised Drawing
Not downloaded
· Council link
FIRE STATEMENT
Documentation
Not downloaded
· Council link
KENDON HOUSE PROPOSED REAR ELEVATION
Drawing
Not downloaded
· Council link
LOCATION PLAN
Drawing
Not downloaded
· Council link
PLANNING STATEMENT
Documentation
Not downloaded
· Council link
PROPOSED DRAWINGS
Superseded
Not downloaded
· Council link
PROPOSED ELEVATION 01
Revised Drawing
Not downloaded
· Council link
PROPOSED ELEVATION 02
Revised Drawing
Not downloaded
· Council link
PROPOSED FIRST FLOOR PLAN
Revised Drawing
Not downloaded
· Council link
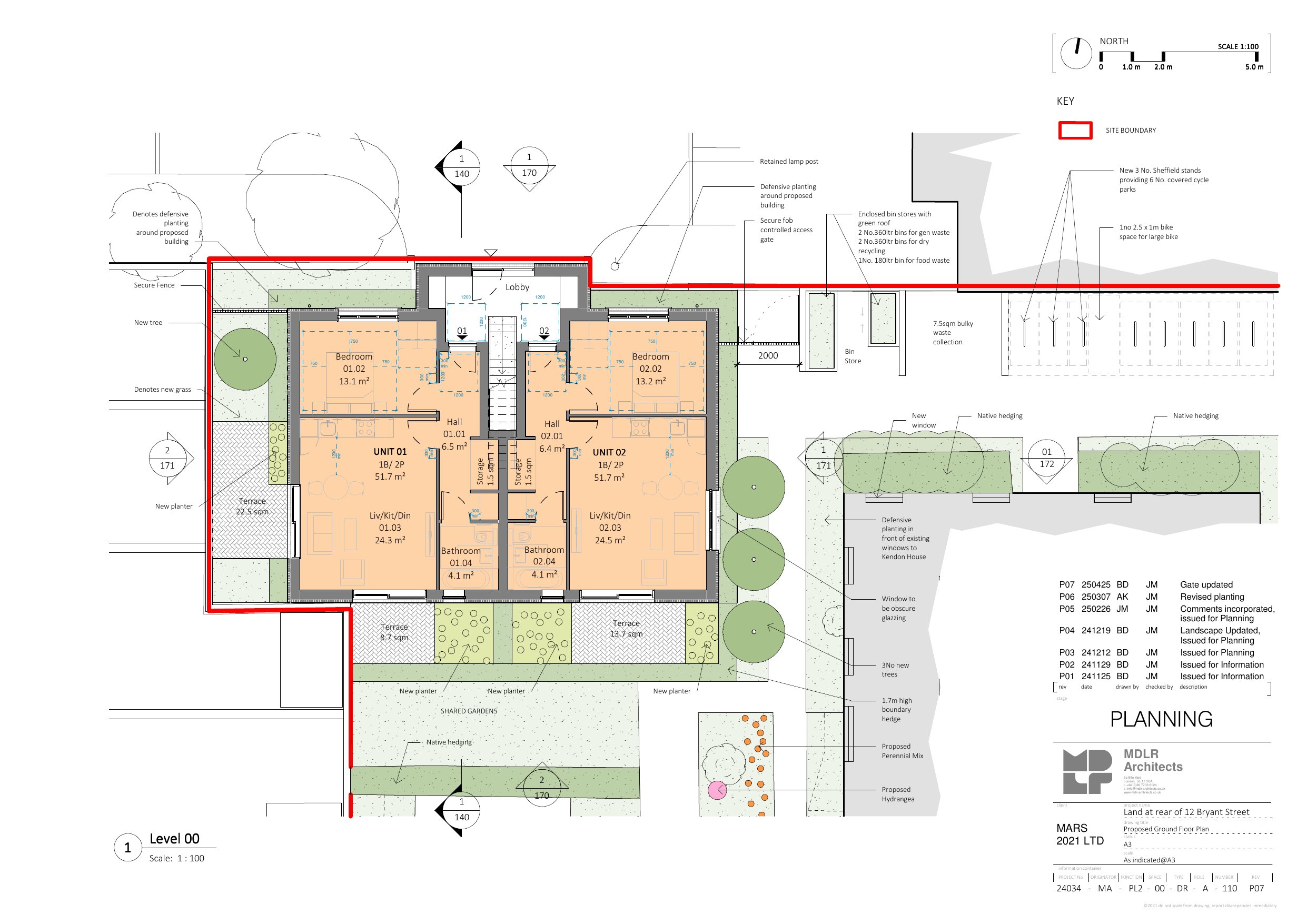
PROPOSED GROUND FLOOR PLAN
Revised Drawing
Not downloaded
· Council link
PROPOSED PLANS
Superseded
Archived copy
· Council link
PROPOSED ROOF PLAN
Revised Drawing
Not downloaded
· Council link
PROPOSED SECTION 01
Revised Drawing
Not downloaded
· Council link
PROPOSED SITE AND LANDSCAPING PLAN
Revised Drawing
Not downloaded
· Council link
SIGNED S106 AGREEMENT
Decision
Not downloaded
· Council link
TRANSPORT NOTE
Documentation
Not downloaded
· Council link