← Newham

Status

Pending House extension
Received
Not recorded
New homes
0

Full proposal

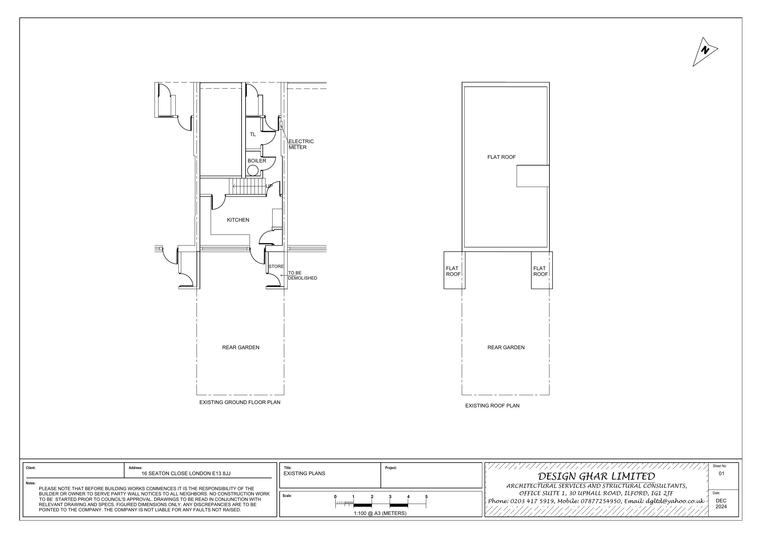
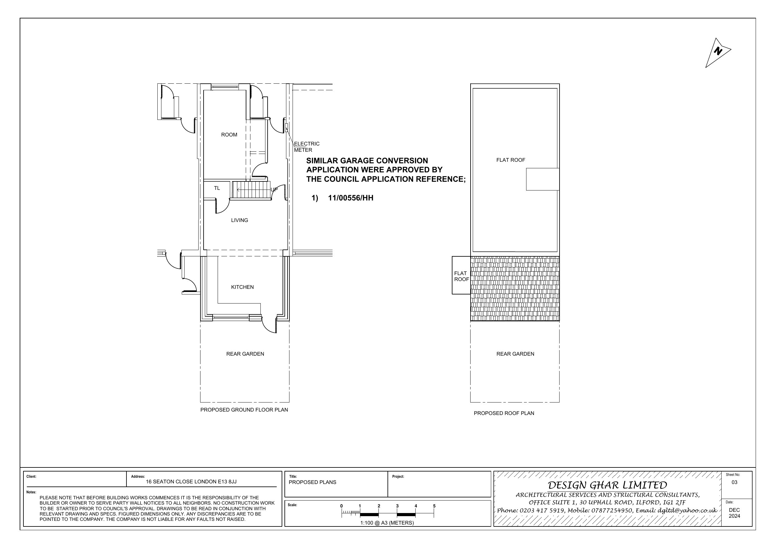
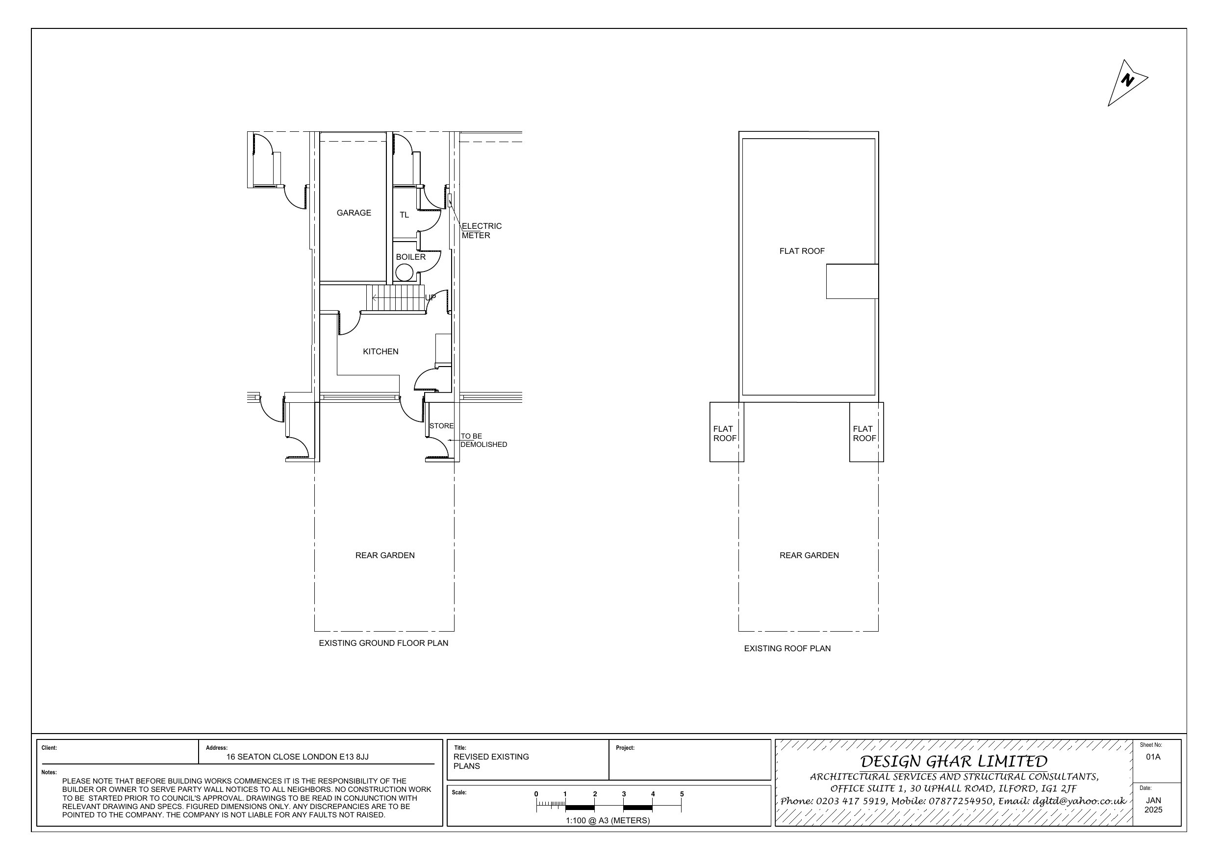
Conversion of garage to provide habitable accommodation including alterations to front elevation and erection of single storey ground floor rear extension.

Documents

Drawing
Archived · Original link
Drawing
Archived · Original link
Drawing
Archived · Original link
Drawing
Archived · Original link
Drawing
Archived · Original link
Application Form (Public)
Archived · Original link
Decision
Archived · Original link
Decision
Archived · Original link
Revised Drawing
Archived · Original link
Drawing
Archived · Original link

Have your say

Your comment matters. Councils must consider every representation that raises material planning considerations.

Write a comment