← Newham

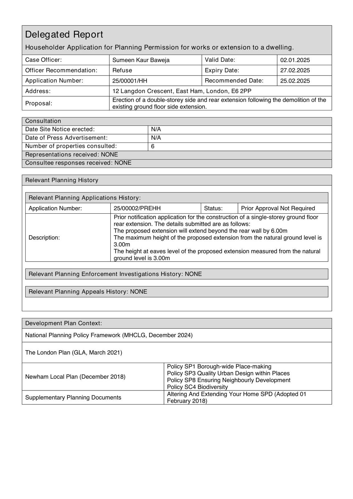
Status

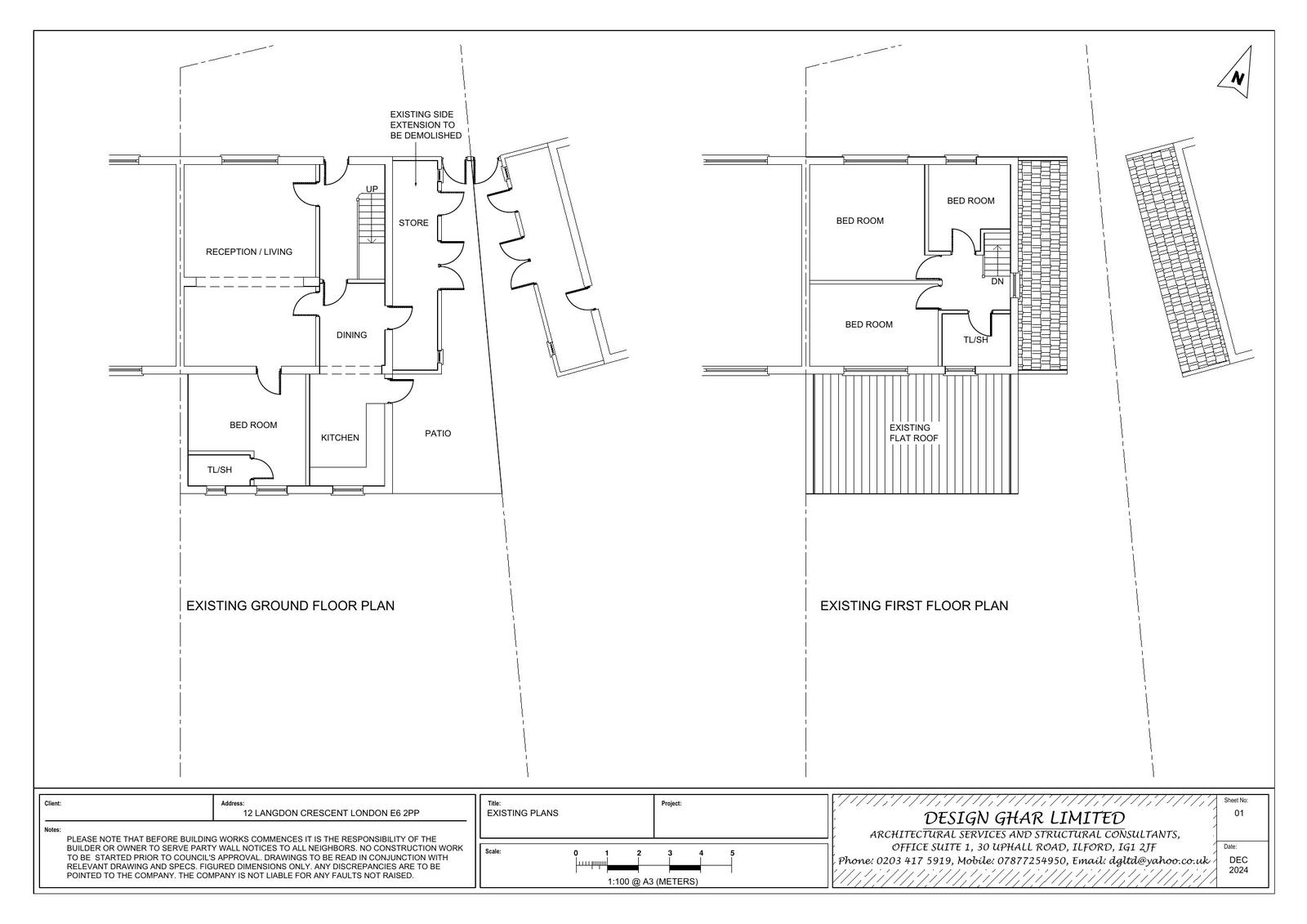
Pending House extension
Received
Not recorded
New homes
0

Full proposal

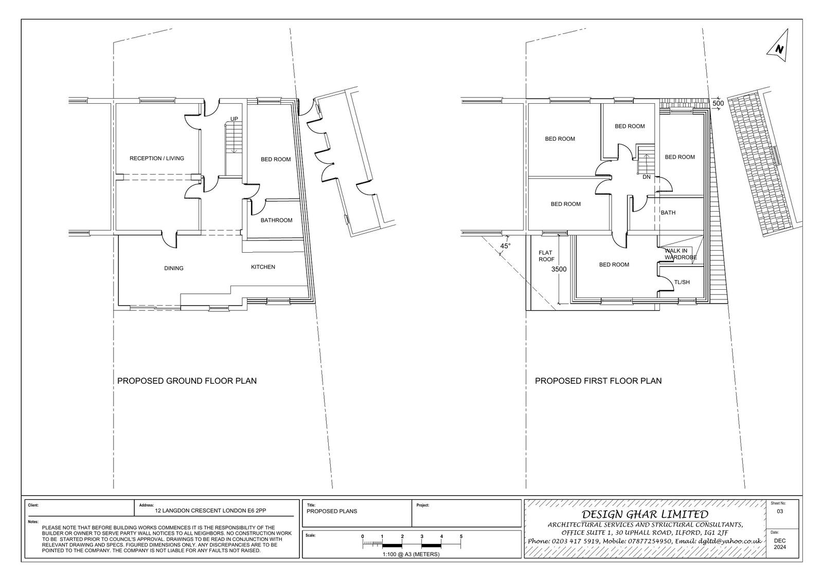
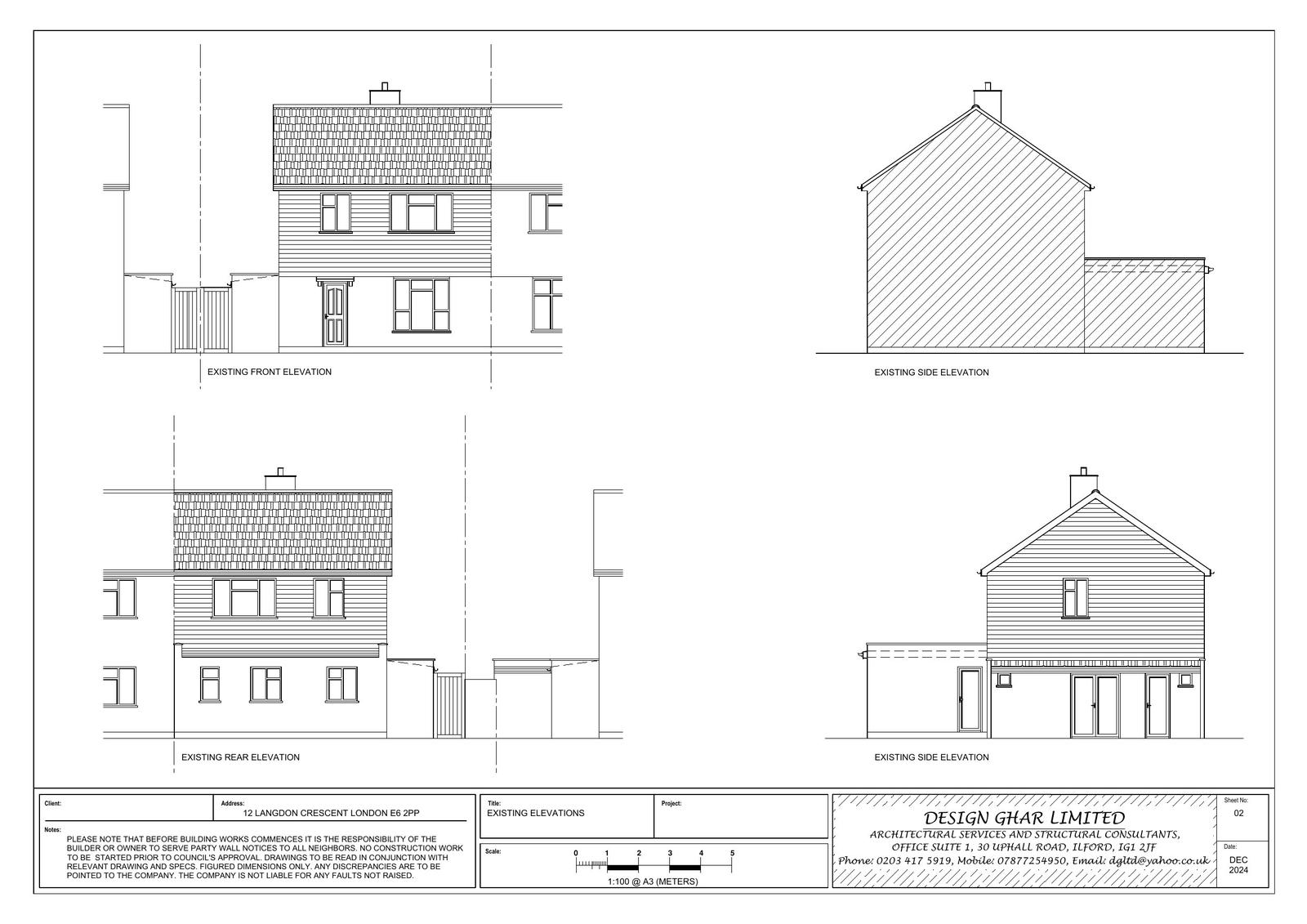
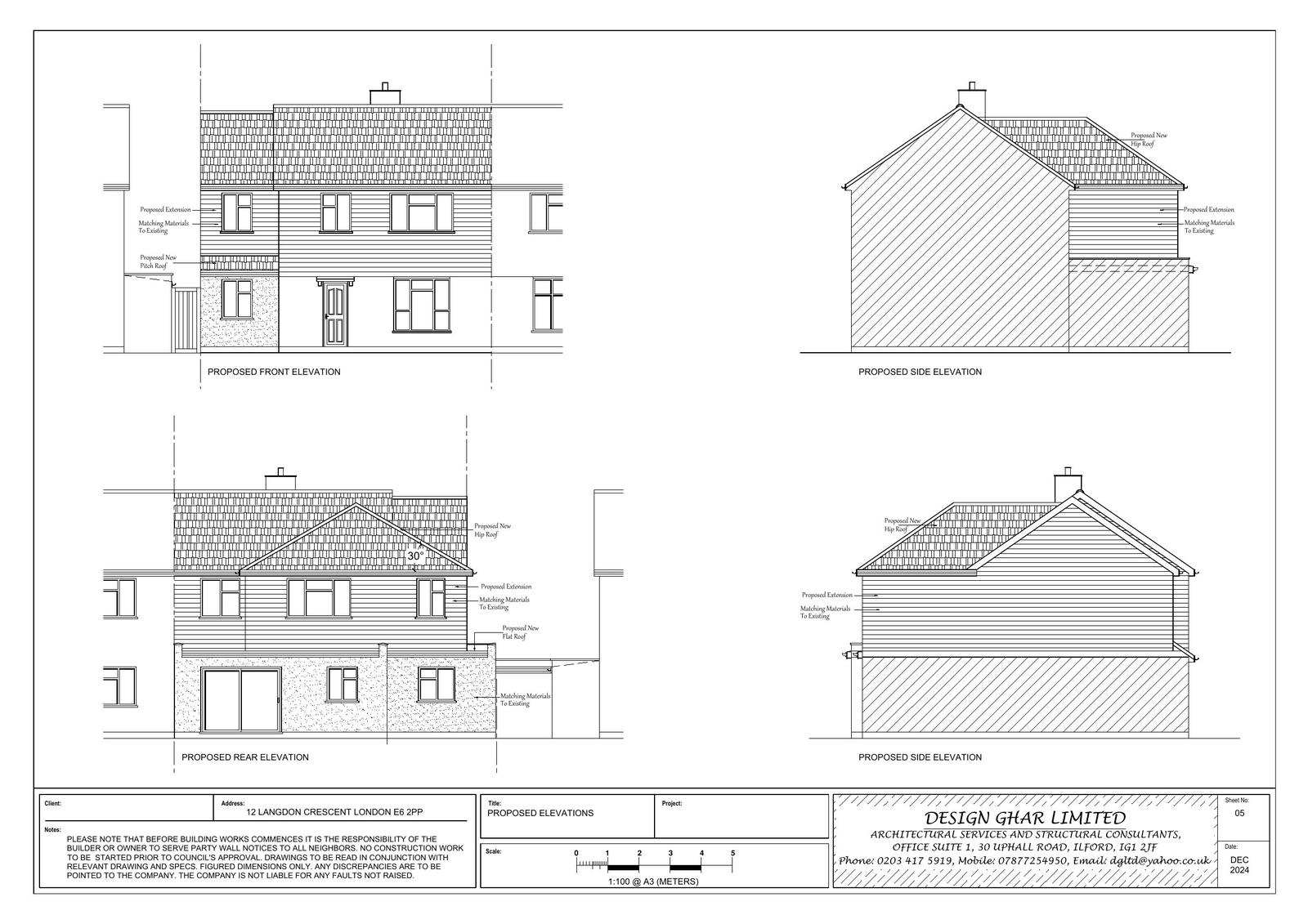
Erection of a double-storey side and rear extension following the demolition of the existing ground floor side extension.

Have your say

Your comment matters. Councils must consider every representation that raises material planning considerations.

Write a comment