← Newham

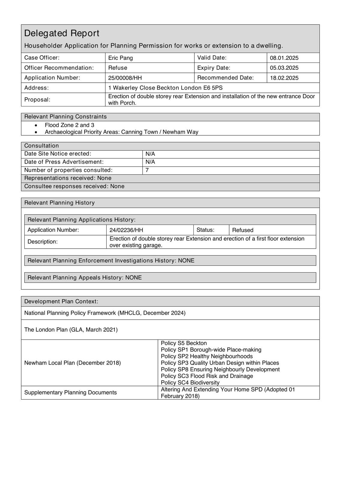
Status

Pending House extension
Received
Not recorded
New homes
0

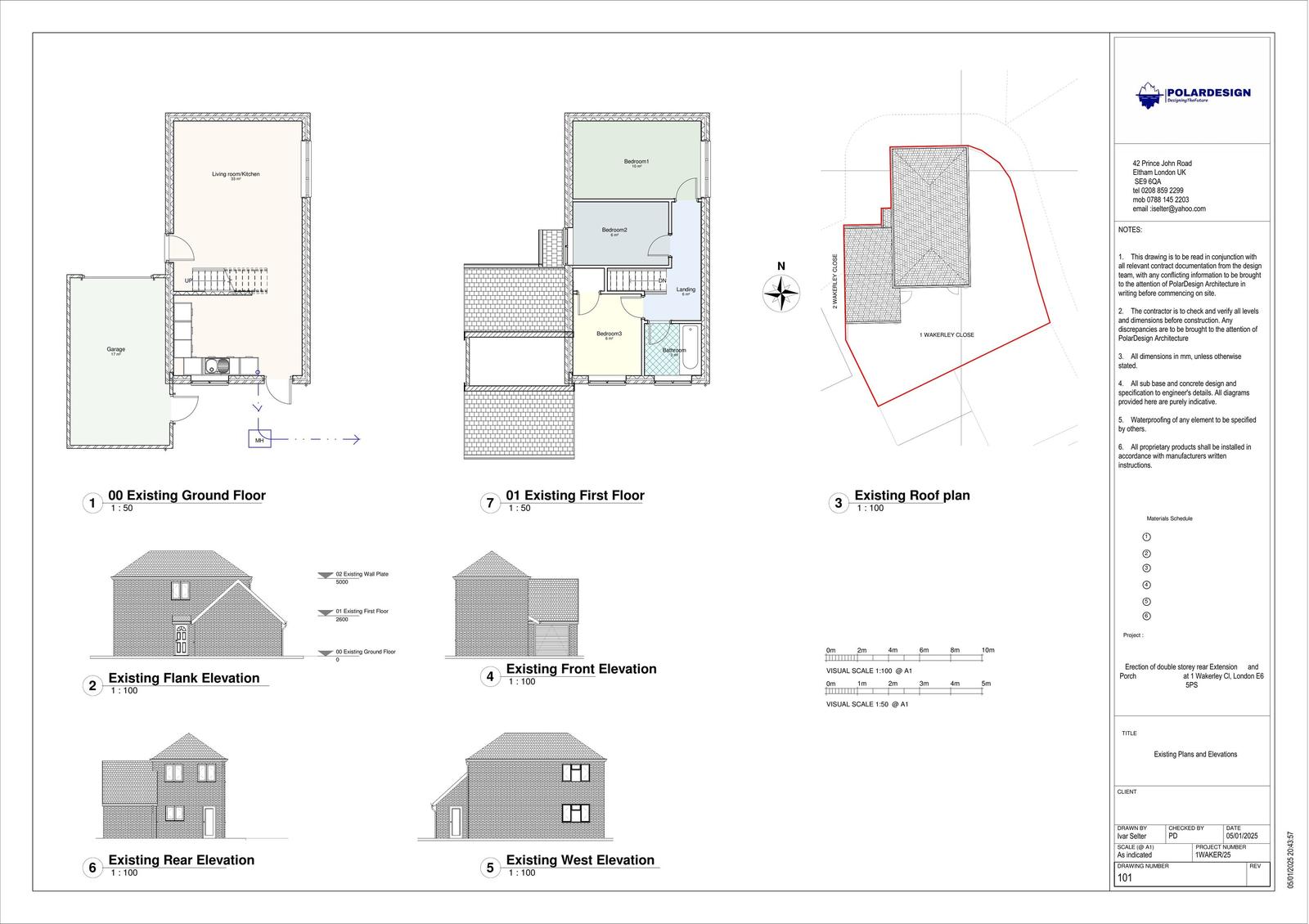
Full proposal

Erection of double storey rear Extension and installation of the new entrance Door with Porch.

Documents

Application Form (Public)
Archived · Original link
Decision
Archived · Original link
Decision
Archived · Original link
Documentation
Archived · Original link
Drawing
Archived · Original link
Photo
Archived · Original link

Have your say

Your comment matters. Councils must consider every representation that raises material planning considerations.

Write a comment