Application
25/00023/FUL
Newham · IDOX
Status
Unknown status
Change of use
Received
n/a
New dwellings
1
What you can do
Take Action
Make your voice heard. Authorities need to hear from people who support new homes.
Summary
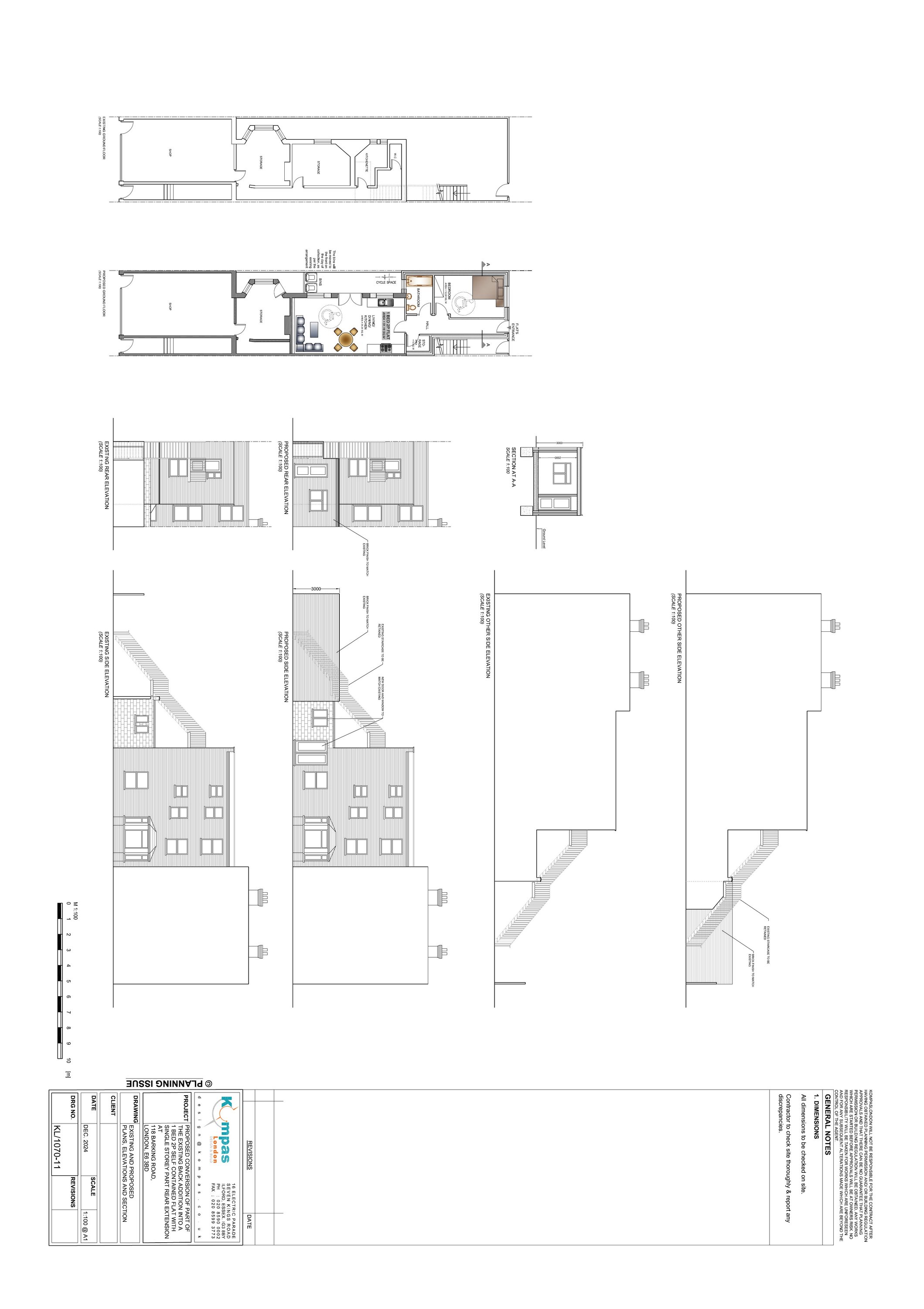
Change of rear commercial addition into one self-contained flat with single-storey extension and storage.
Full Proposal
Change of use of existing back addition of commercial unit into self contained flat (Use Class C3) with erection of single storey rear extension and associated waste/cycle storage.
Detail pages
- View live detail on council site
- No archived detail page available.
Documents
APPLICATIONFORMREDACTED
Application Form (Public)
Not downloaded
· Council link
BLOCK PLAN
Drawing
Not downloaded
· Council link
CIL FORM 1
CIL
Not downloaded
· Council link
DECISION NOTICE
Decision
Not downloaded
· Council link
DELEGATED REPORT
Decision
Not downloaded
· Council link
DESIGN AND ACCESS STATEMENT
Documentation
Not downloaded
· Council link
DRAWINGS
Drawing
Not downloaded
· Council link
EXISTING AND PROPOSED ROOF PLANS
Revised Drawing
Not downloaded
· Council link
LOCATION PLAN
Drawing
Not downloaded
· Council link