← Newham

Status

Pending House extension
Received
Not recorded
New homes
0

Full proposal

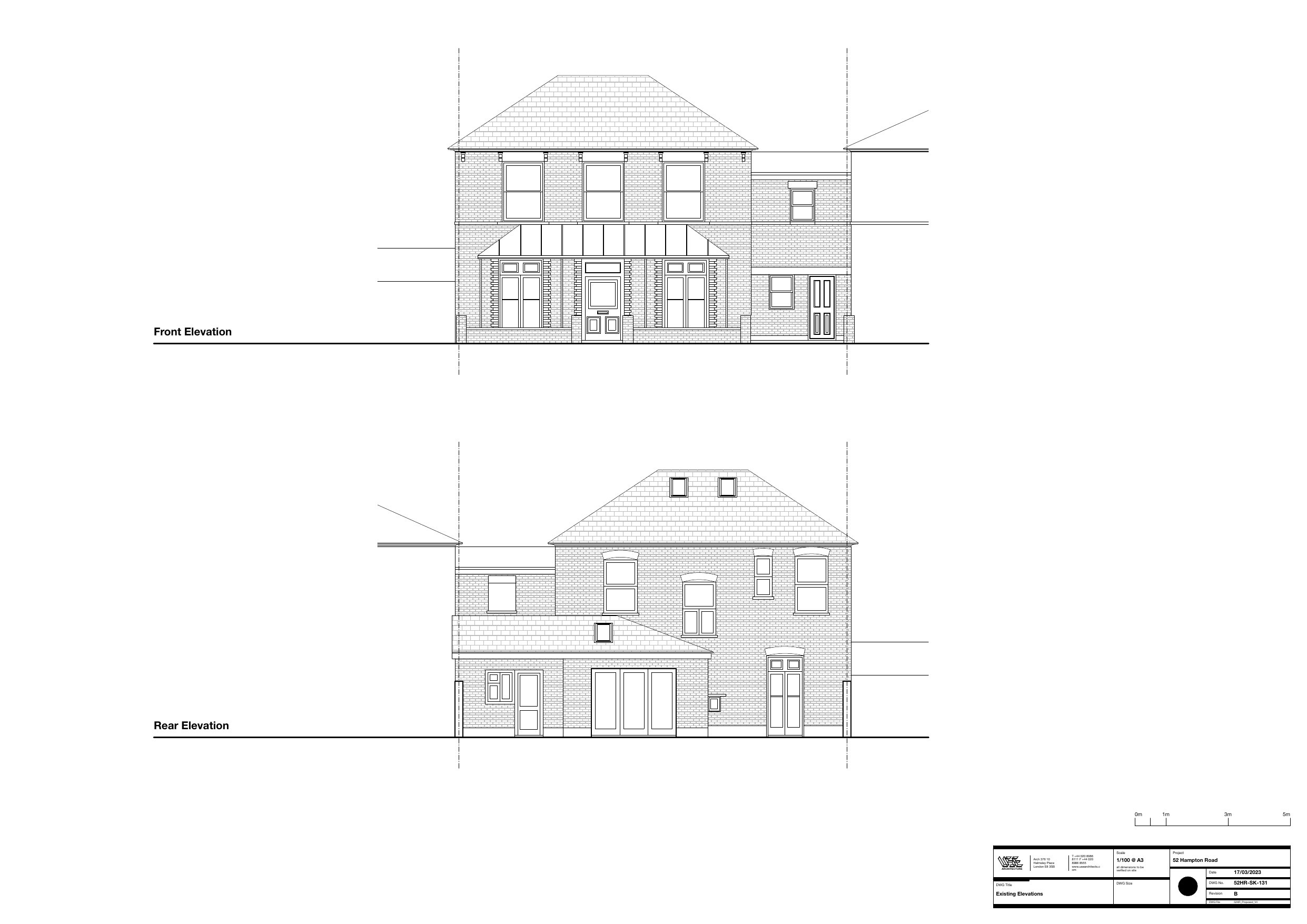
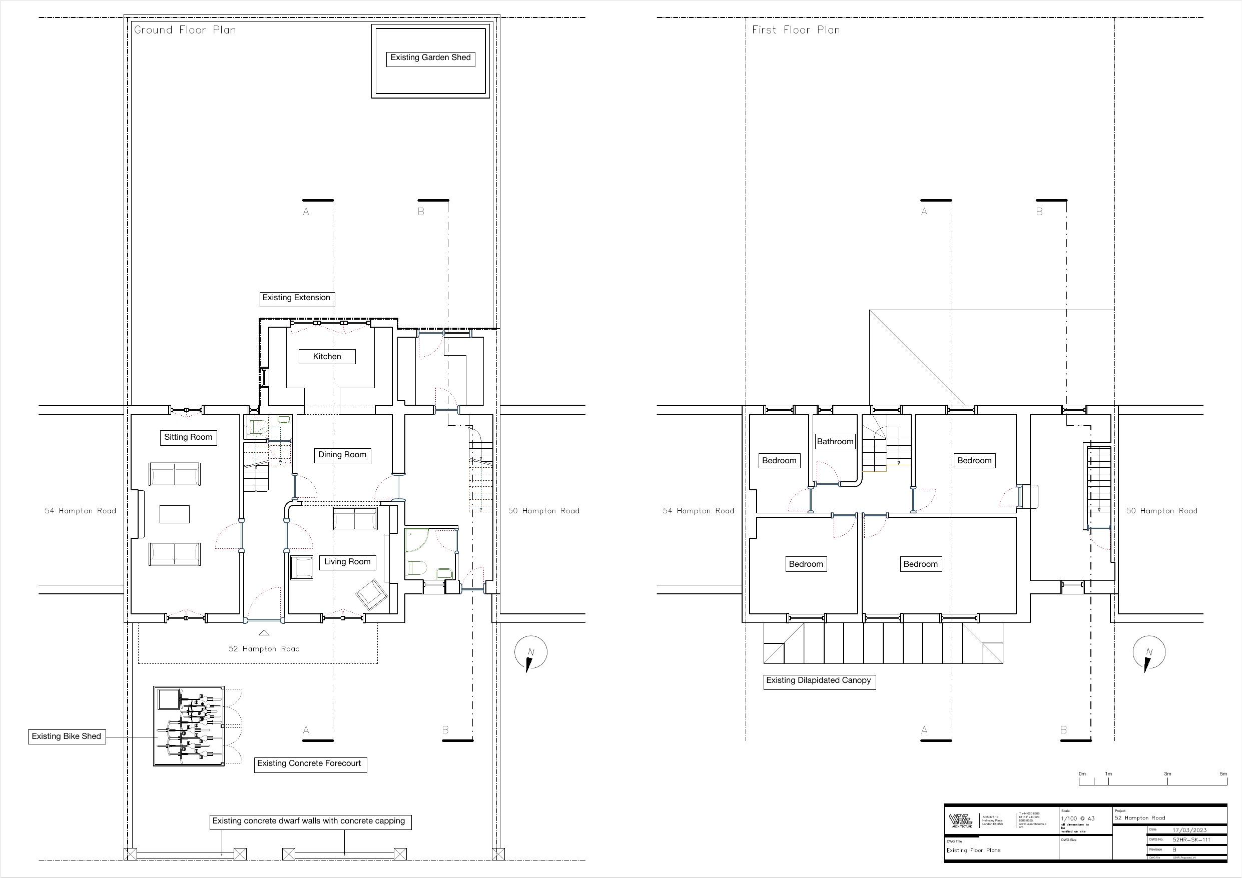
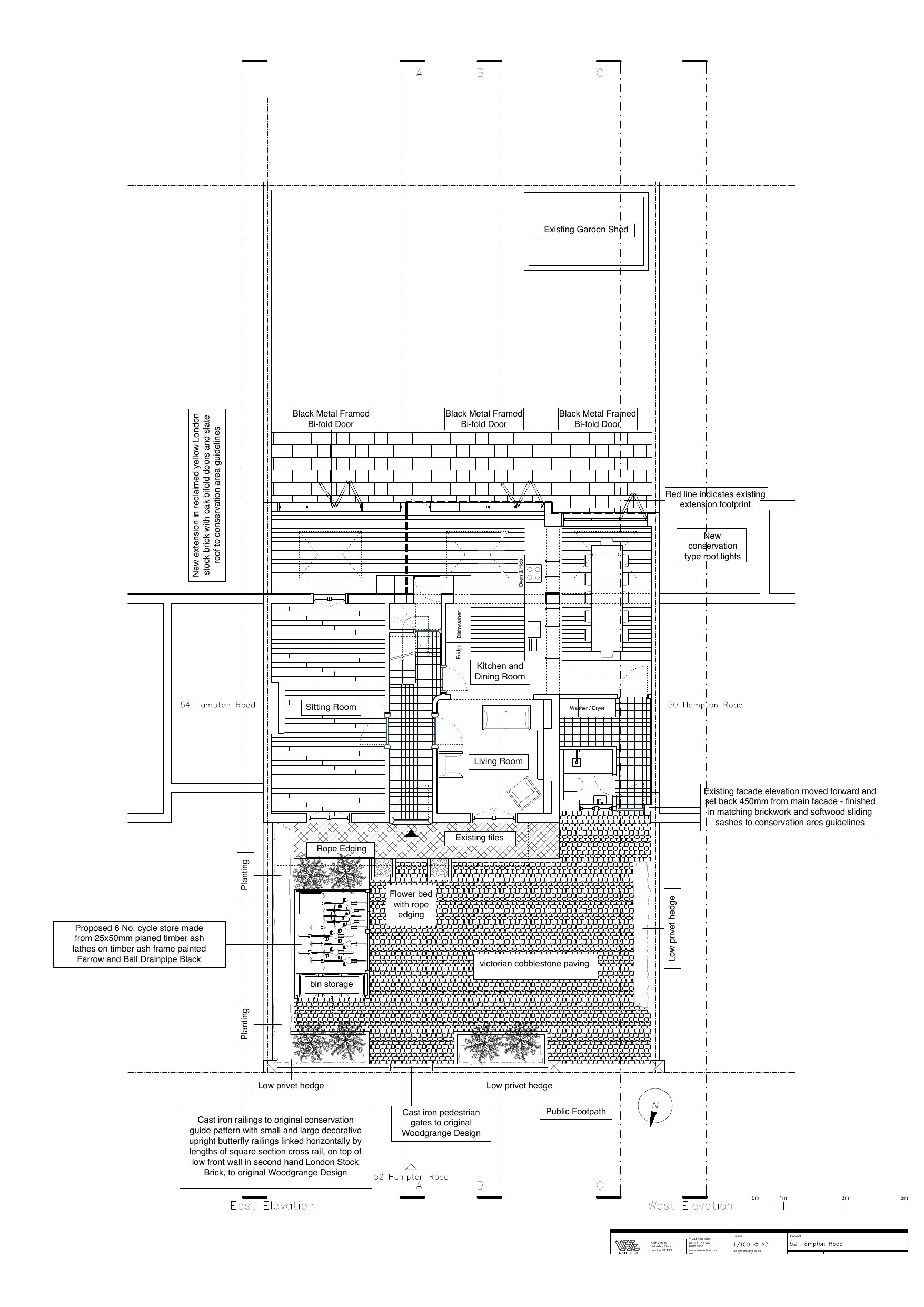
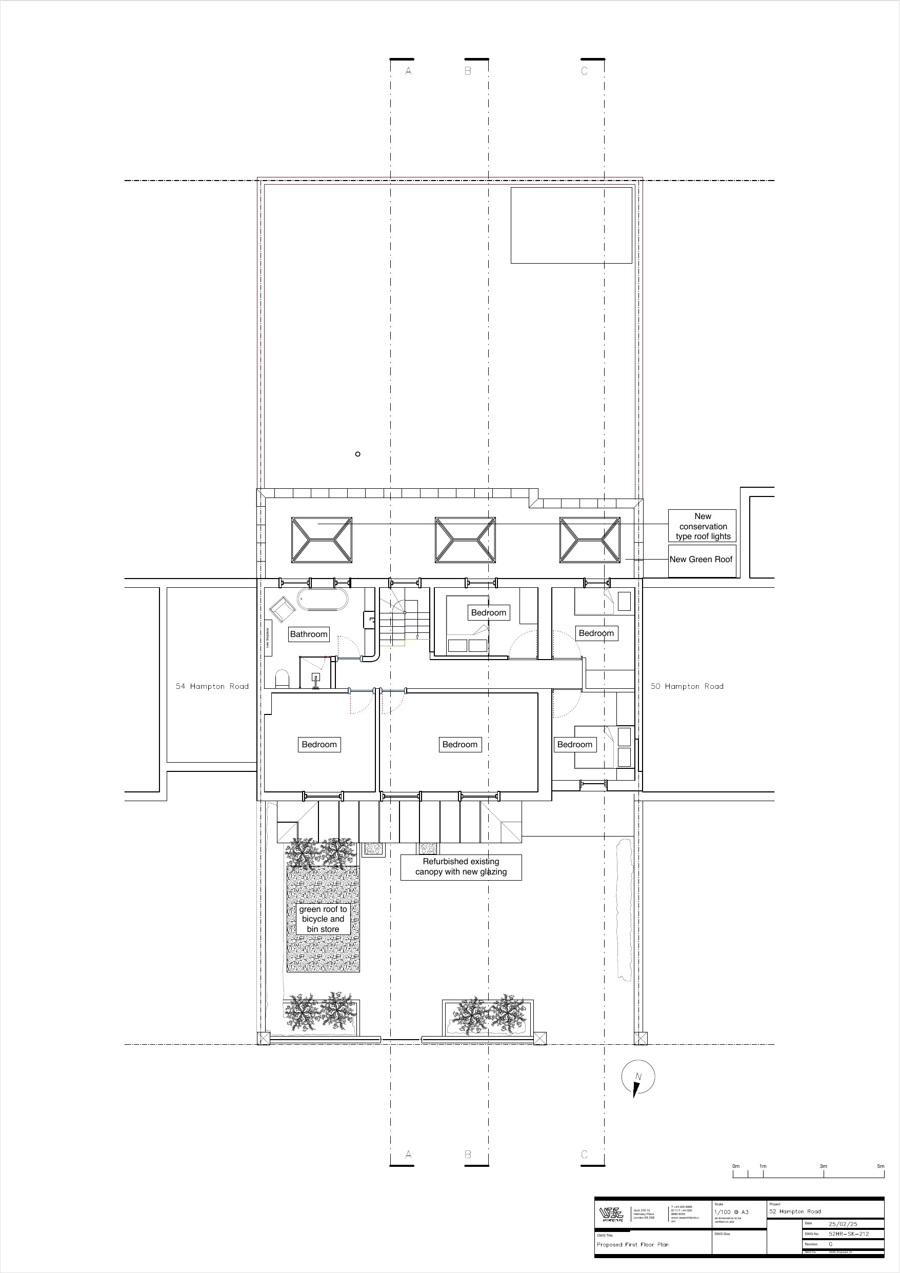
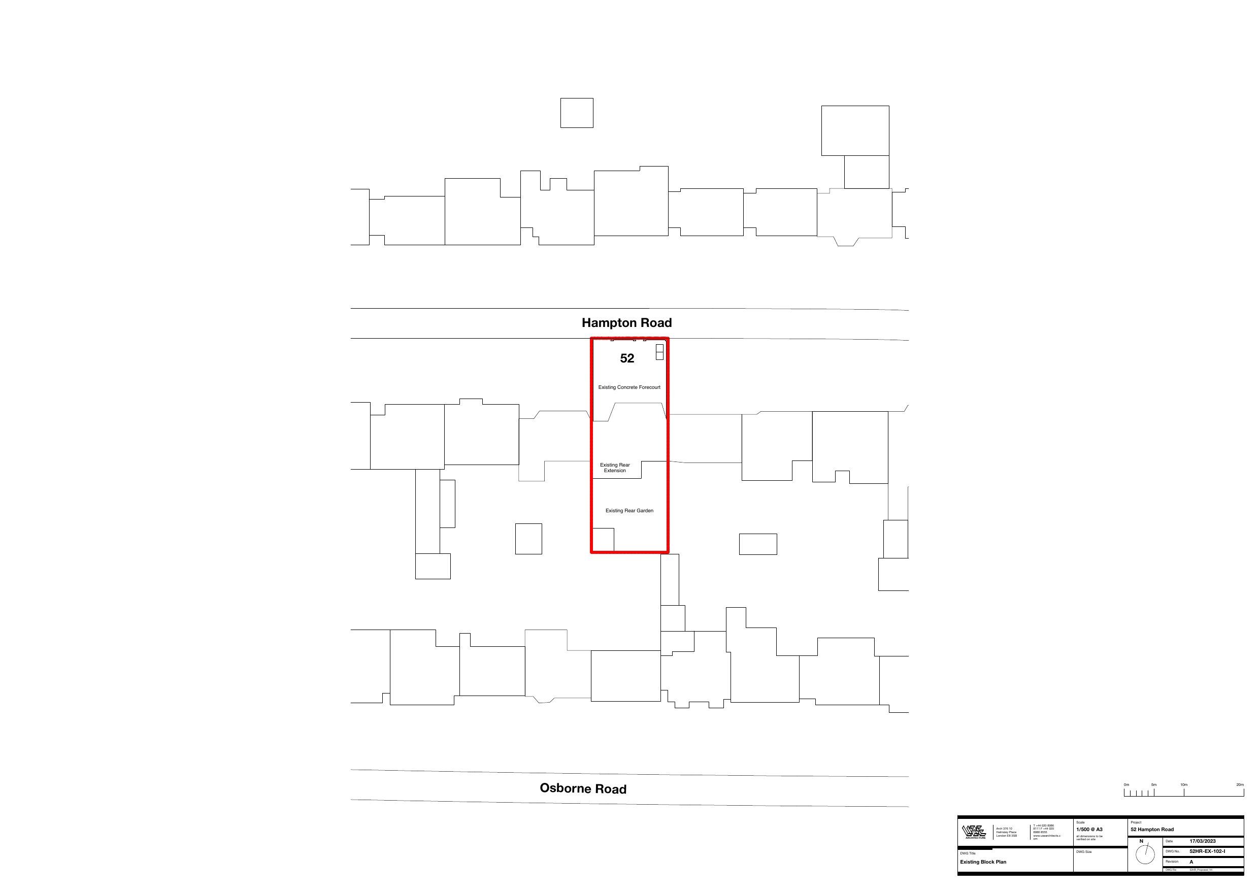
Erection of single storey rear/side extension, double storey front/side extension, installation of a chimney and additional rear rooflight, front canopy restoration, window replacements and associated landscaping works to front garden. (This application is in the Woodgrange Estate Conservation Area). (AMENDED DESCRIPTION)

Documents

Documentation
Archived · Original link
Revised Drawing
Archived · Original link
Application Form (Public)
Archived · Original link
Drawing
Archived · Original link
Drawing
Archived · Original link
Decision
Archived · Original link
Decision
Archived · Original link
Correspondence
Archived · Original link
Revised Drawing
Archived · Original link
Drawing
Archived · Original link
Revised Drawing
Archived · Original link
Drawing
Archived · Original link
Revised Drawing
Archived · Original link
Revised Drawing
Archived · Original link
Drawing
Archived · Original link
Drawing
Archived · Original link
Revised Drawing
Archived · Original link
Revised Drawing
Archived · Original link

Have your say

Your comment matters. Councils must consider every representation that raises material planning considerations.

Write a comment