← Newham

Status

Pending House extension
Received
Not recorded
New homes
0

Full proposal

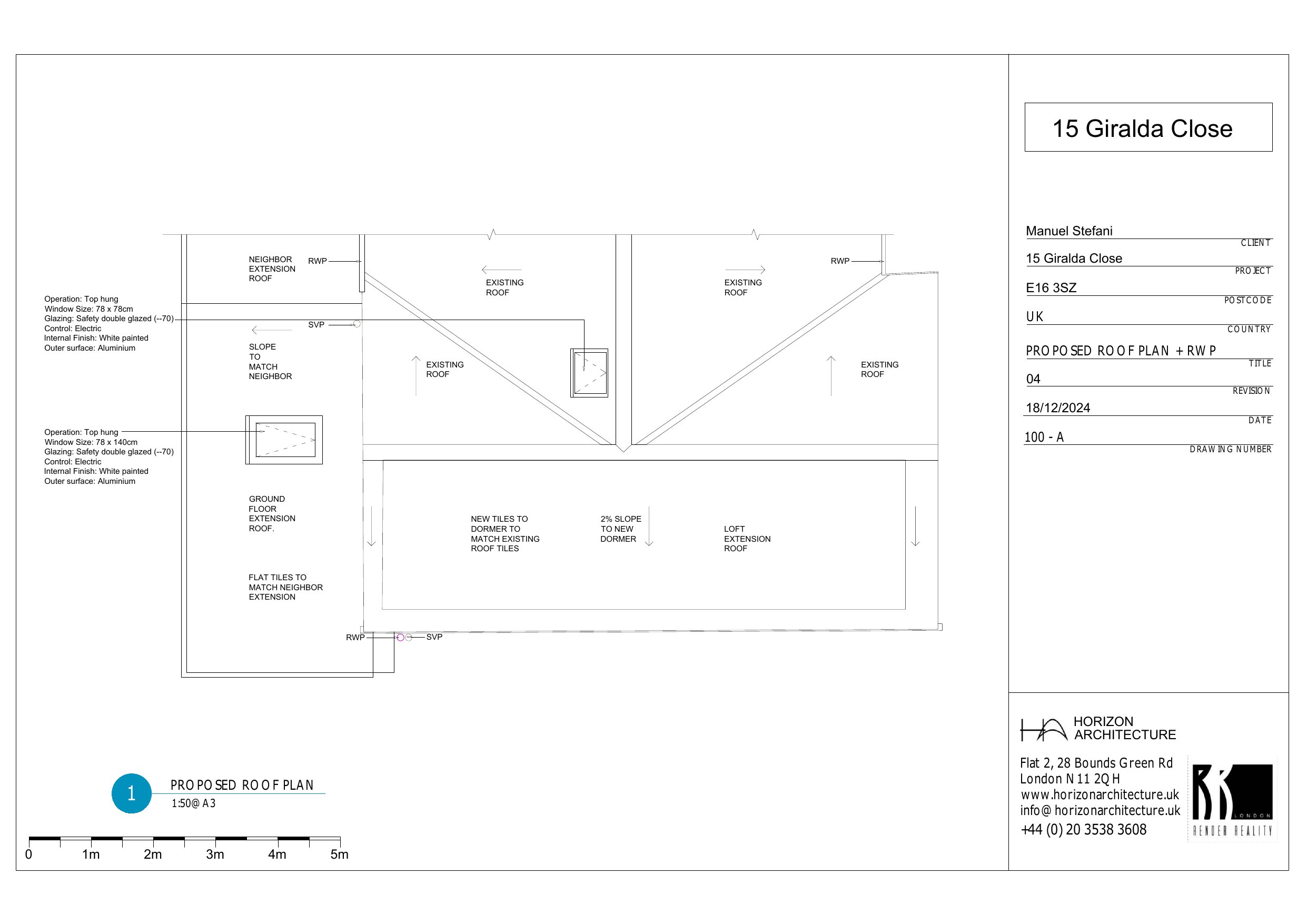
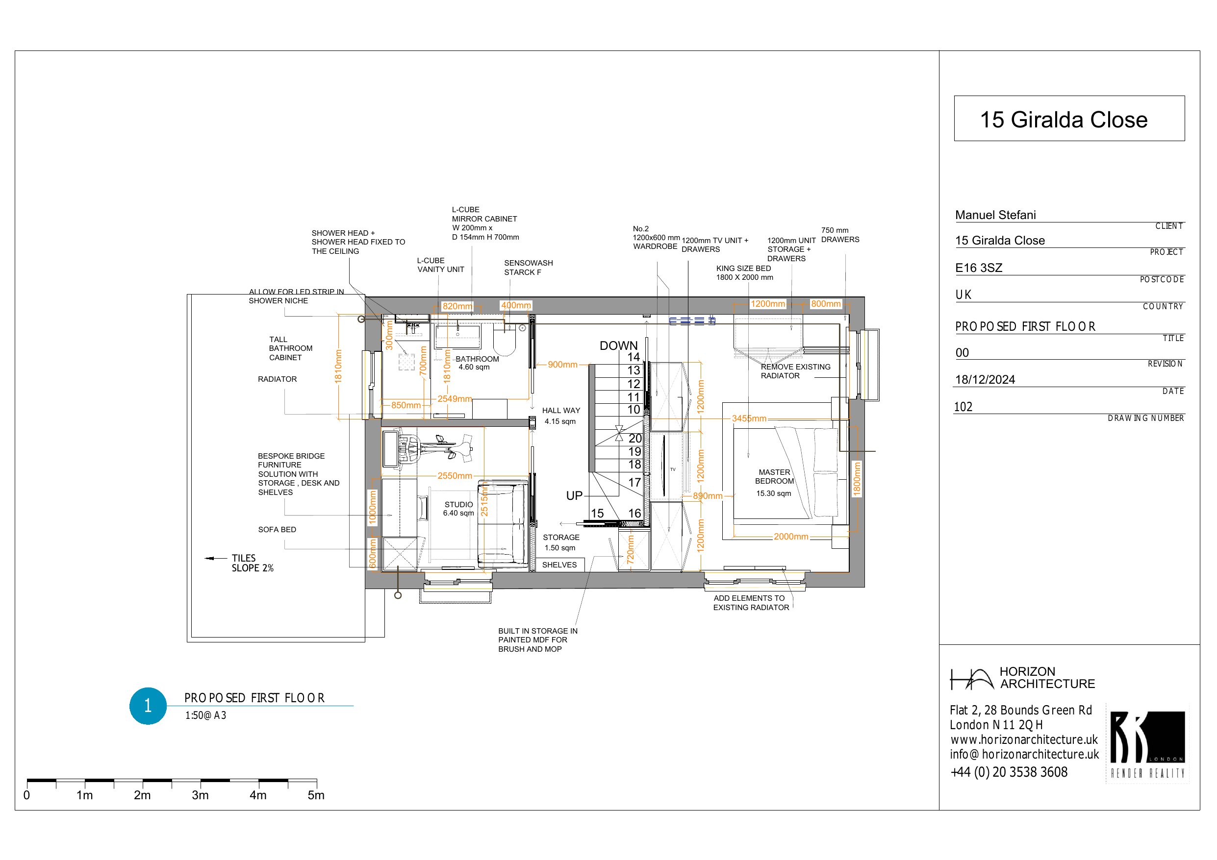
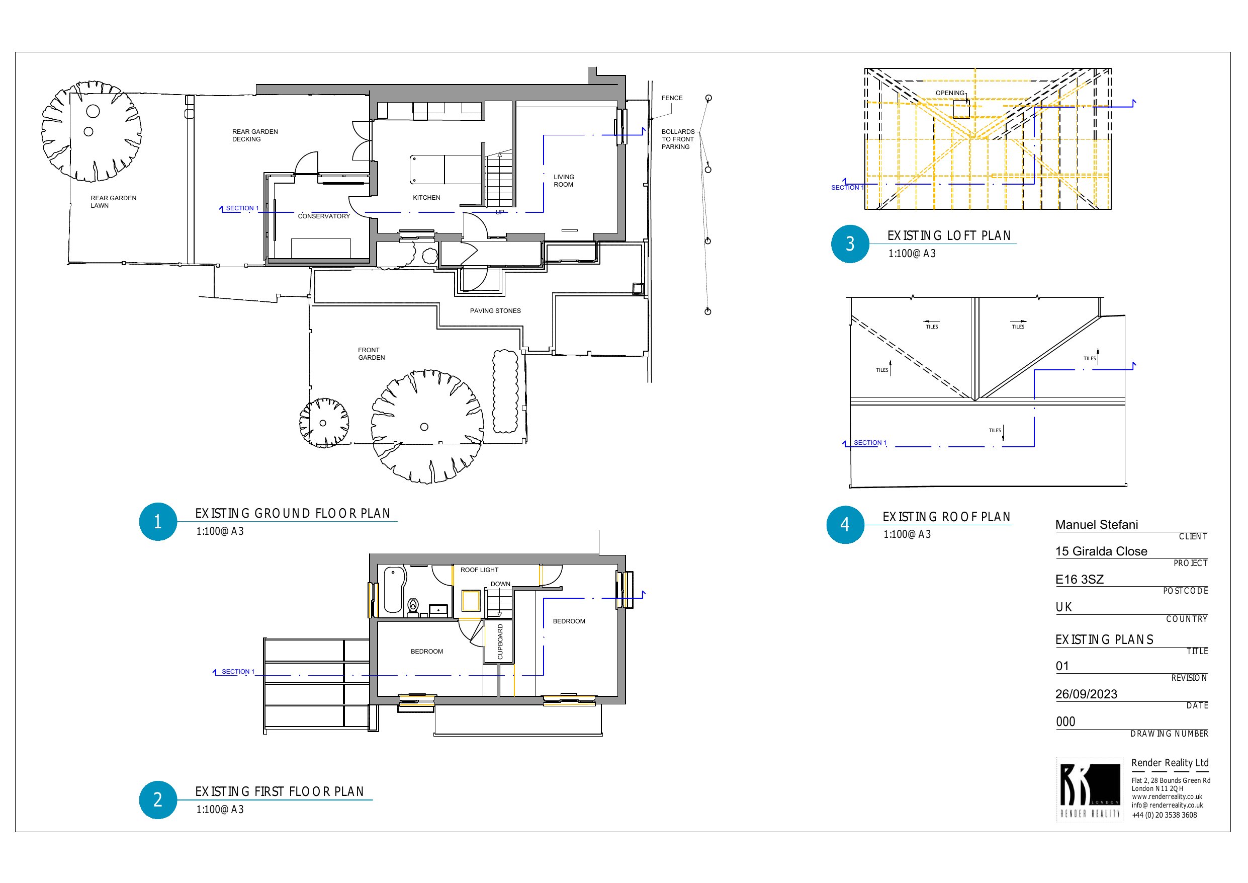
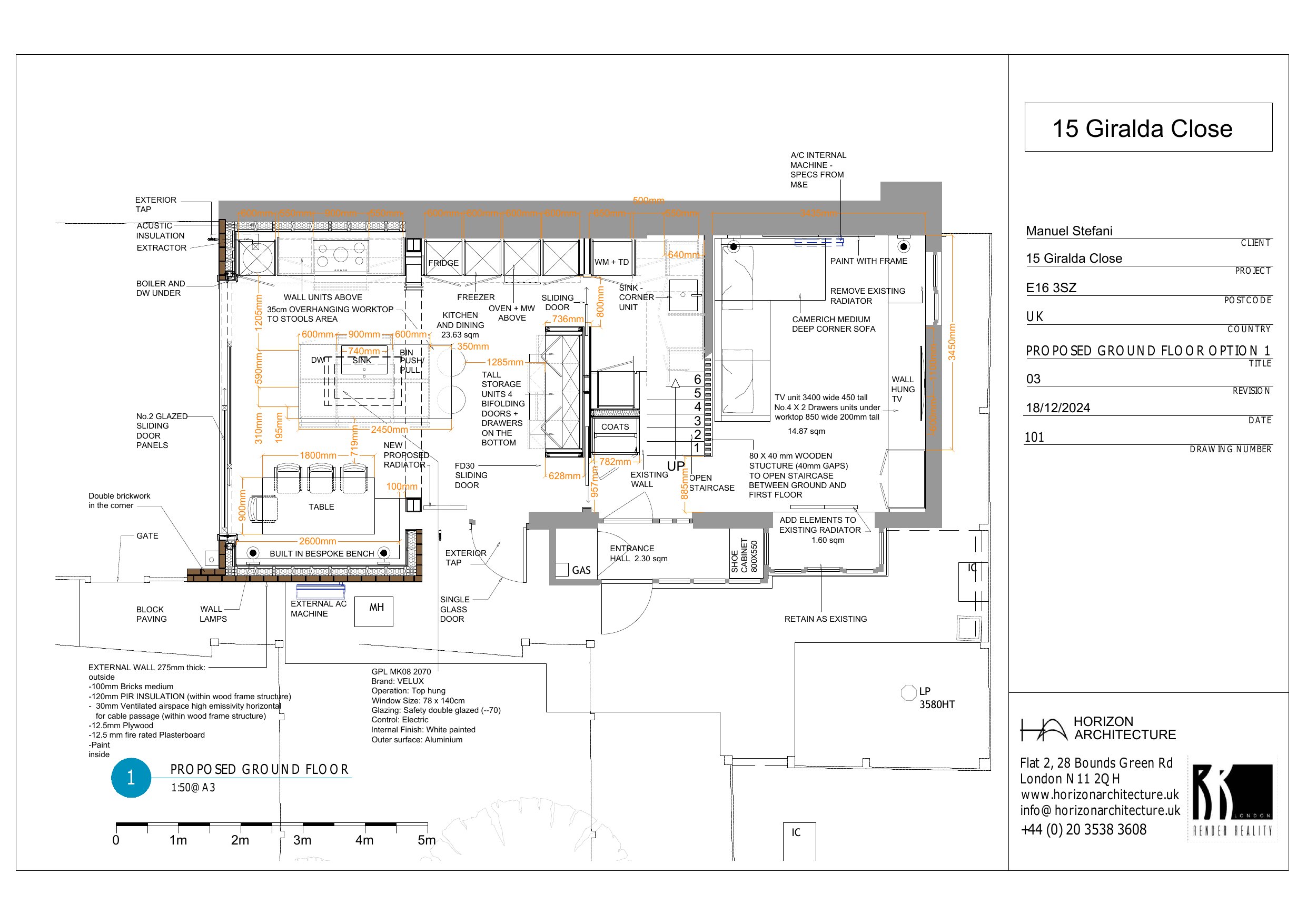
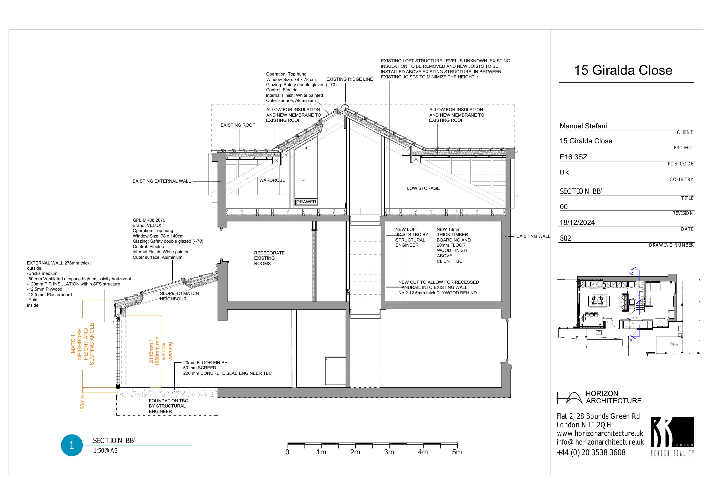
Erection of front dormer roof extension, single storey side extension, external alterations to elevations including installation of CCTV, and installation of air conditioning units to front elevation. (AMENDED DESCRIPTION)

Documents

Application Form (Public)
Archived · Original link
Documentation
Archived · Original link
Decision
Archived · Original link
Decision
Archived · Original link
Drawing
Archived · Original link
Drawing
Archived · Original link
Drawing
Archived · Original link
Documentation
Archived · Original link
PROPOSED LOFT PLAN
Drawing
Not yet archived · Original link
Drawing
Archived · Original link
Drawing
Archived · Original link
Drawing
Archived · Original link

Have your say

Your comment matters. Councils must consider every representation that raises material planning considerations.

Write a comment