← Newham

Status

Pending House extension
Received
Not recorded
New homes
0

Full proposal

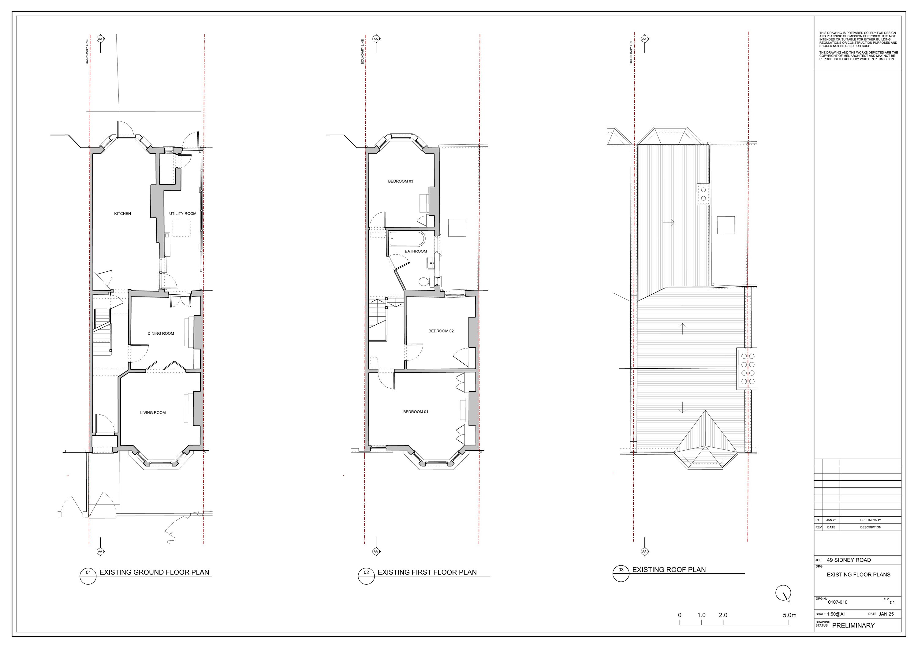
Demolition of existing side/rear extension and erection of new single storey rear/side extension and restoration of rear bay window.

Have your say

Your comment matters. Councils must consider every representation that raises material planning considerations.

Write a comment