← Newham

Status

Pending House extension
Received
Not recorded
New homes
0

Full proposal

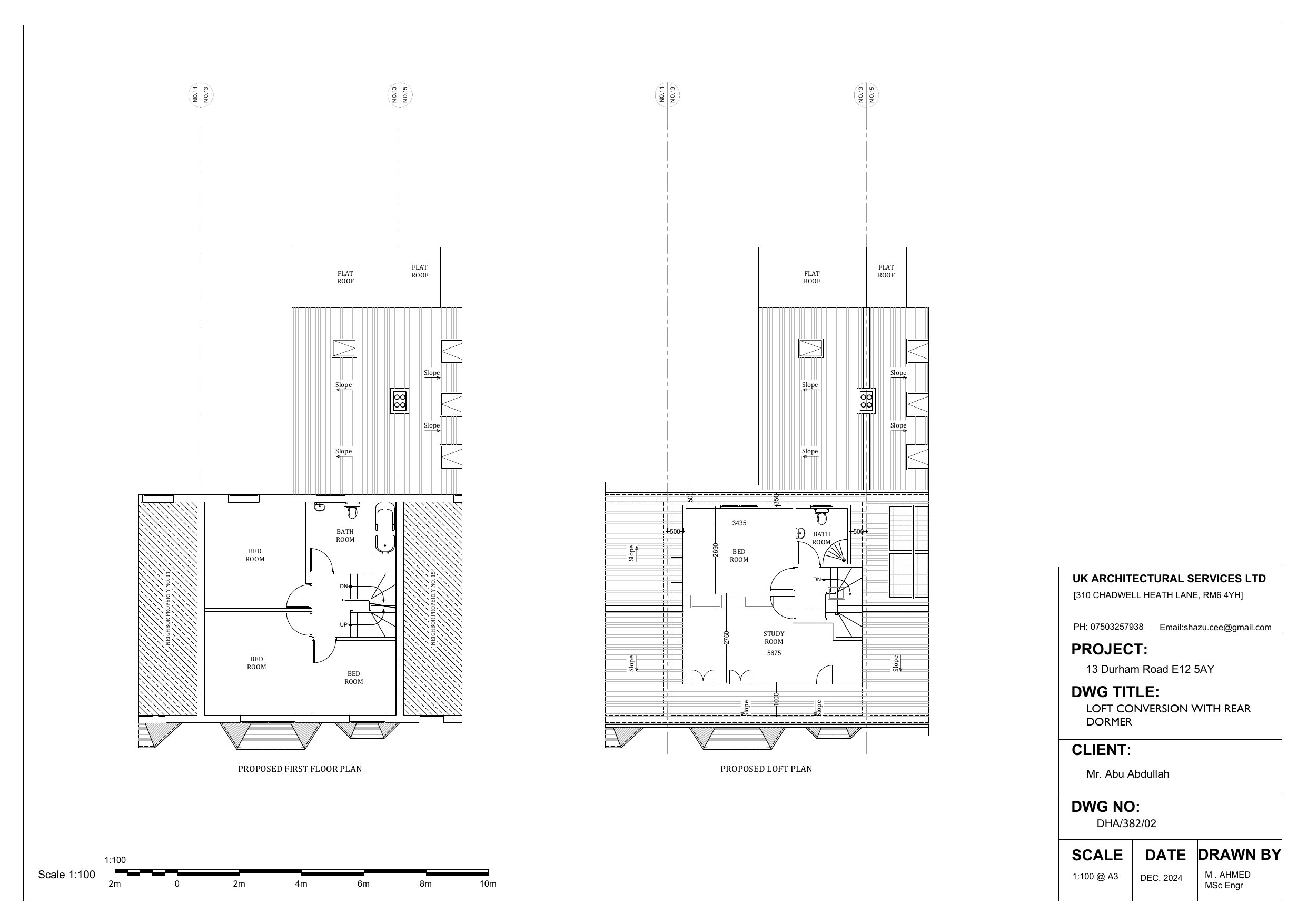
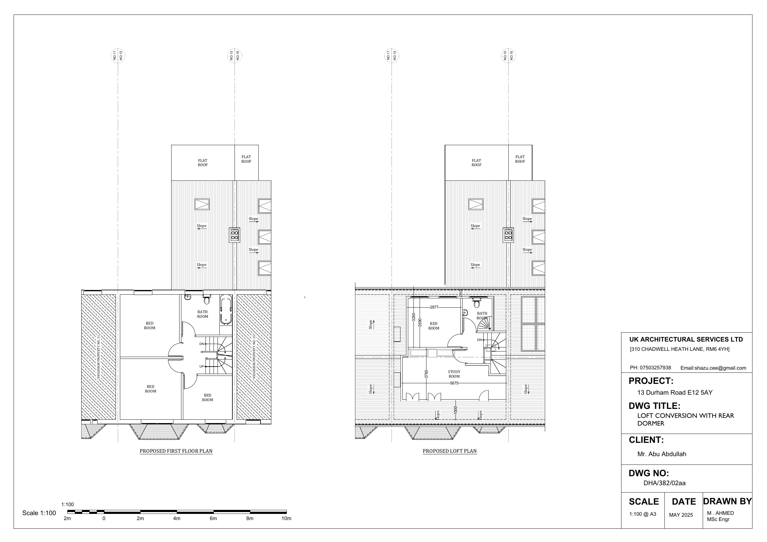
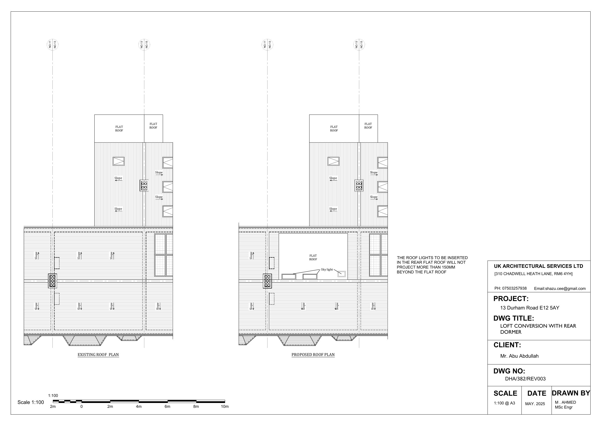
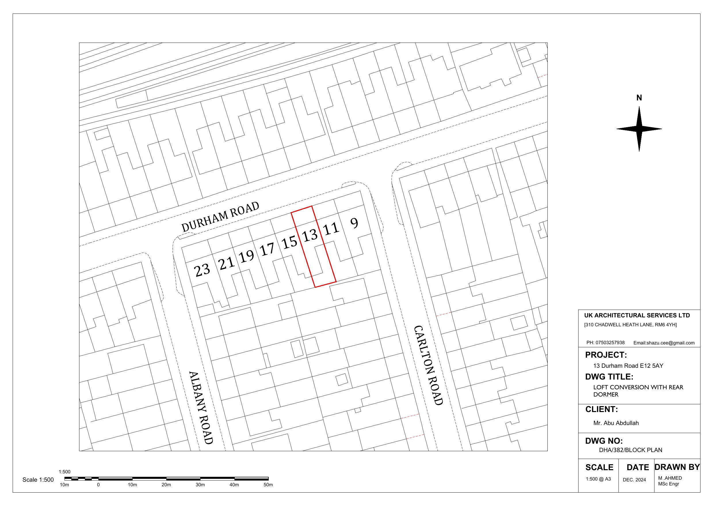
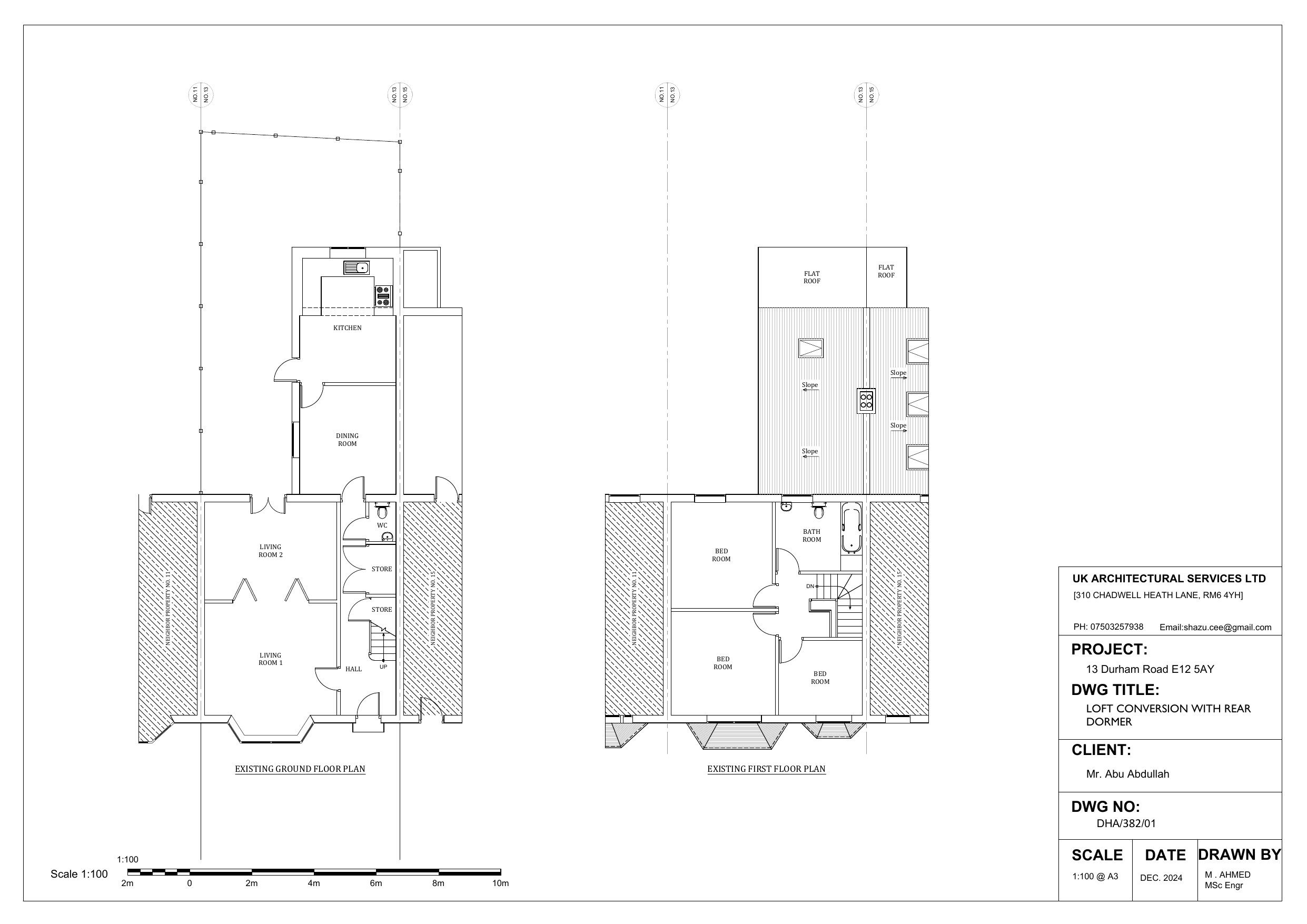
Erection of rear dormer roof extension.

Documents

6
Superseded
Archived · Original link
Application Form (Public)
Archived · Original link
Drawing
Archived · Original link
Decision
Archived · Original link
Decision
Archived · Original link
Revised Drawing
Archived · Original link
Drawing
Archived · Original link
Documentation
Archived · Original link
Superseded
Archived · Original link
Revised Drawing
Archived · Original link
Superseded
Archived · Original link
Revised Drawing
Archived · Original link

Have your say

Your comment matters. Councils must consider every representation that raises material planning considerations.

Write a comment