← Newham

Status

Pending House extension
Received
Not recorded
New homes
0

Full proposal

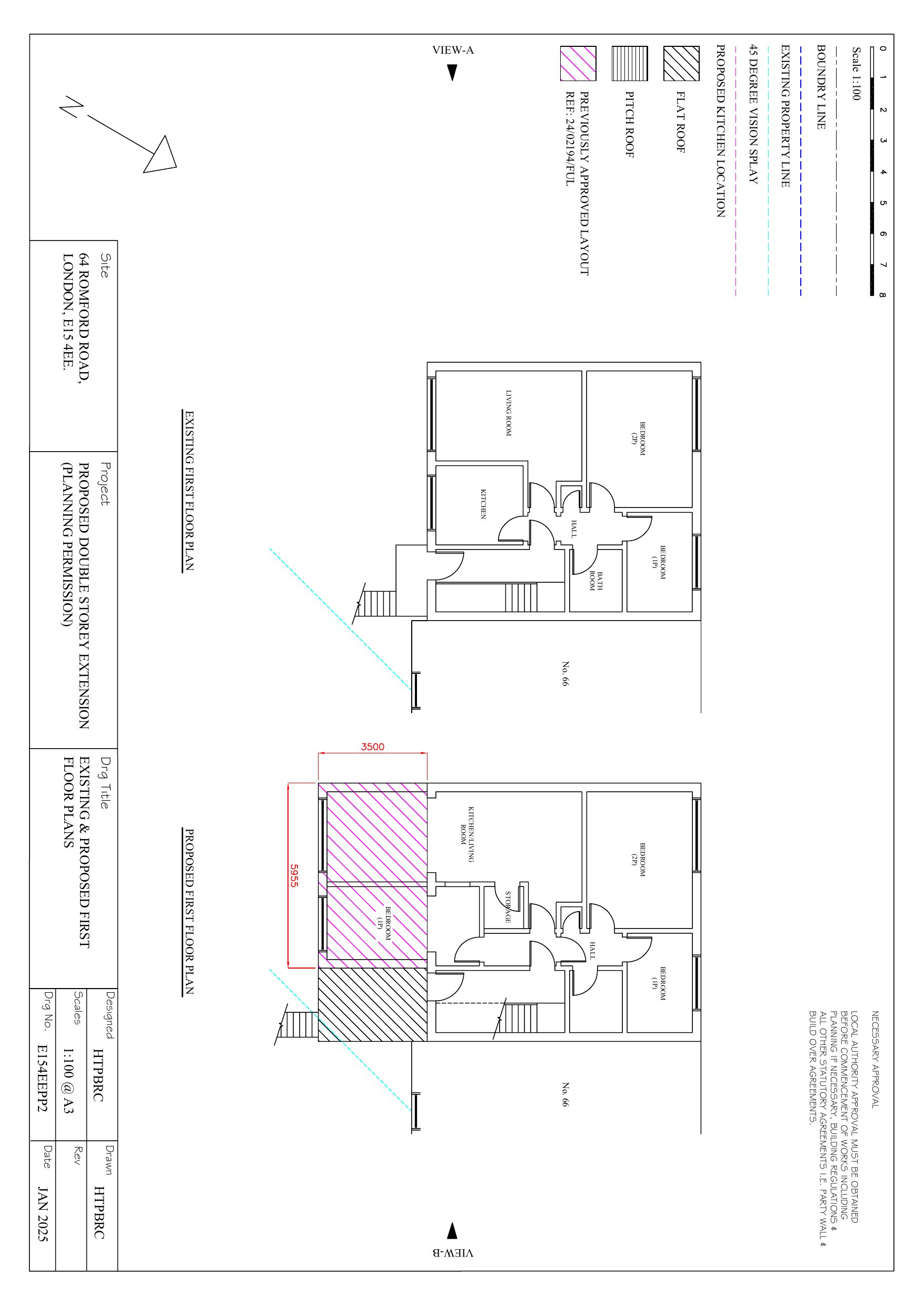
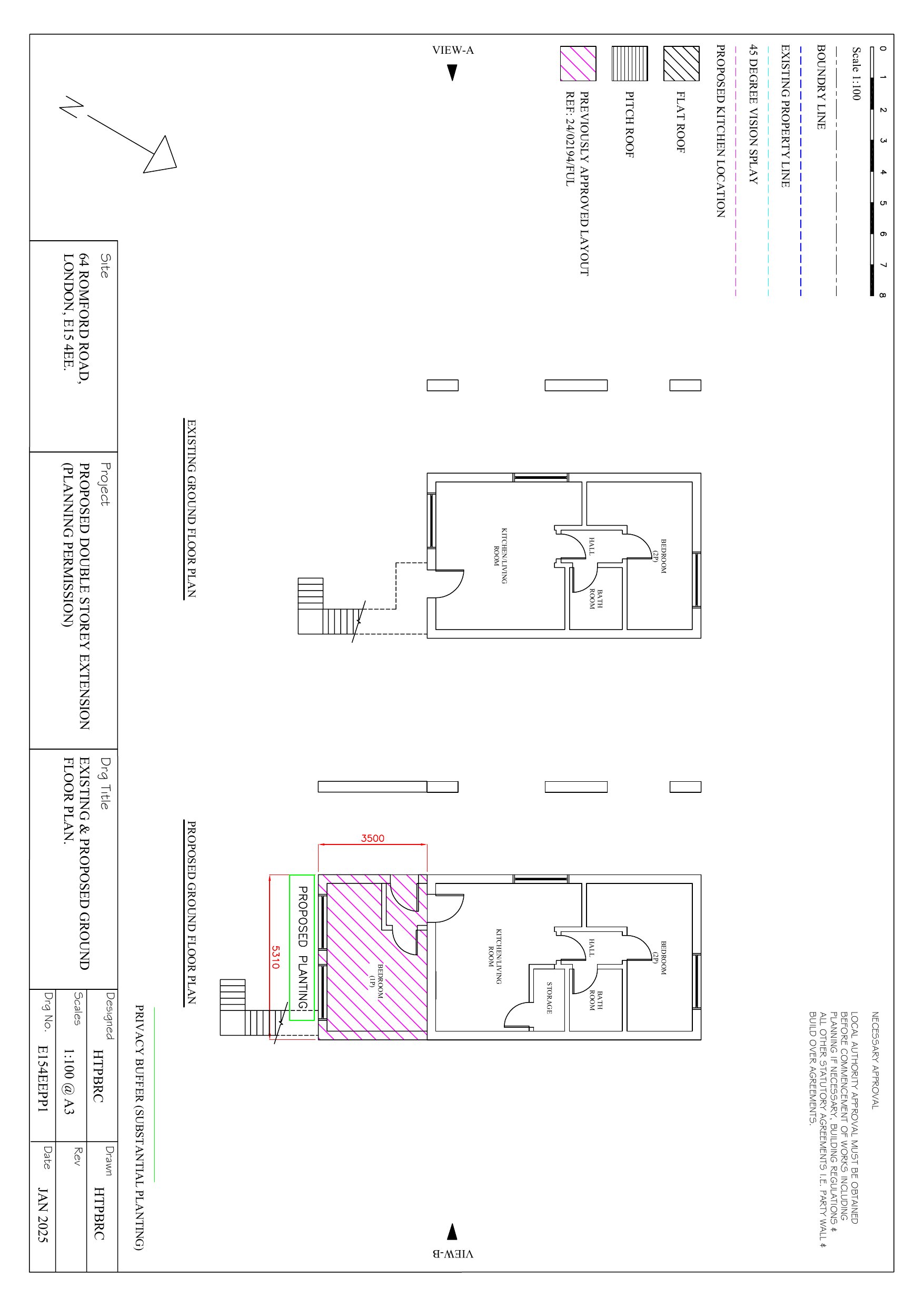
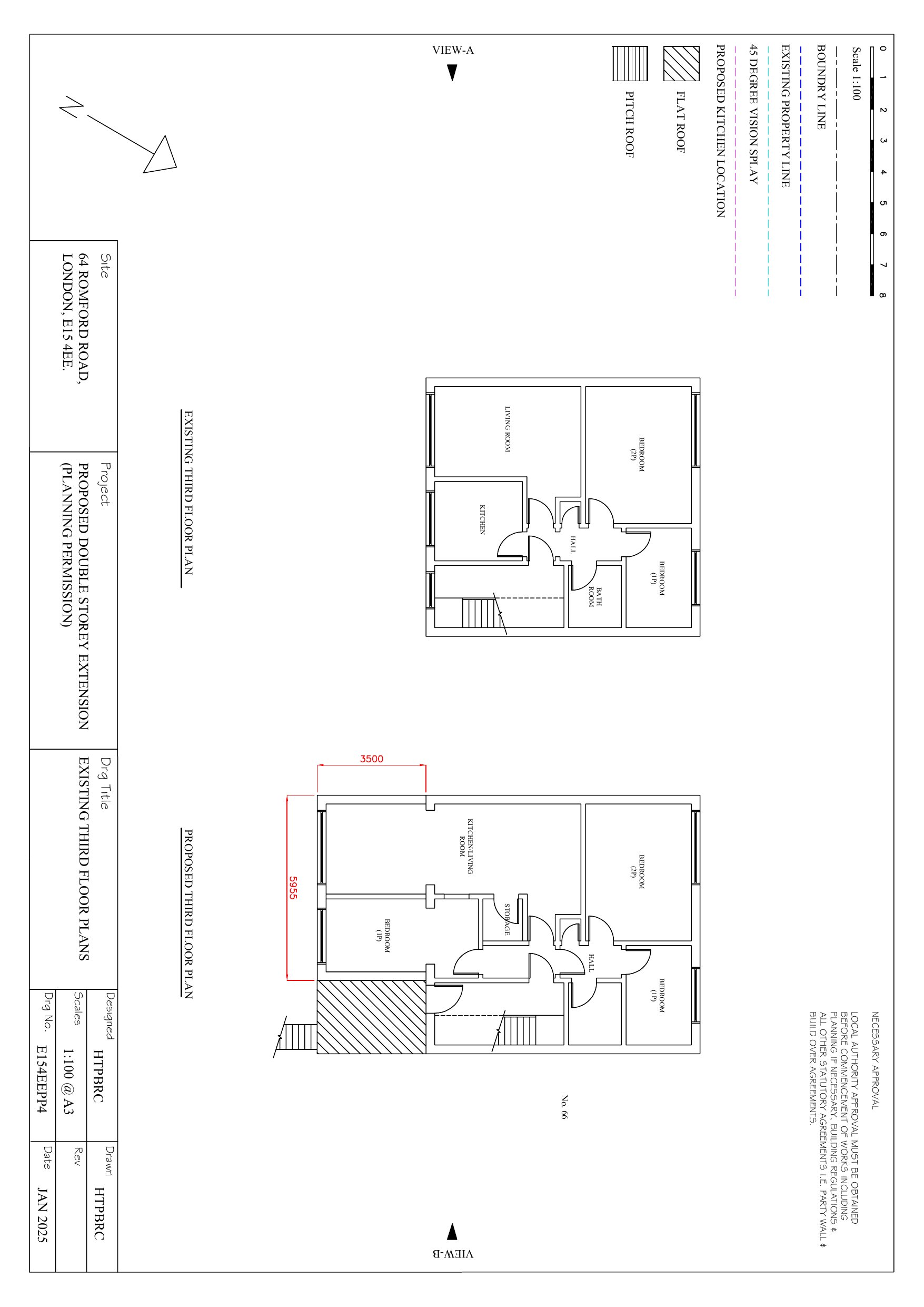
Erection of full-width ground floor, and part first, second and third floor rear extensions. (This application is in the University Conservation Area and is affecting the setting of Grade II listed buildings: 66-88 Romford Road, 60 and 62 Romford Road and 54 and 56 Romford Road) (amended description)

Documents

Application Form (Public)
Archived · Original link
Decision
Archived · Original link
Decision
Archived · Original link
Documentation
Archived · Original link
Drawing
Archived · Original link
EXISTING SIDE ELEVATIONS
Drawing
Not yet archived · Original link
Revised Drawing
Archived · Original link
Drawing
Archived · Original link
Revised Drawing
Archived · Original link
Drawing
Archived · Original link
Drawing
Archived · Original link
PROPOSED SIDE ELEVATIONS A
Revised Drawing
Not yet archived · Original link
Revised Drawing
Archived · Original link
Revised Drawing
Archived · Original link
Revised Drawing
Archived · Original link
Documentation
Archived · Original link
Drawing
Archived · Original link
Drawing
Archived · Original link

Have your say

Your comment matters. Councils must consider every representation that raises material planning considerations.

Write a comment