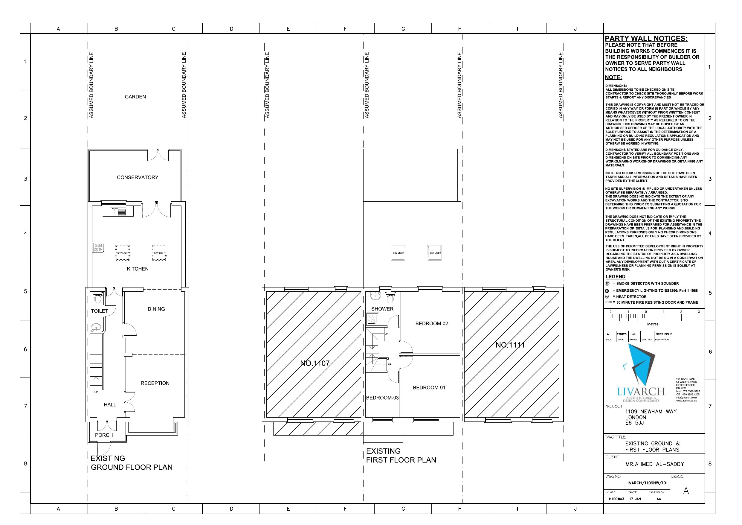
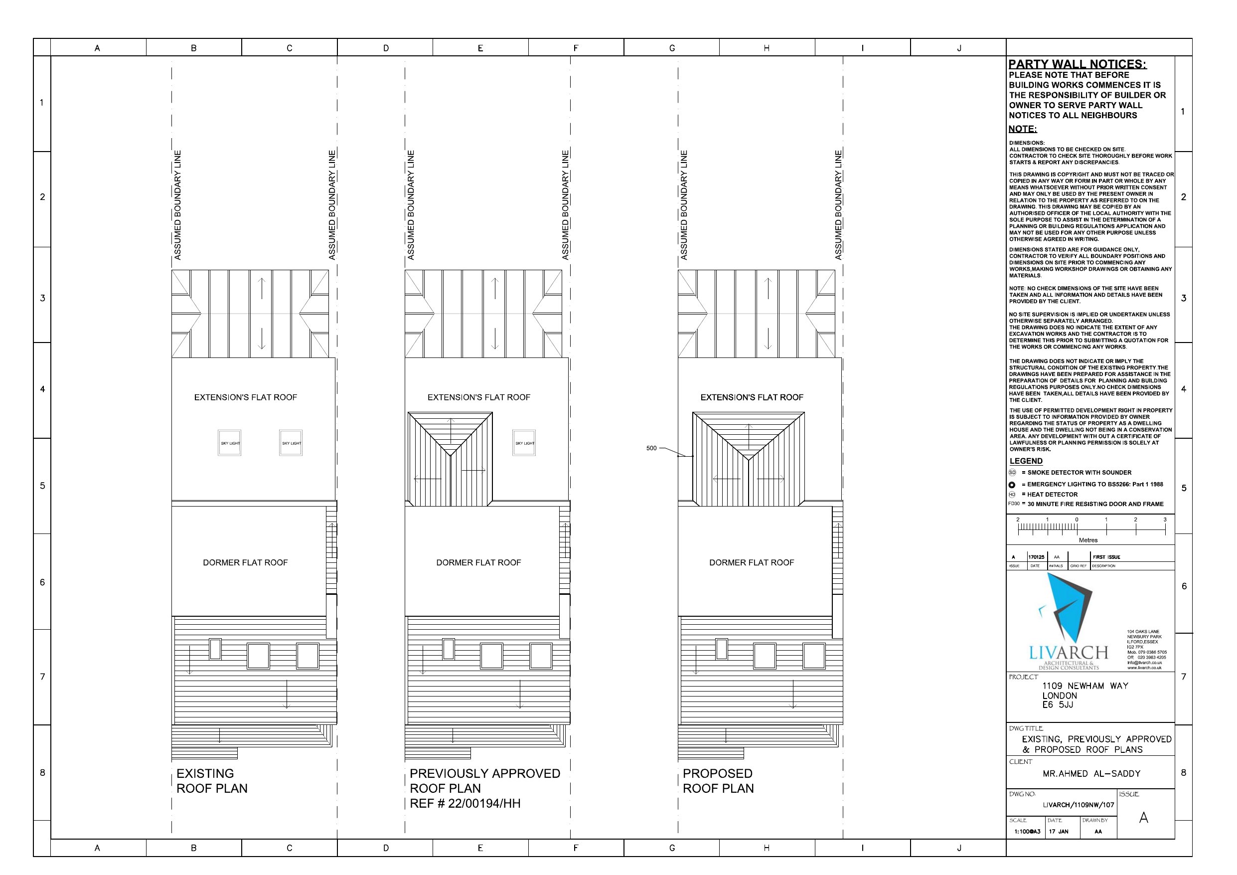
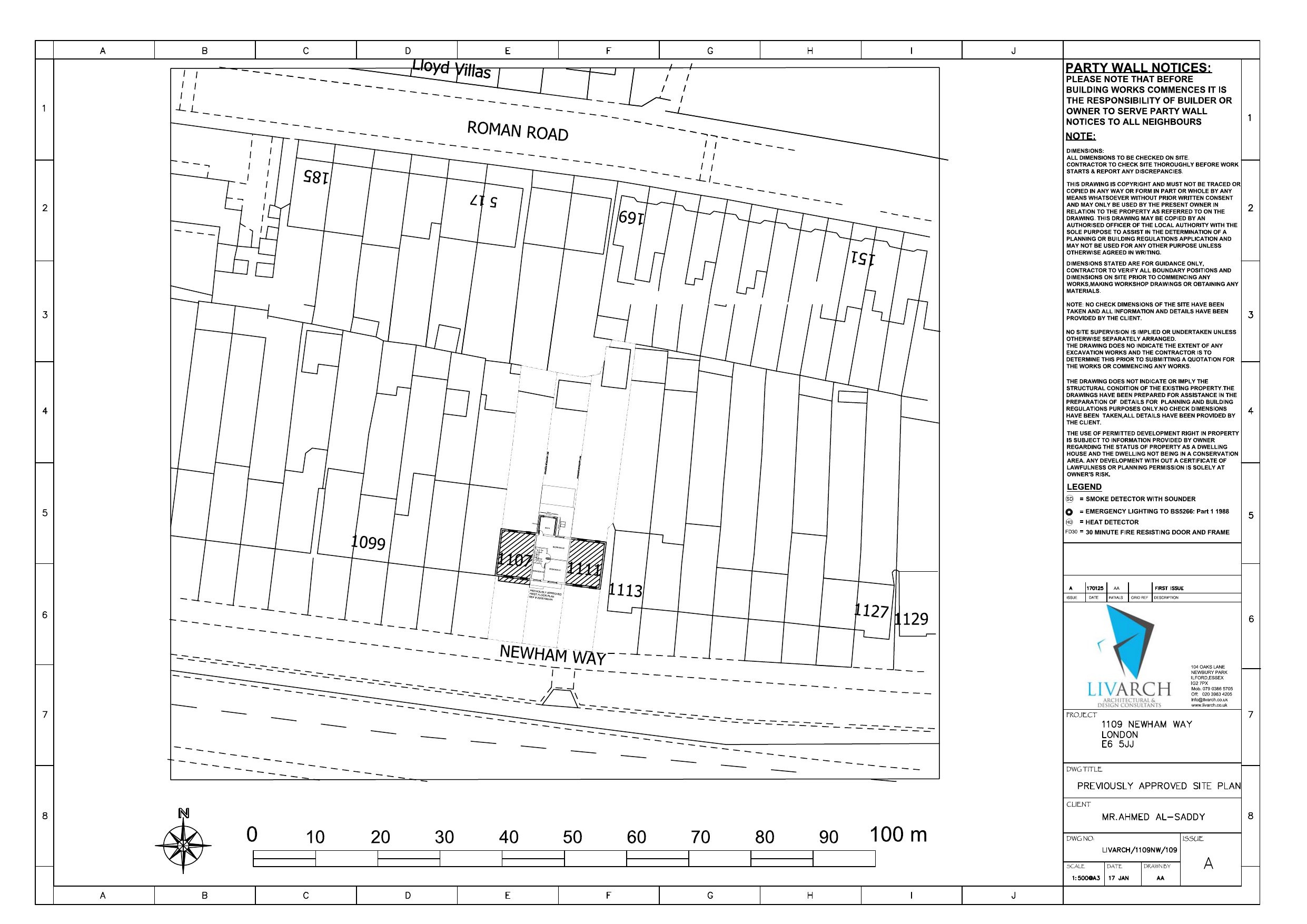
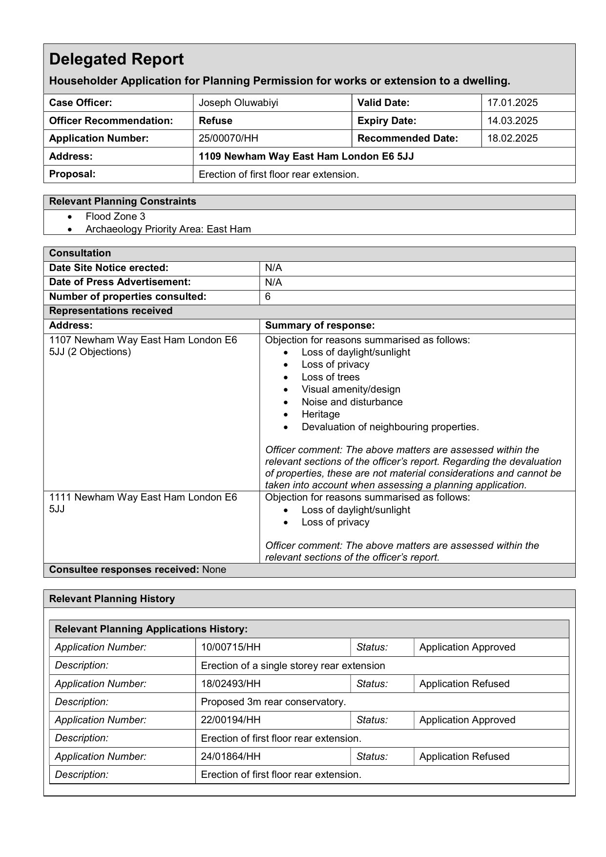
25/00070/HH
Newham
Status
Pending
House extension
Received
Not recorded
New homes
0
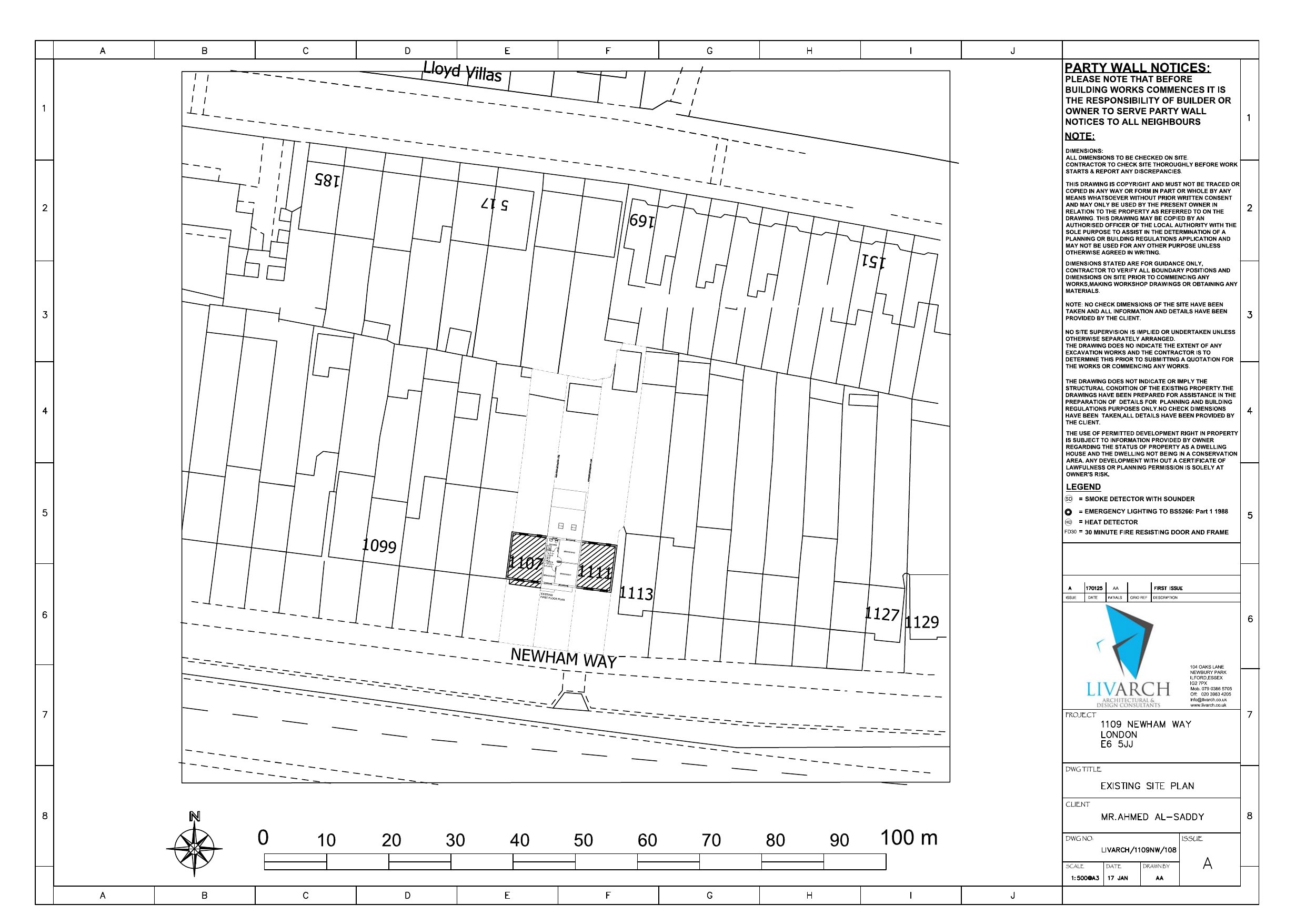
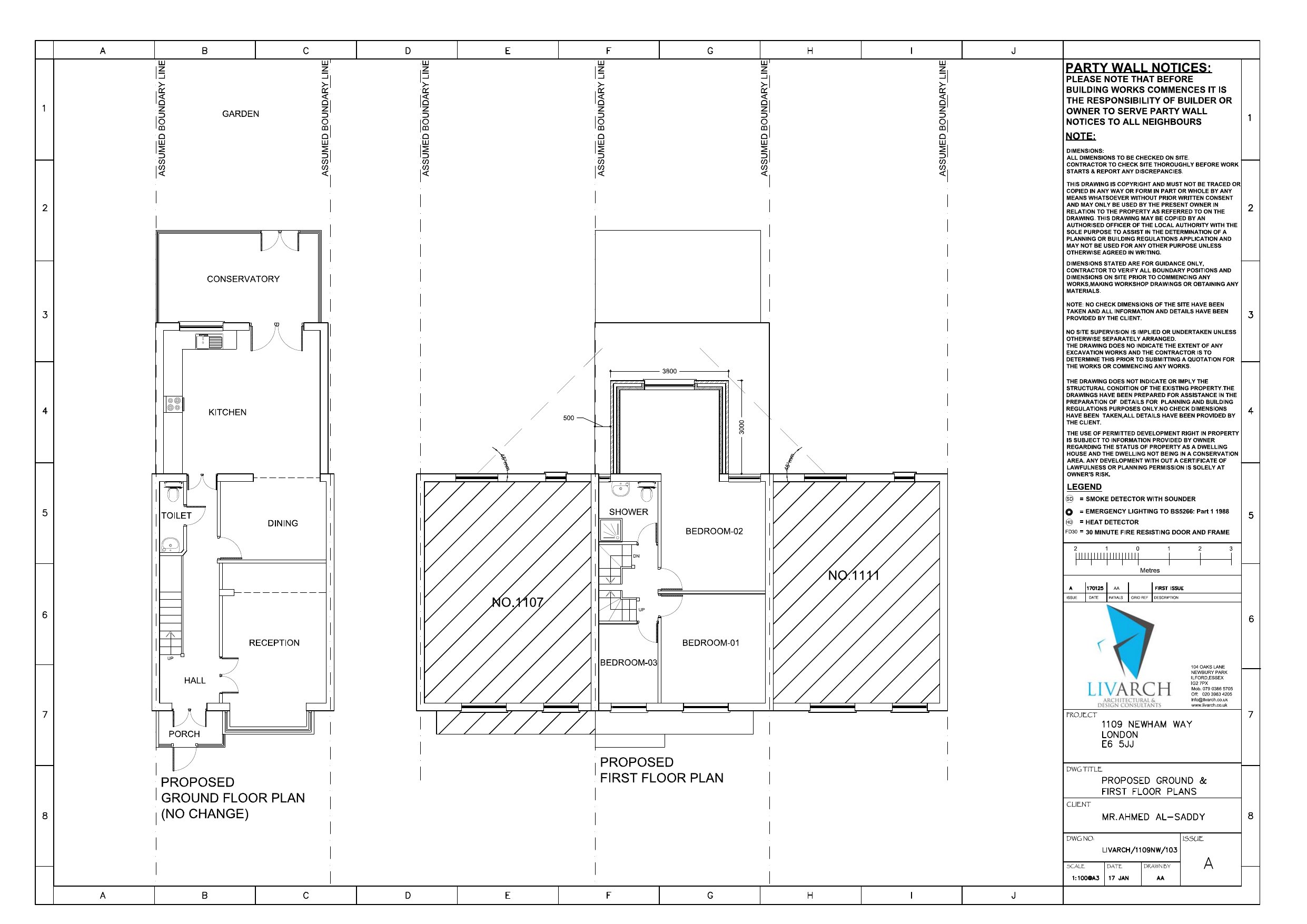
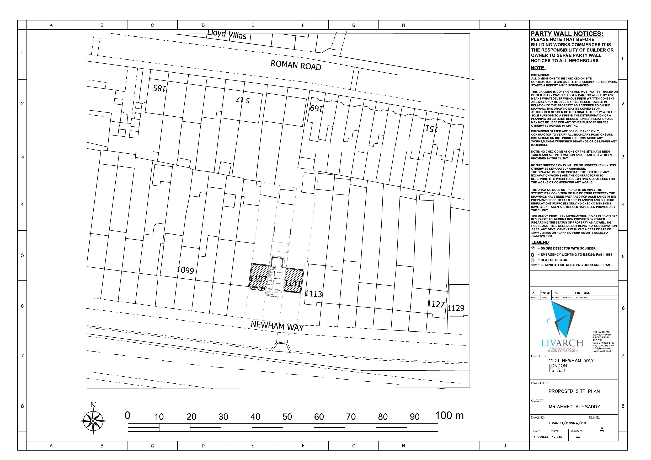
Full proposal
Erection of first floor rear extension.
Documents
Have your say
Your comment matters. Councils must consider every representation that raises material planning considerations.