← Newham

Status

Pending House extension
Received
Not recorded
New homes
0

Full proposal

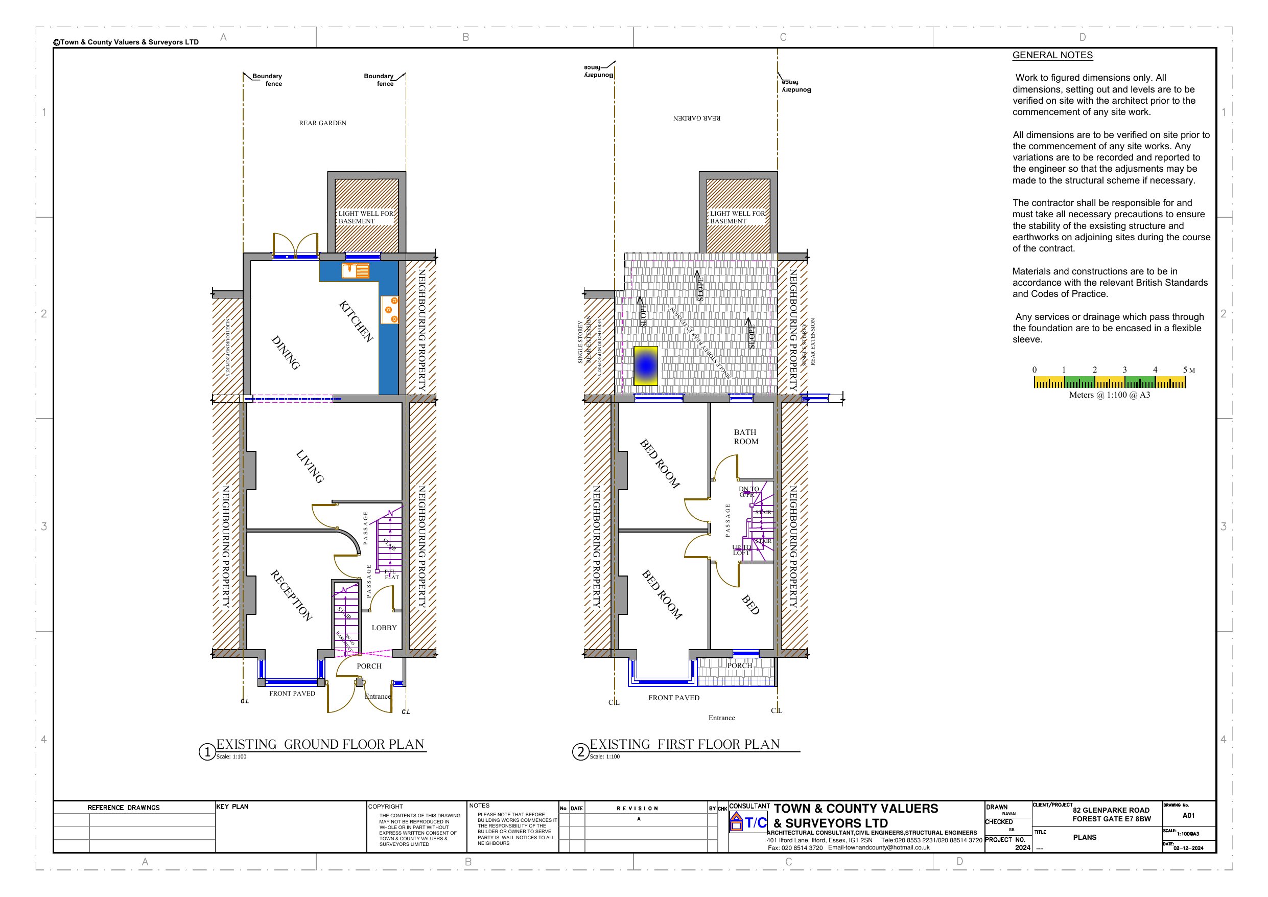
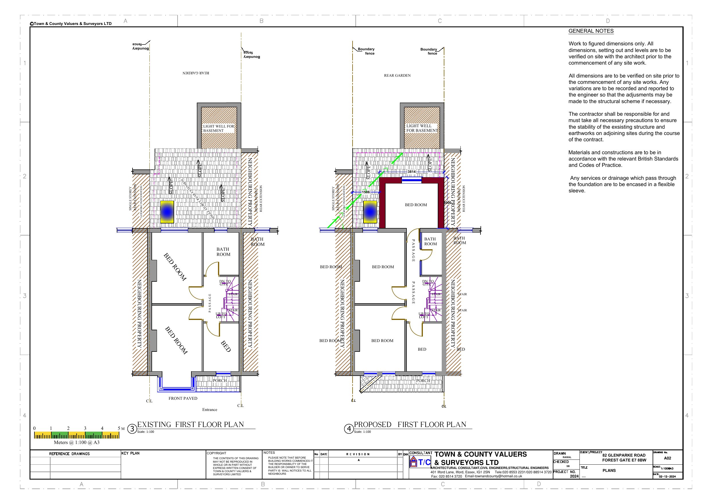
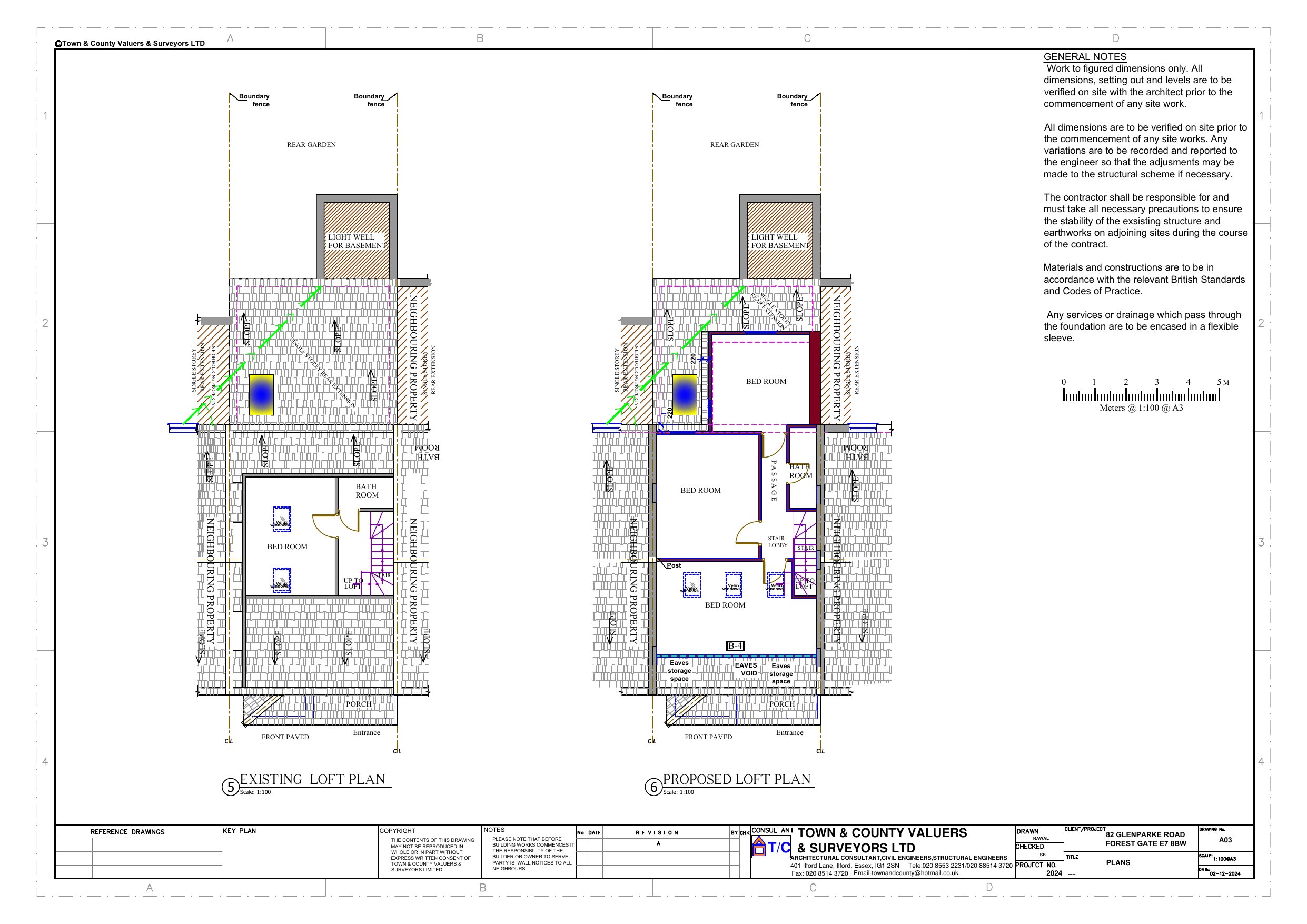
Loft conversion with erection of rear double dormer roof extension and front roof lights and erection of first floor rear extension.

Documents

Application Form (Public)
Archived · Original link
Decision
Archived · Original link
Decision
Archived · Original link
Drawing
Archived · Original link
Drawing
Archived · Original link
Drawing
Archived · Original link
Drawing
Archived · Original link
Drawing
Archived · Original link
Drawing
Archived · Original link

Have your say

Your comment matters. Councils must consider every representation that raises material planning considerations.

Write a comment