← Newham

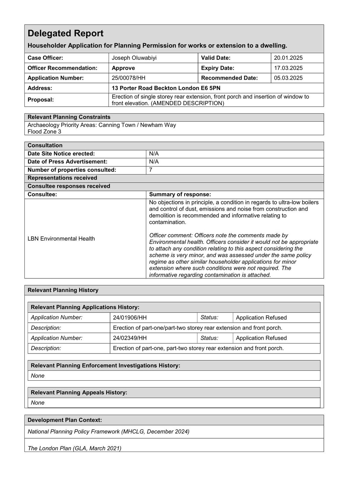
Status

Pending House extension
Received
Not recorded
New homes
0

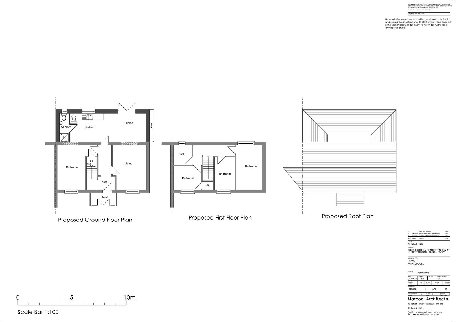
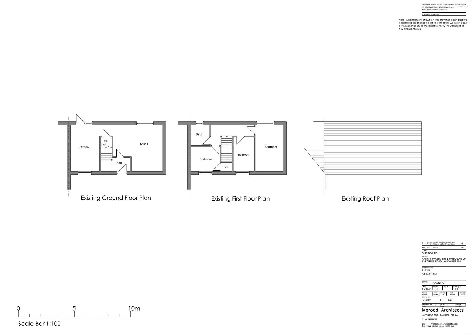
Full proposal

Erection of single storey rear extension, front porch and insertion of window to front elevation. (AMENDED DESCRIPTION)

Documents

Application Form (Public)
Archived · Original link
Decision
Archived · Original link
Decision
Archived · Original link
Drawing
Archived · Original link
Drawing
Archived · Original link
Revised Drawing
Archived · Original link
Revised Drawing
Archived · Original link
Revised Drawing
Archived · Original link
Revised Drawing
Archived · Original link

Have your say

Your comment matters. Councils must consider every representation that raises material planning considerations.

Write a comment