← Newham

Status

Pending House extension
Received
Not recorded
New homes
0

Full proposal

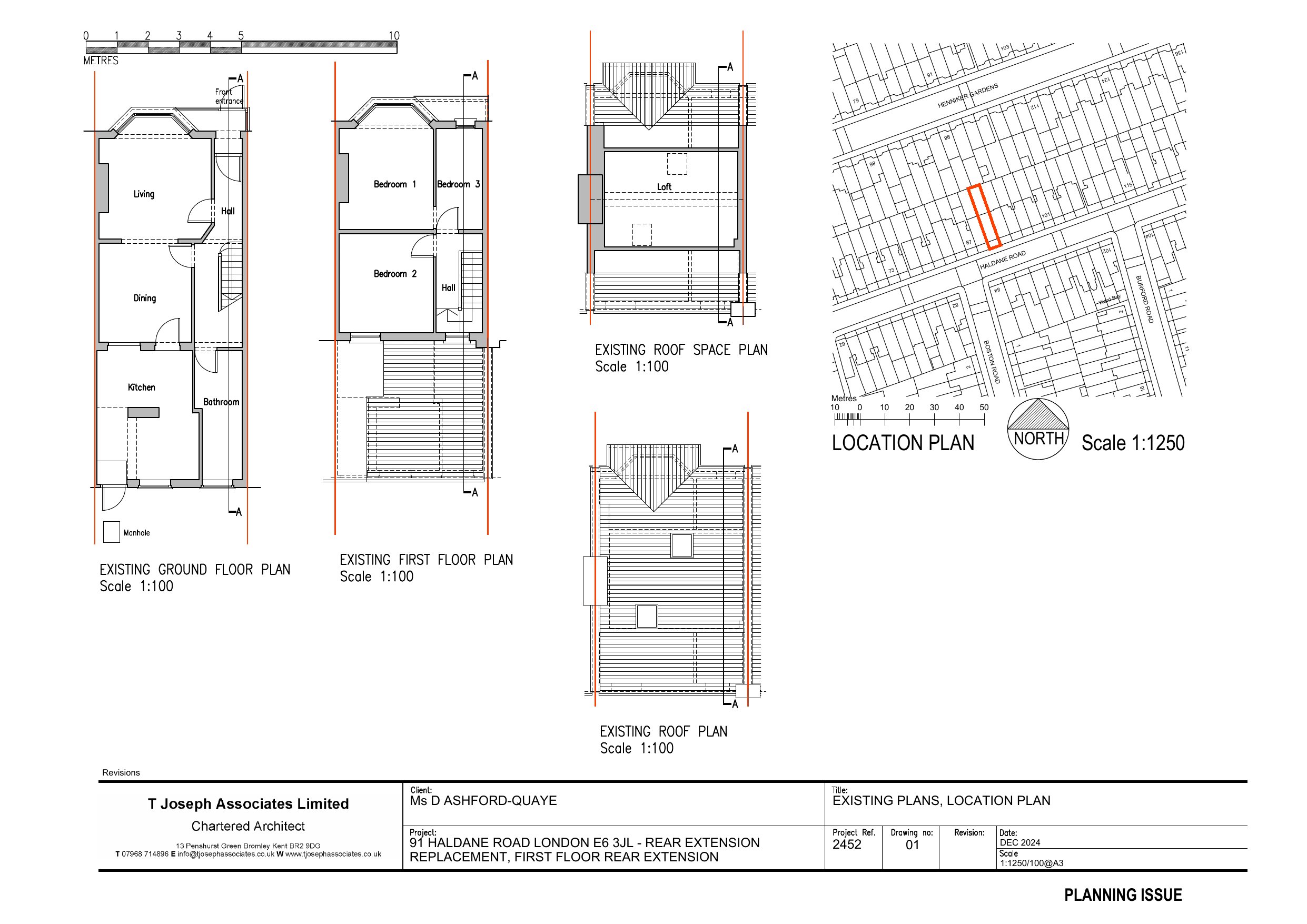
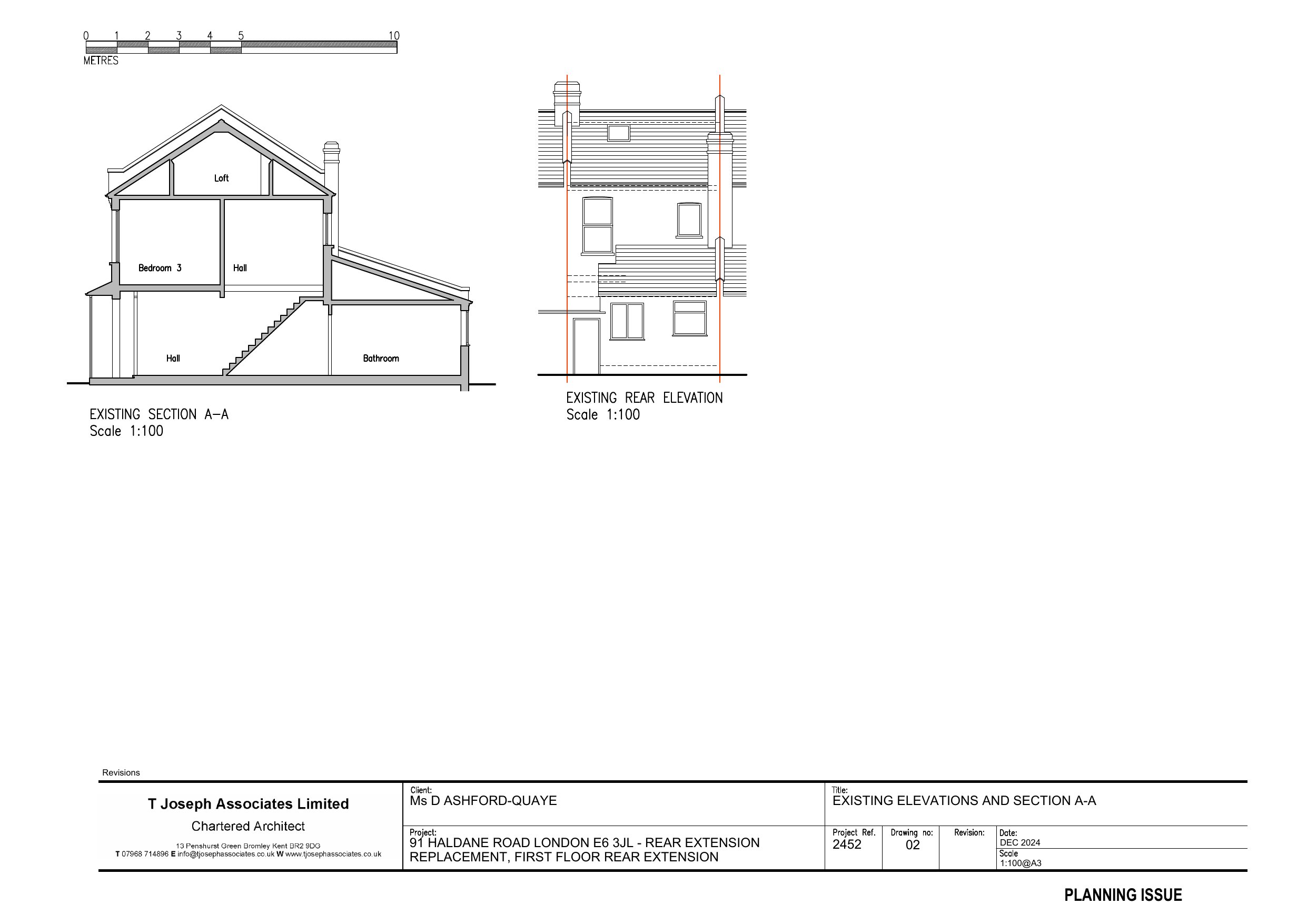
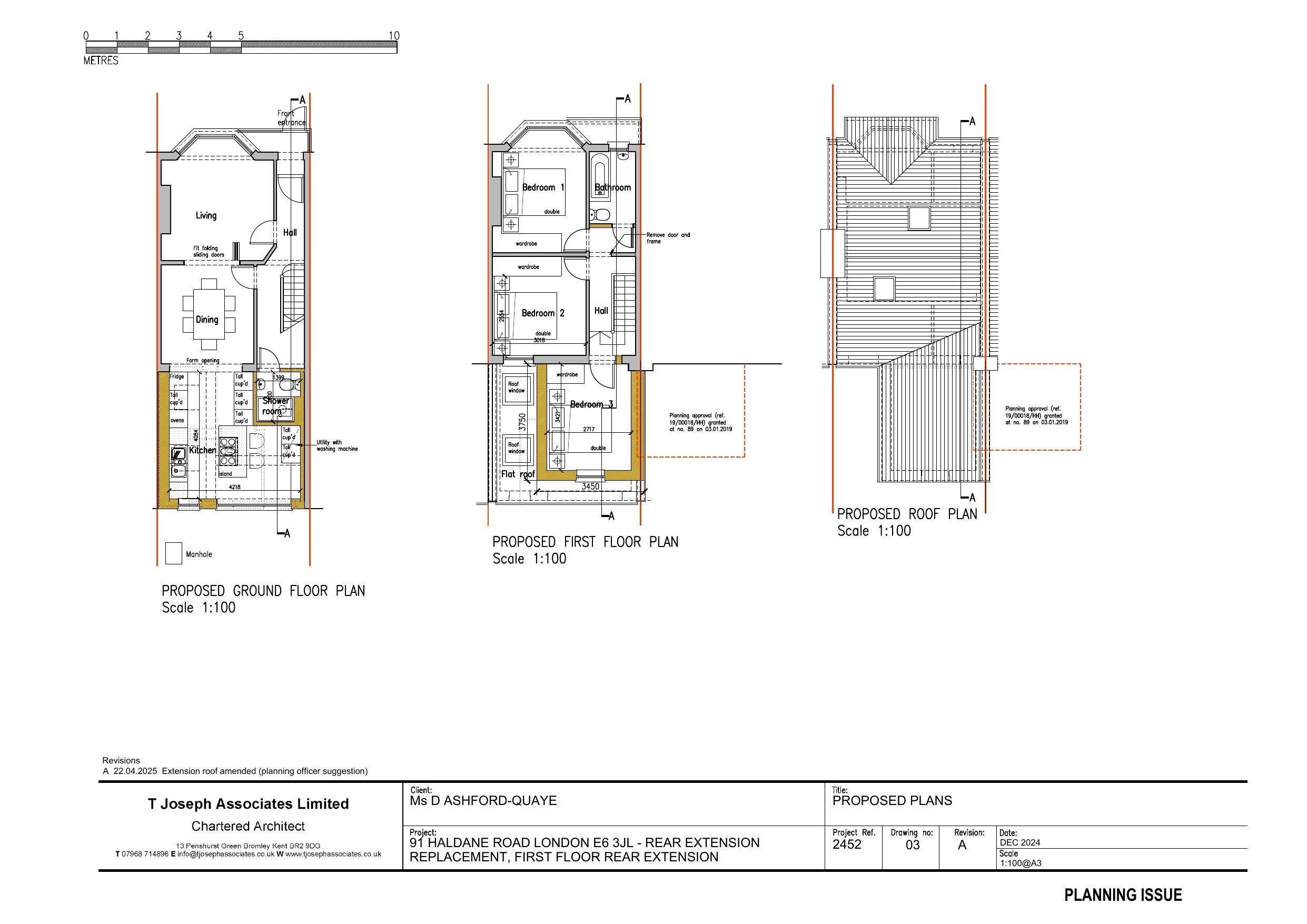
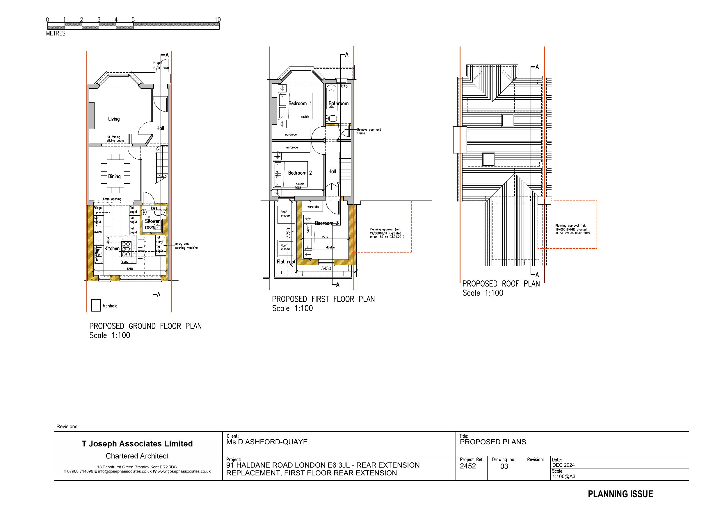
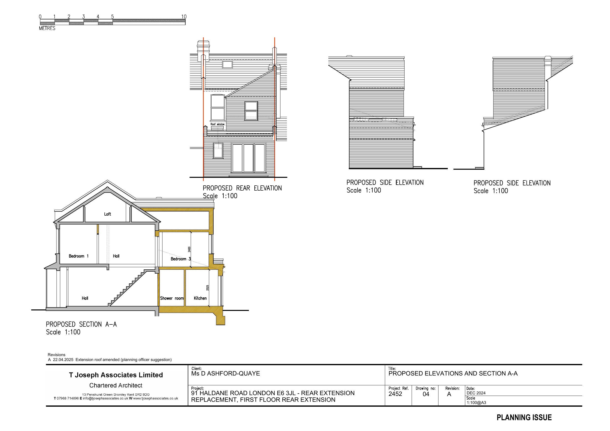
Erection of replacement single storey rear and part first floor rear extension.

Documents

Drawing
Archived · Original link
Application Form (Public)
Archived · Original link
Decision
Archived · Original link
Decision
Archived · Original link
Revised Drawing
Archived · Original link
Superseded
Archived · Original link
Revised Drawing
Archived · Original link
Superseded
Archived · Original link
THE LOCATION PLAN_INCLUDED_IN_MIXEDCOMBINED PLANS
Drawing
Not yet archived · Original link

Have your say

Your comment matters. Councils must consider every representation that raises material planning considerations.

Write a comment