← Newham

Status

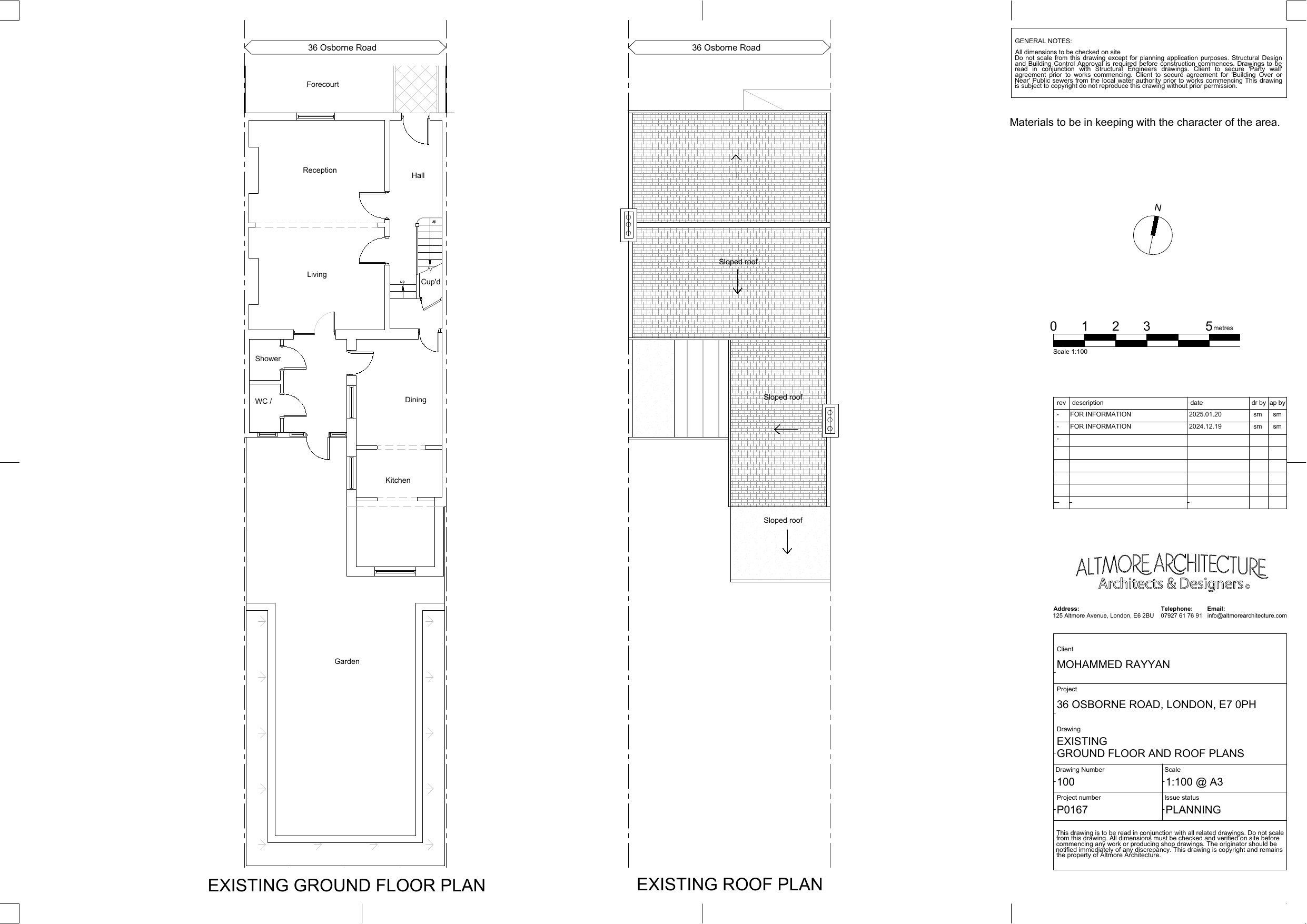
Pending House extension
Received
Not recorded
New homes
0

Full proposal

Erection of a single storey rear side infill extension. (This application is in the Woodgrange Conservation area)

Have your say

Your comment matters. Councils must consider every representation that raises material planning considerations.

Write a comment