← Newham

Status

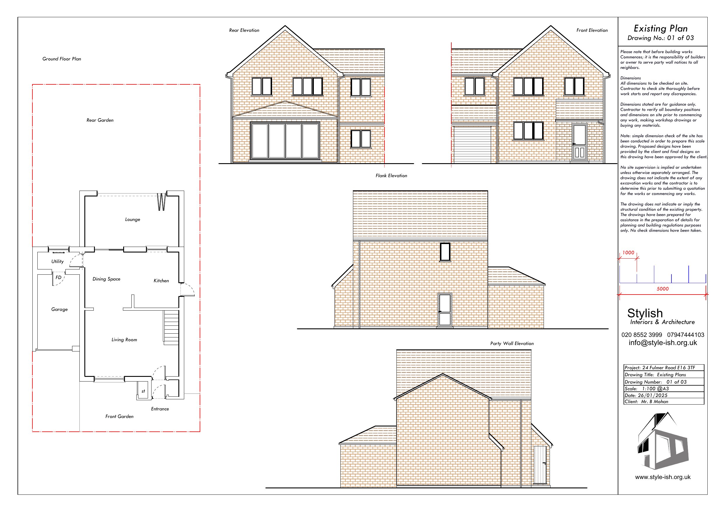
Pending House extension
Received
Not recorded
New homes
0

Full proposal

Conversion of garage to provide habitable accommodation, alterations to front elevation and erection of single storey rear extension.

Documents

Application Form (Public)
Archived · Original link
Decision
Archived · Original link
Decision
Archived · Original link
Drawing
Archived · Original link

Have your say

Your comment matters. Councils must consider every representation that raises material planning considerations.

Write a comment