← Newham

Status

Pending Change of use
Received
Not recorded
New homes
1

Full proposal

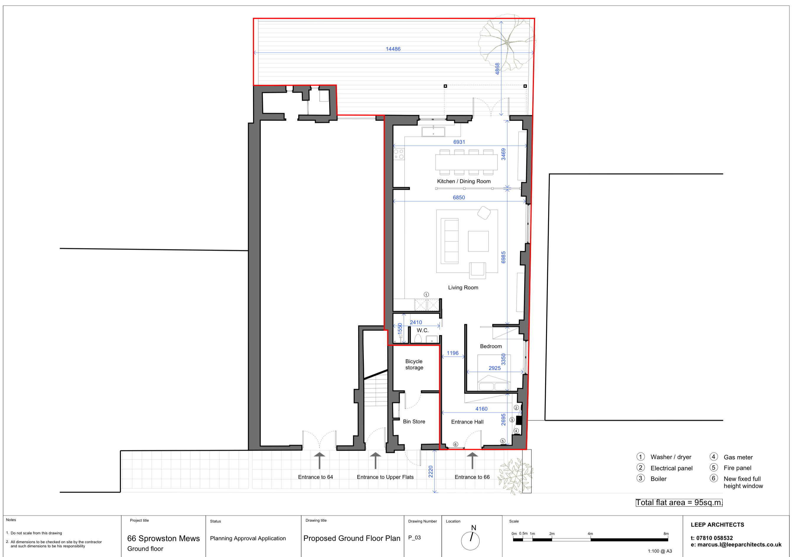
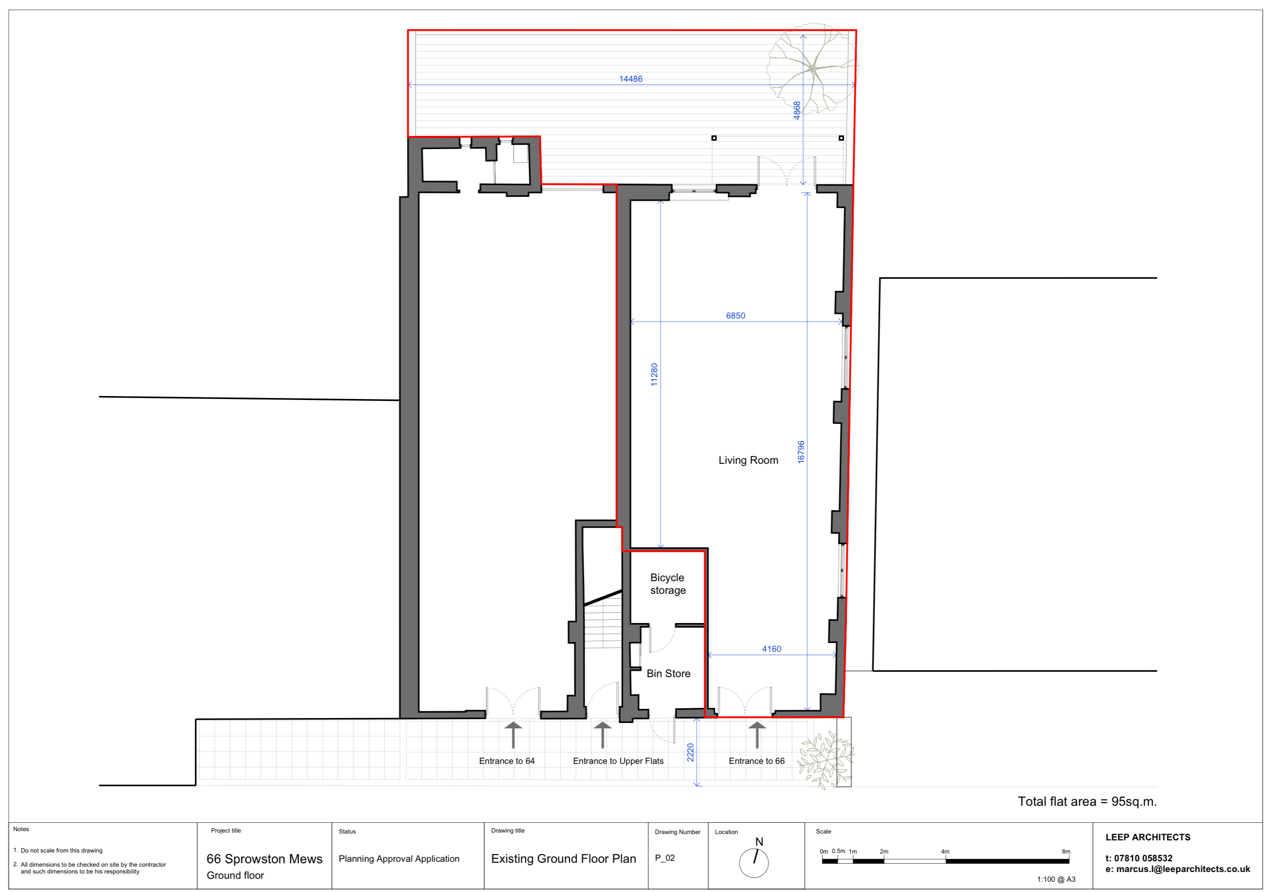
Prior Approval application for the change of use of the existing commercial workshop into 1`no self-contained 1 bedroomed flat.

Documents

Application Form (Public)
Archived · Original link
Decision
Archived · Original link
Decision
Archived · Original link
Drawing
Archived · Original link
Drawing
Archived · Original link
EXISTING/PROPOSED NORTH ELEVATION
Drawing
Not yet archived · Original link
Drawing
Archived · Original link
Drawing
Archived · Original link
Drawing
Archived · Original link

Have your say

Your comment matters. Councils must consider every representation that raises material planning considerations.

Write a comment