25/01042/HH
Newham
Status
Pending
House extension
Received
Not recorded
New homes
0
Full proposal
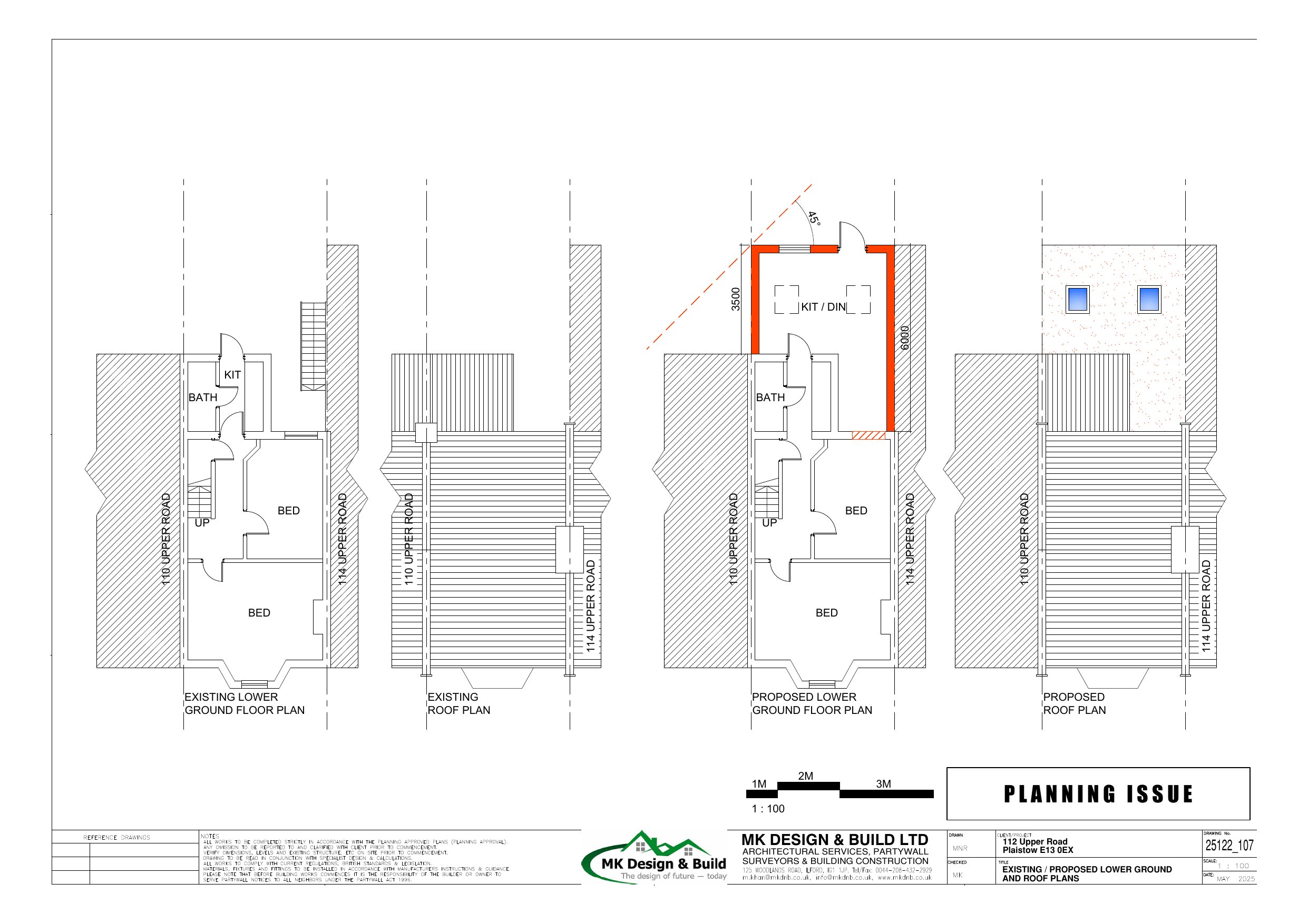
Erection of single storey side and rear extension.
Documents
Have your say
Your comment matters. Councils must consider every representation that raises material planning considerations.