← Newham

Status

Pending House extension
Received
Not recorded
New homes
0

Full proposal

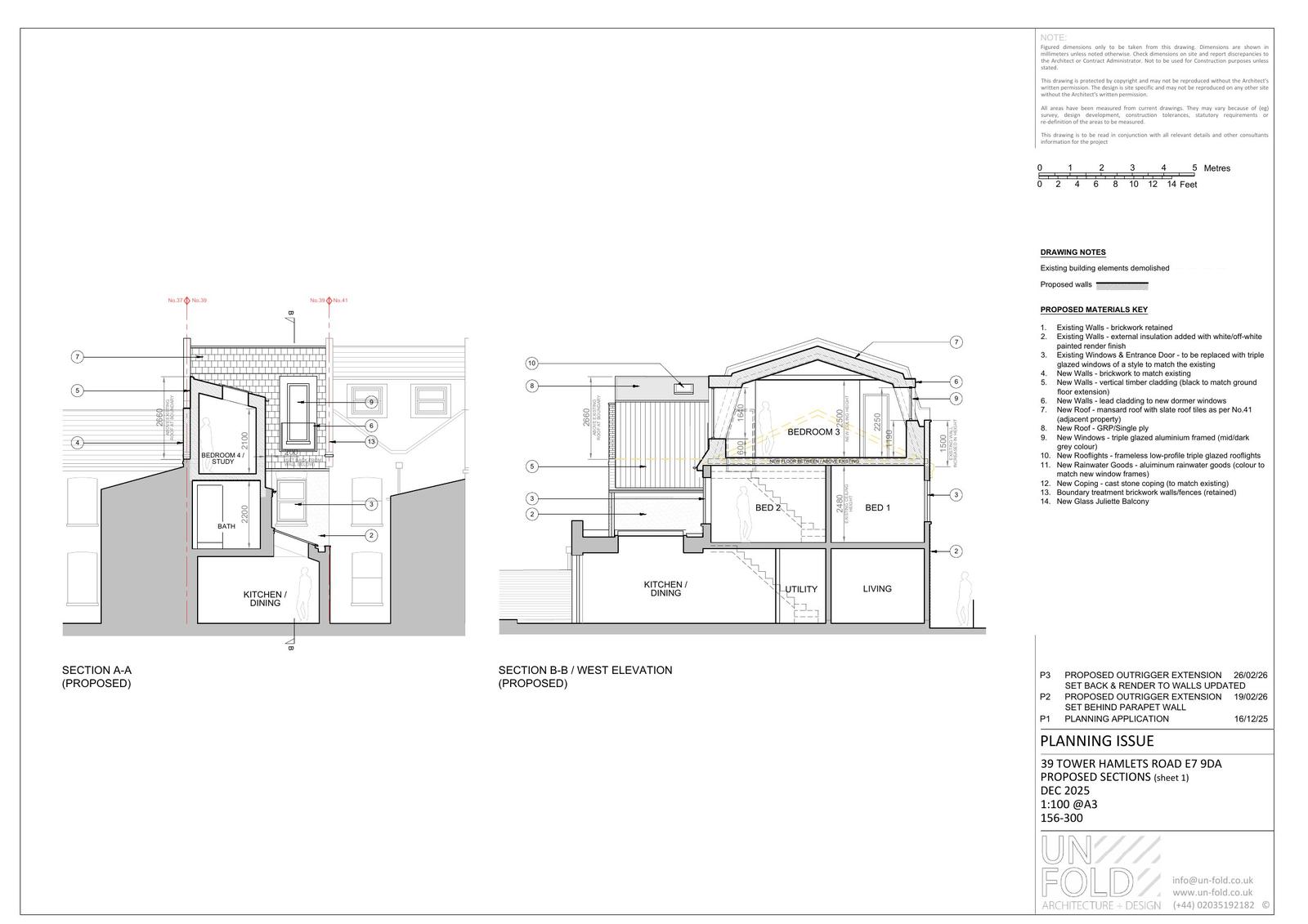
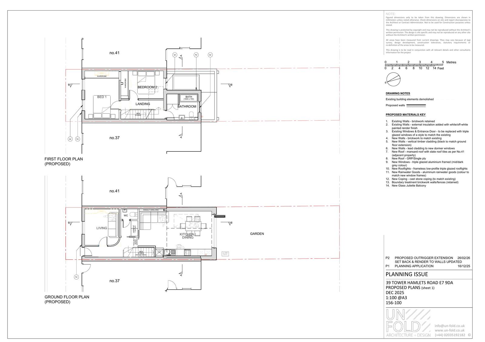
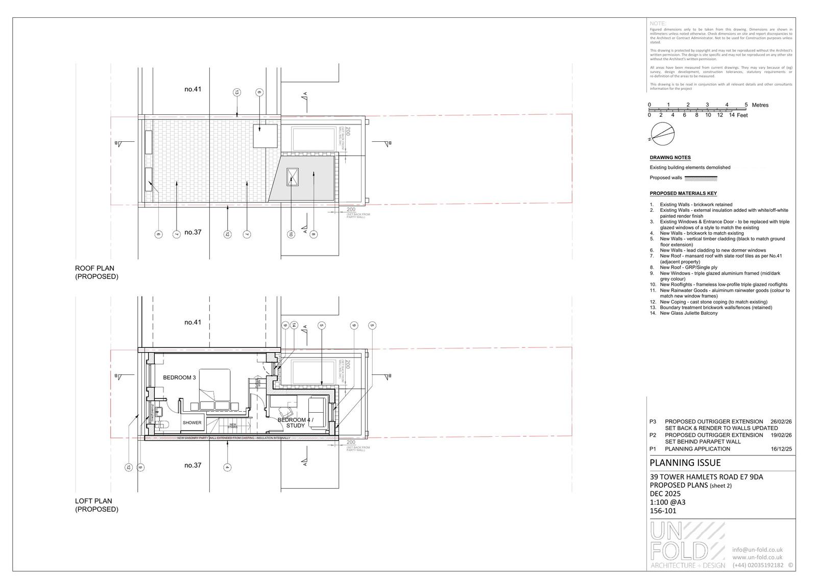
Erection of loft conversion with mansard roof comprising two dormer windows to the main front roof slope and a dormer window with juliet balcony to the rear roof slope with a dormer projecting along the outrigger, and external render finish applied to existing brickwork. (amended description)

Documents

Application Form (Public)
Archived · Original link
Documentation
Archived · Original link
Drawing
Archived · Original link
Drawing
Archived · Original link
Drawing
Archived · Original link
Drawing
Archived · Original link
Drawing
Archived · Original link
Drawing
Archived · Original link
Revised Drawing
Archived · Original link
Revised Drawing
Archived · Original link
Revised Drawing
Archived · Original link
Revised Drawing
Archived · Original link

Have your say

Your comment matters. Councils must consider every representation that raises material planning considerations.

Write a comment