← Newham

Status

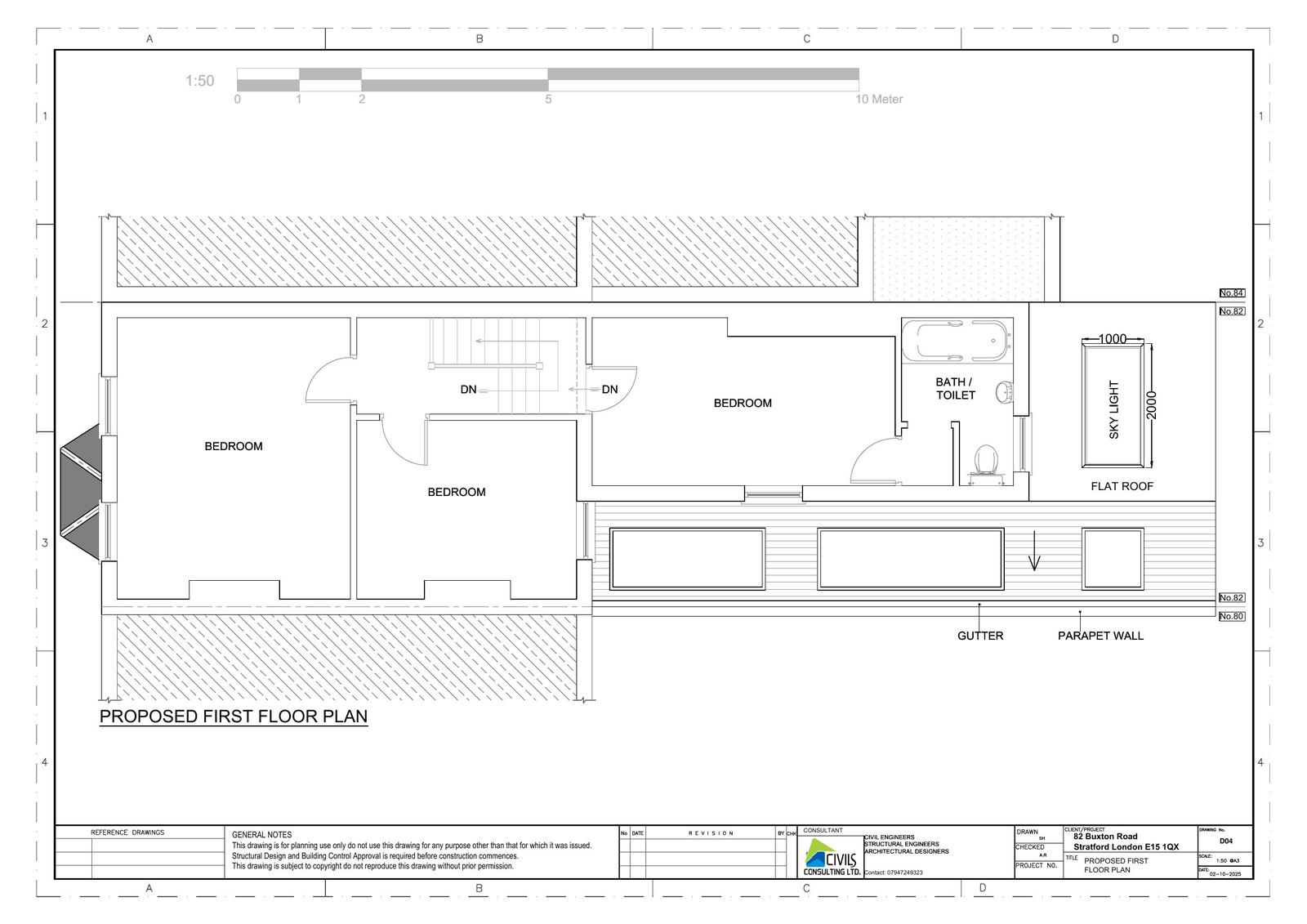
Pending House extension
Received
Not recorded
New homes
0

Full proposal

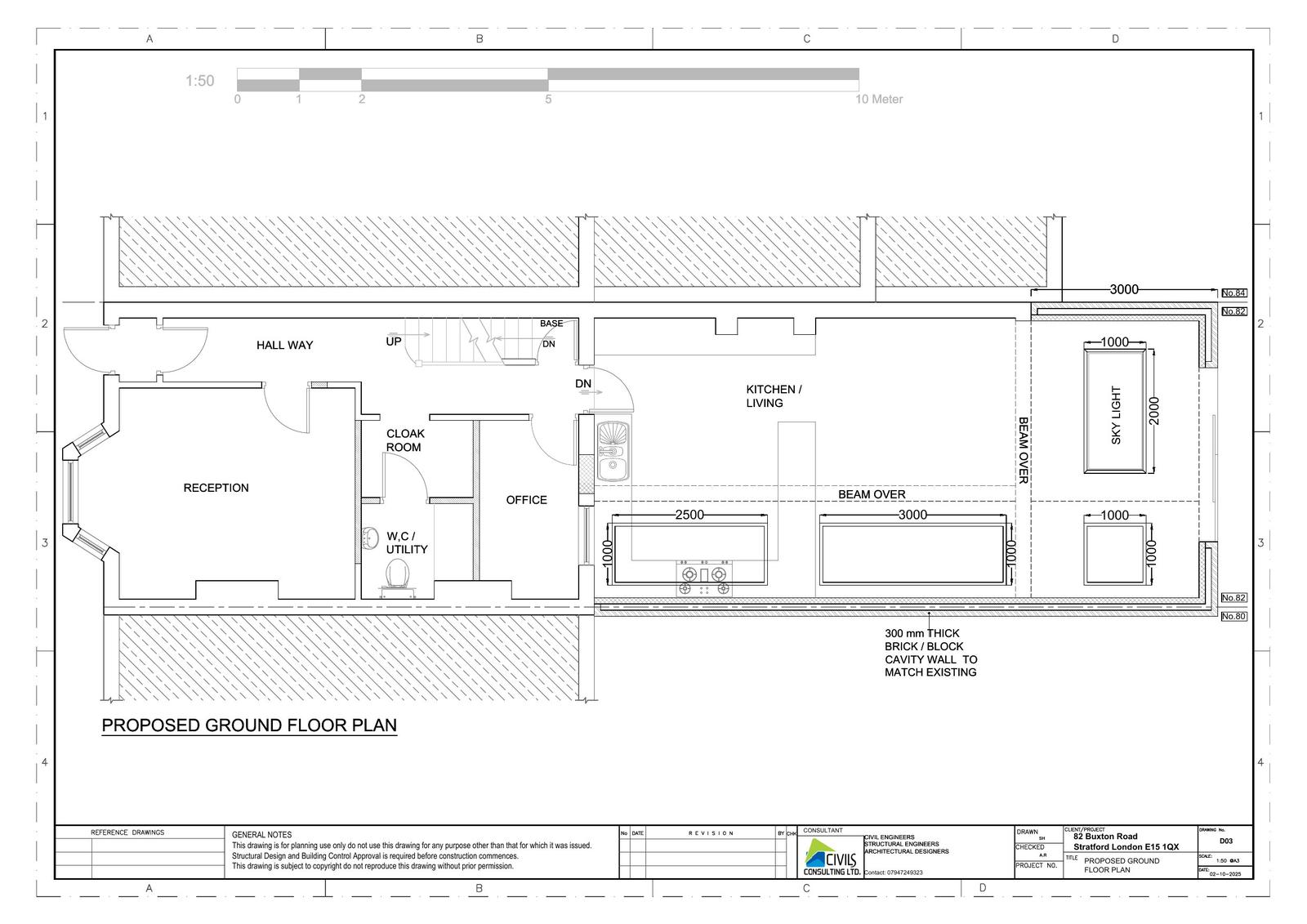
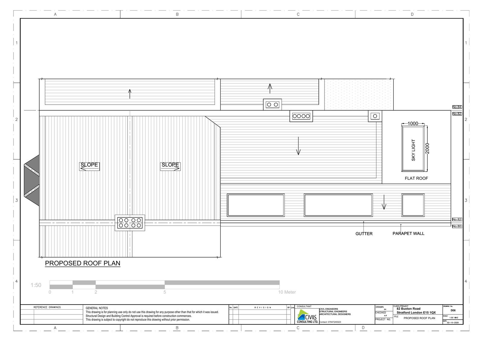
Erection of single storey ground floor side/ rear extension with roof lights.

Have your say

Your comment matters. Councils must consider every representation that raises material planning considerations.

Write a comment