← Newham

Status

Pending House extension
Received
Not recorded
New homes
0

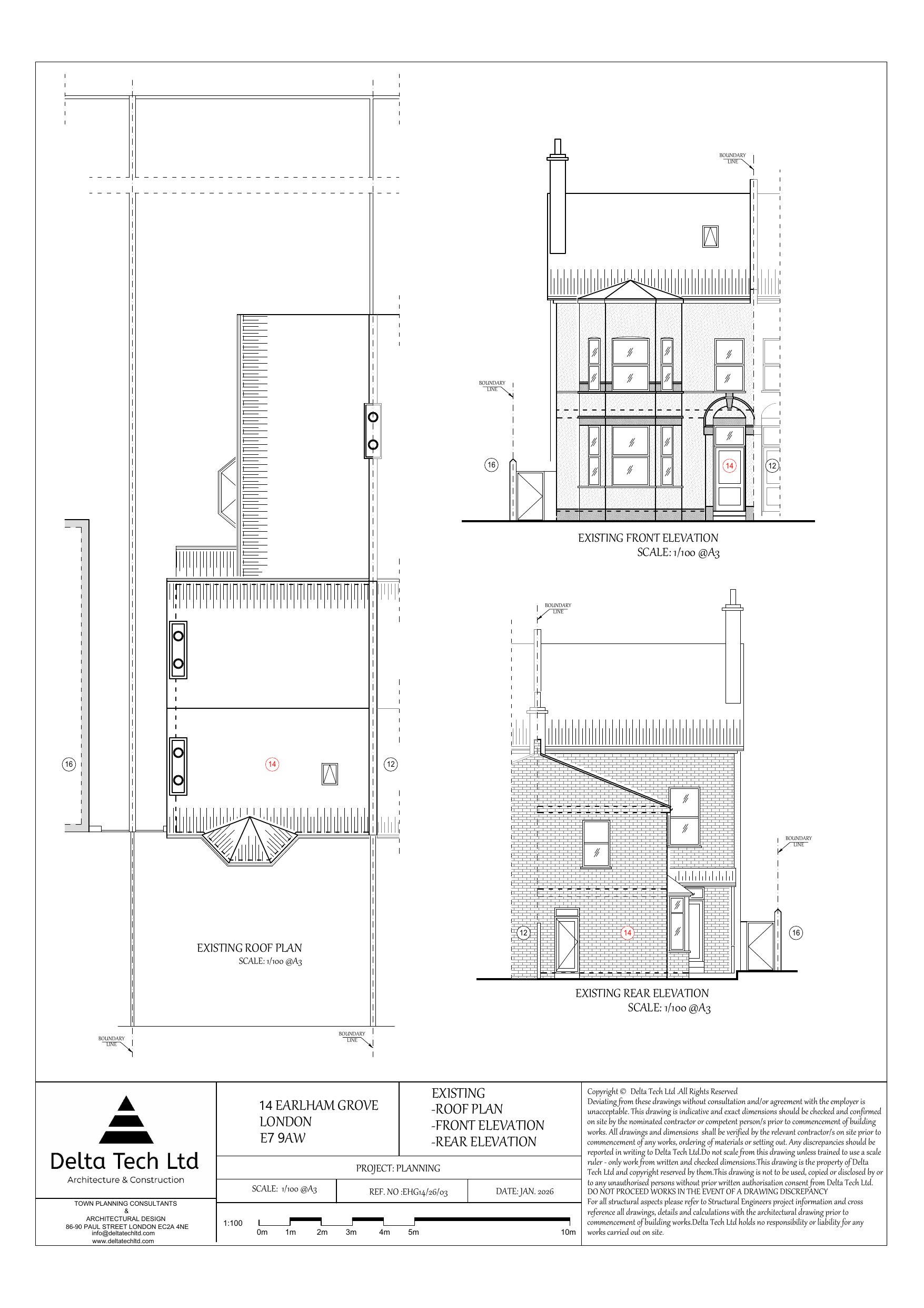
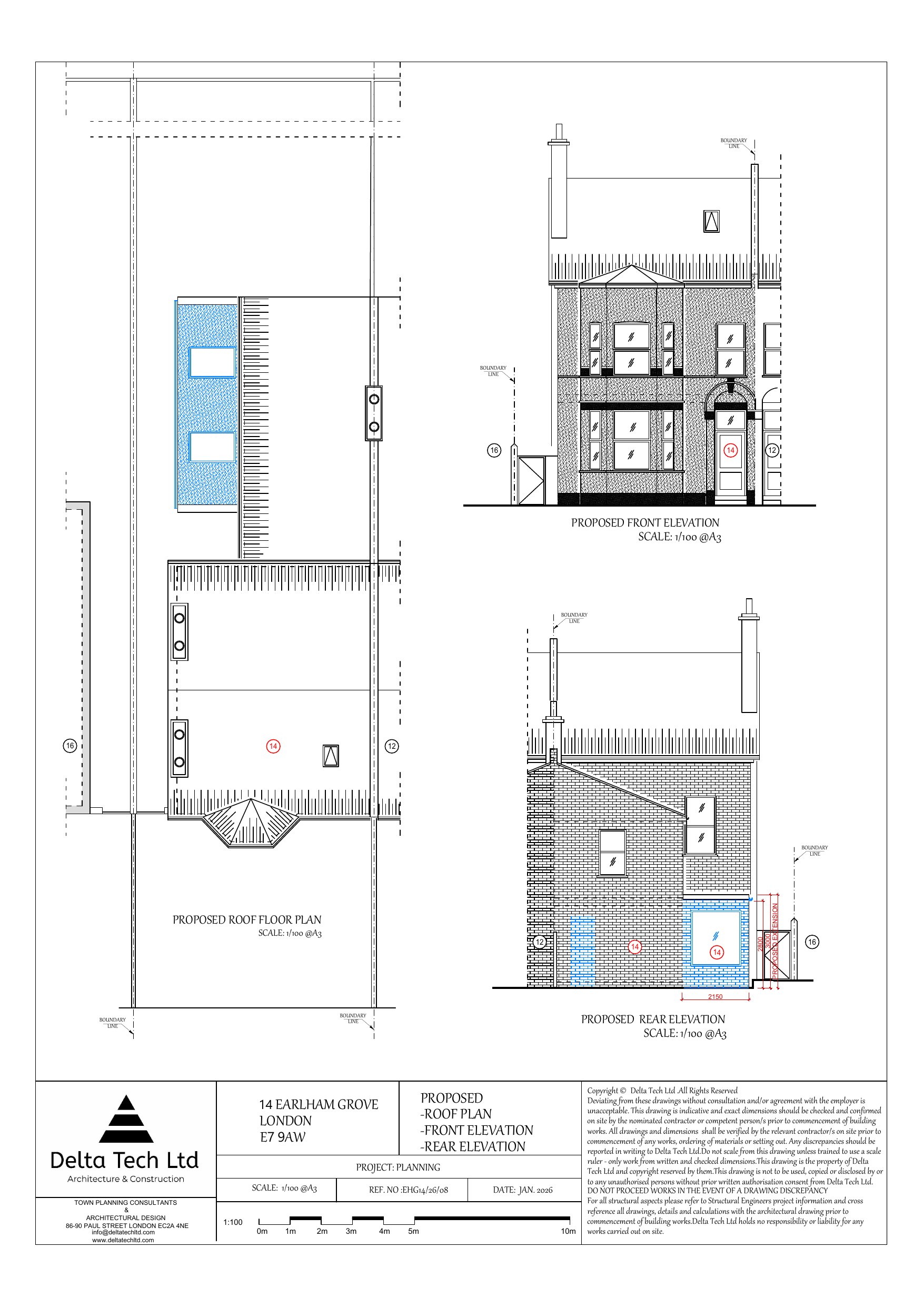
Full proposal

Erection of single storey side extension with roof lights.

Have your say

Your comment matters. Councils must consider every representation that raises material planning considerations.

Write a comment