← Newham

Status

Pending House extension
Received
Not recorded
New homes
0

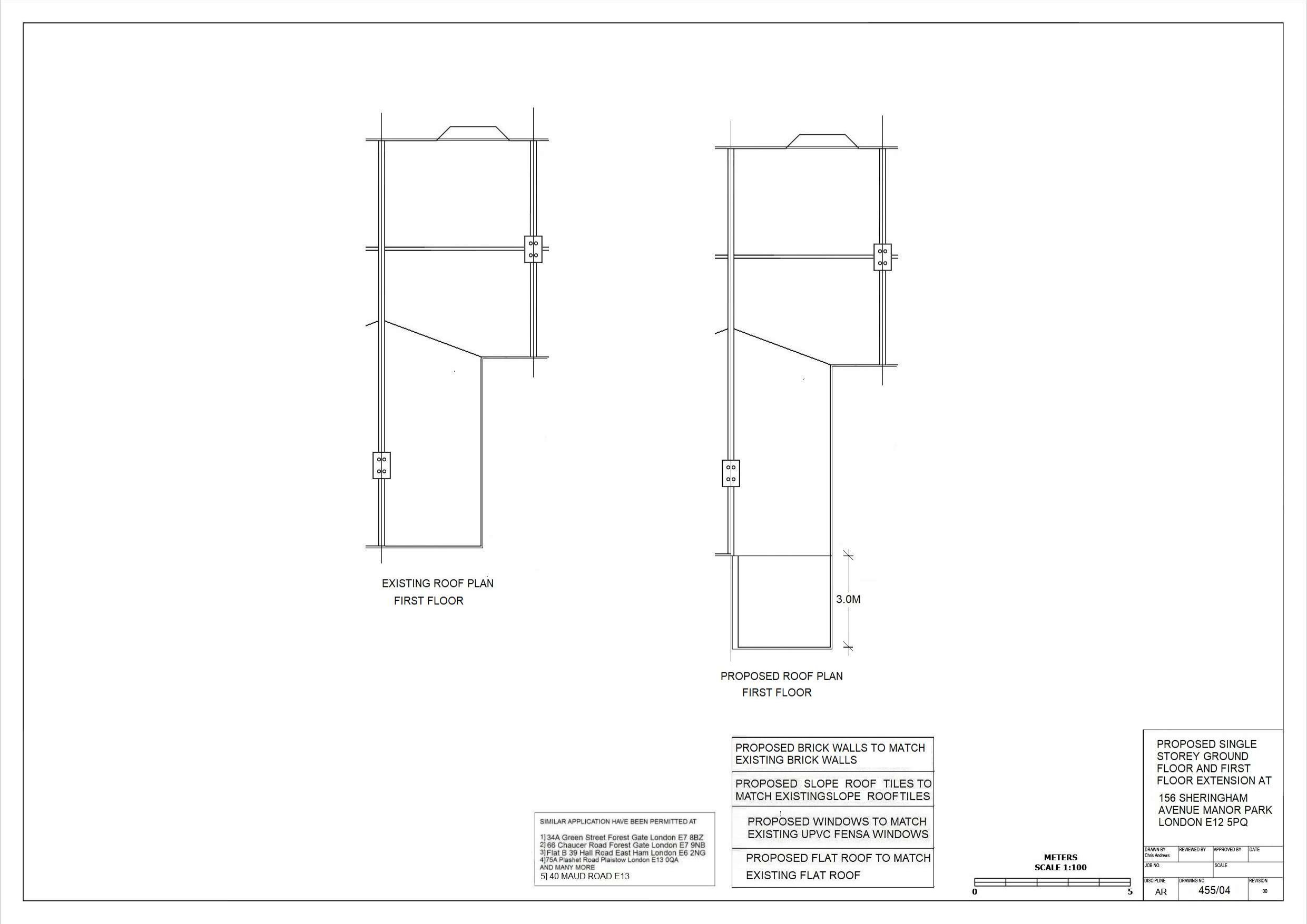
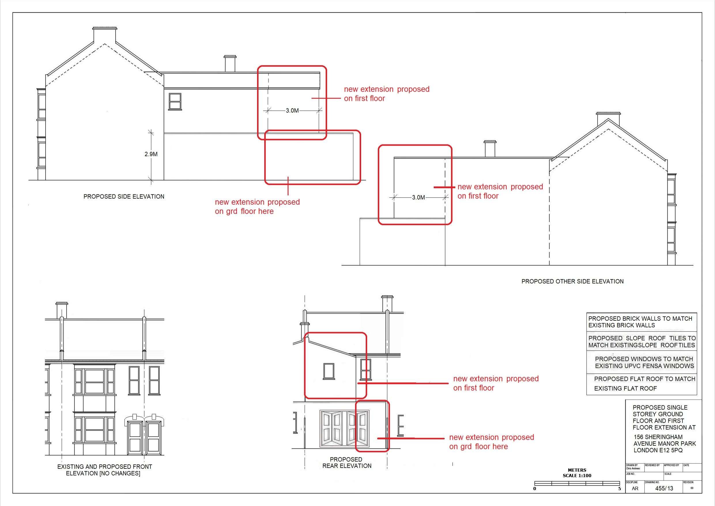
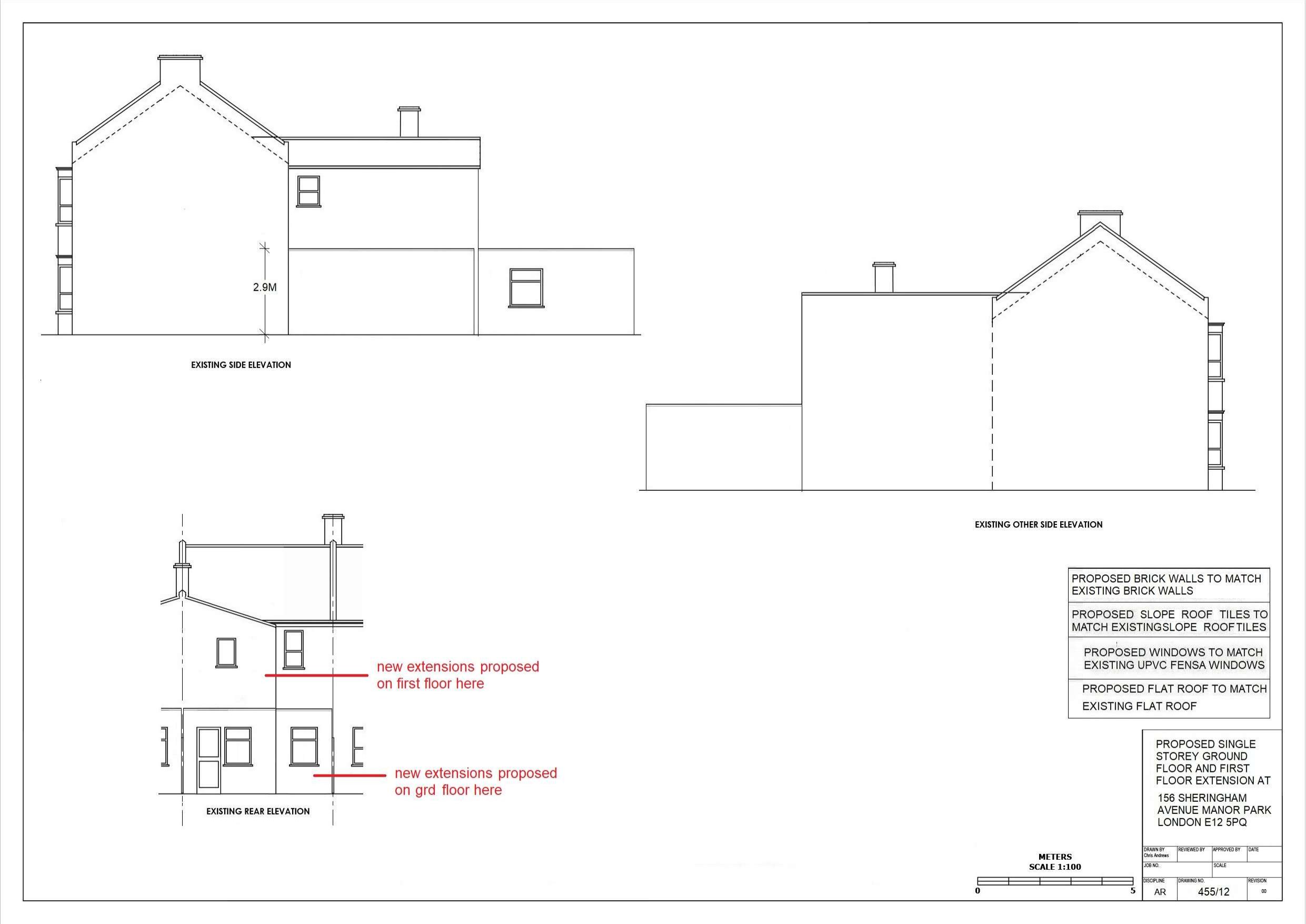
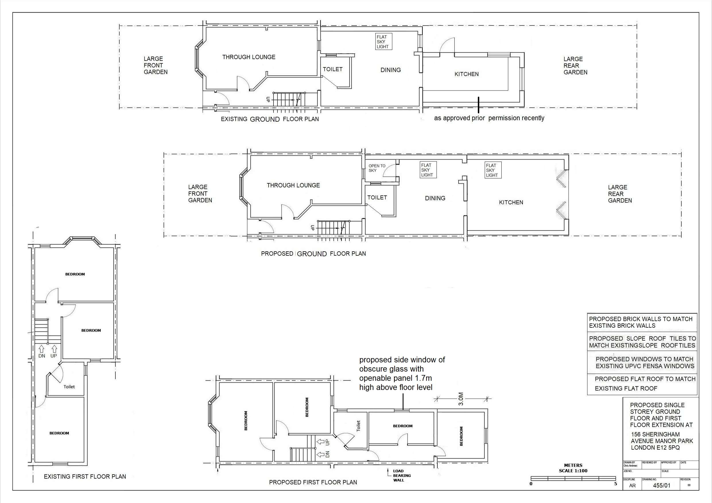
Full proposal

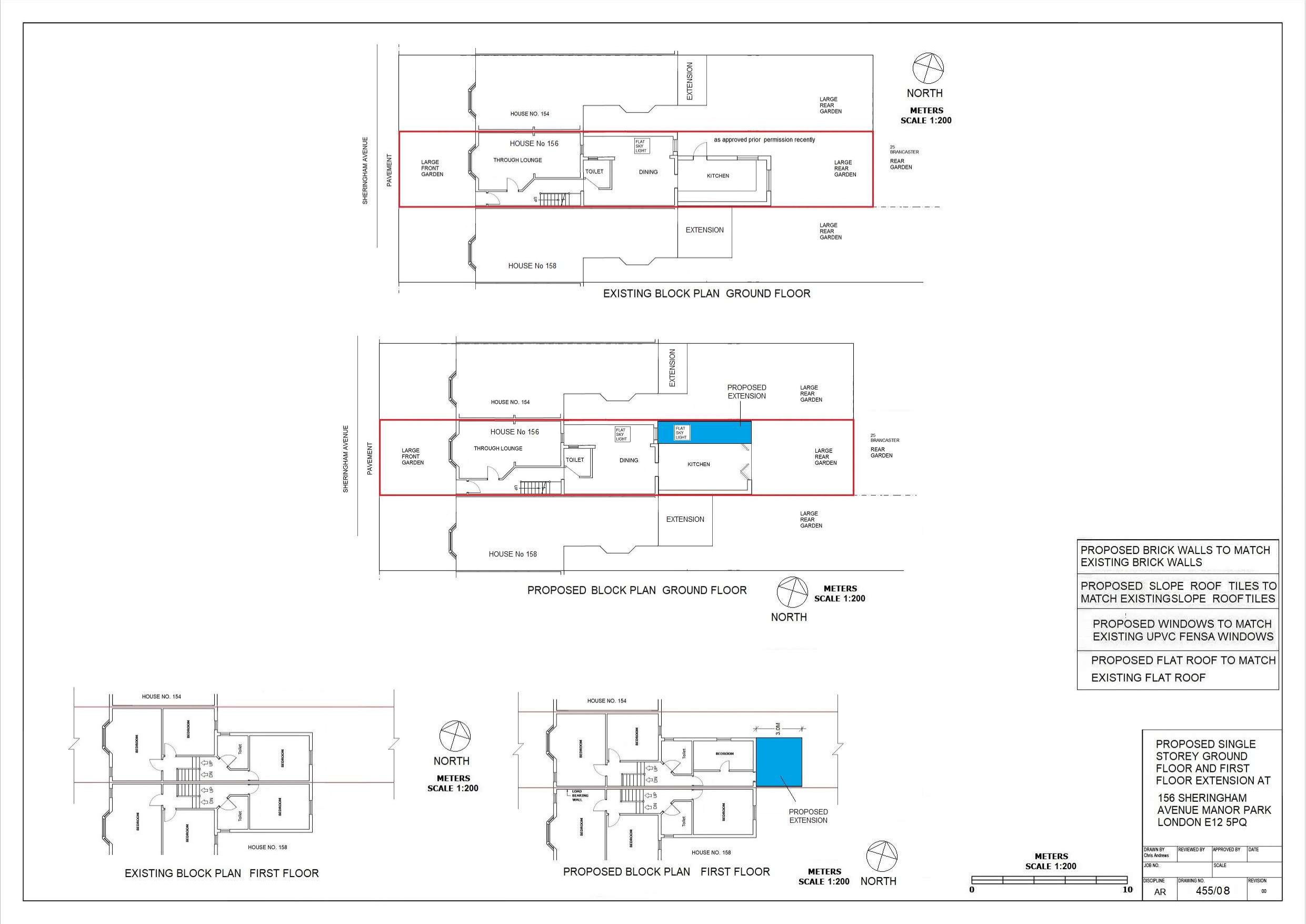
Erection of ground floor rear extension and erection of part first floor rear extension.

Documents

Application Form (Public)
Archived · Original link
Drawing
Archived · Original link
Drawing
Archived · Original link
Documentation
Archived · Original link
Drawing
Archived · Original link

Have your say

Your comment matters. Councils must consider every representation that raises material planning considerations.

Write a comment