← Newham

Status

Pending House extension
Received
Not recorded
New homes
0

Full proposal

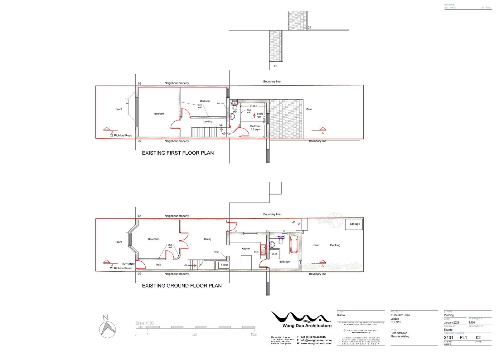
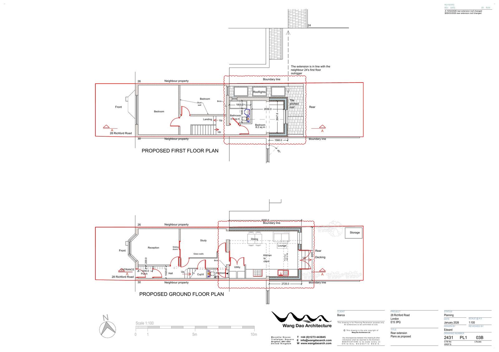
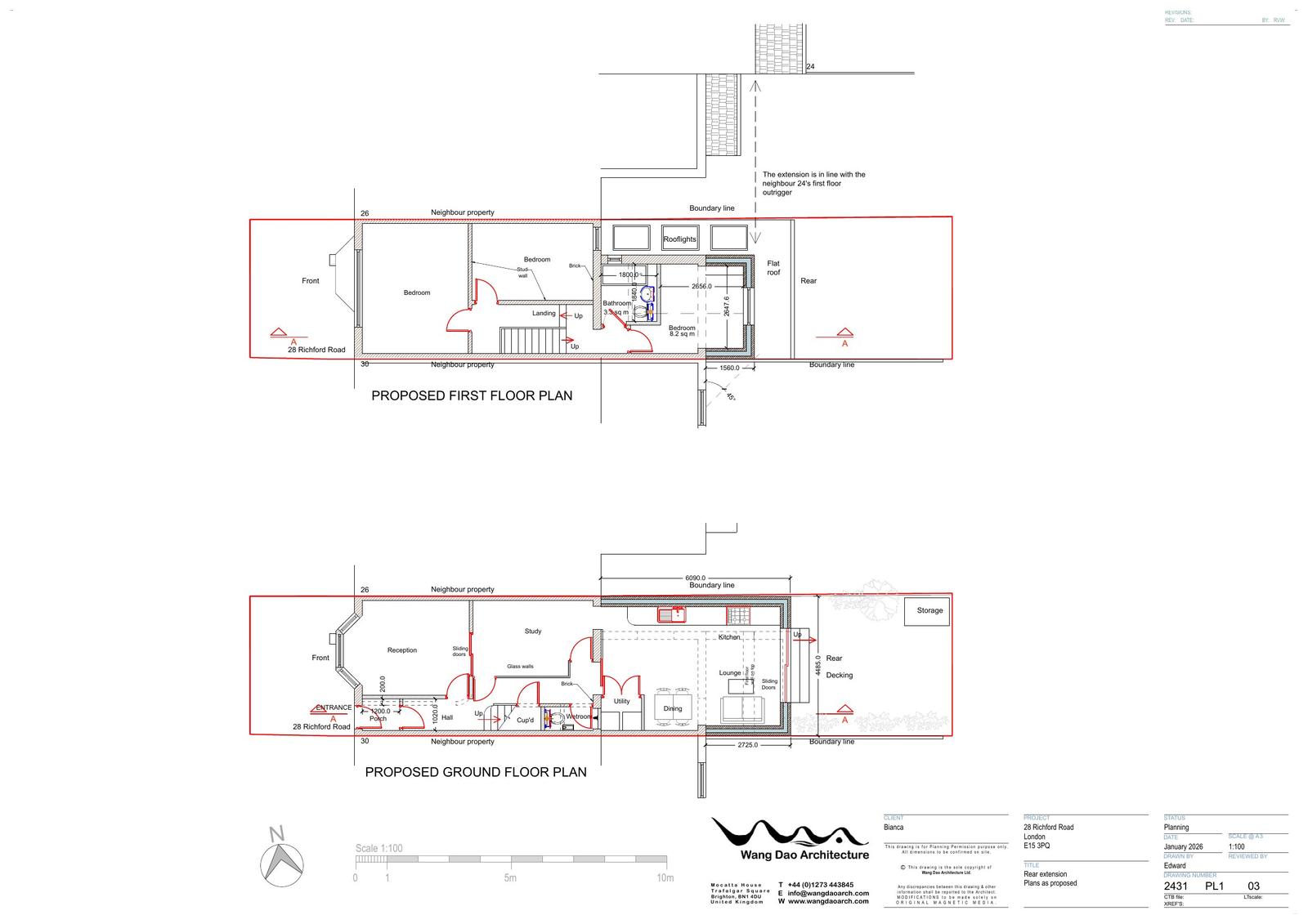
Erection of single storey rear and side extension with roof lights and erection of first floor rear extension.

Have your say

Your comment matters. Councils must consider every representation that raises material planning considerations.

Write a comment