← Newham

Status

Pending House extension
Received
Not recorded
New homes
0

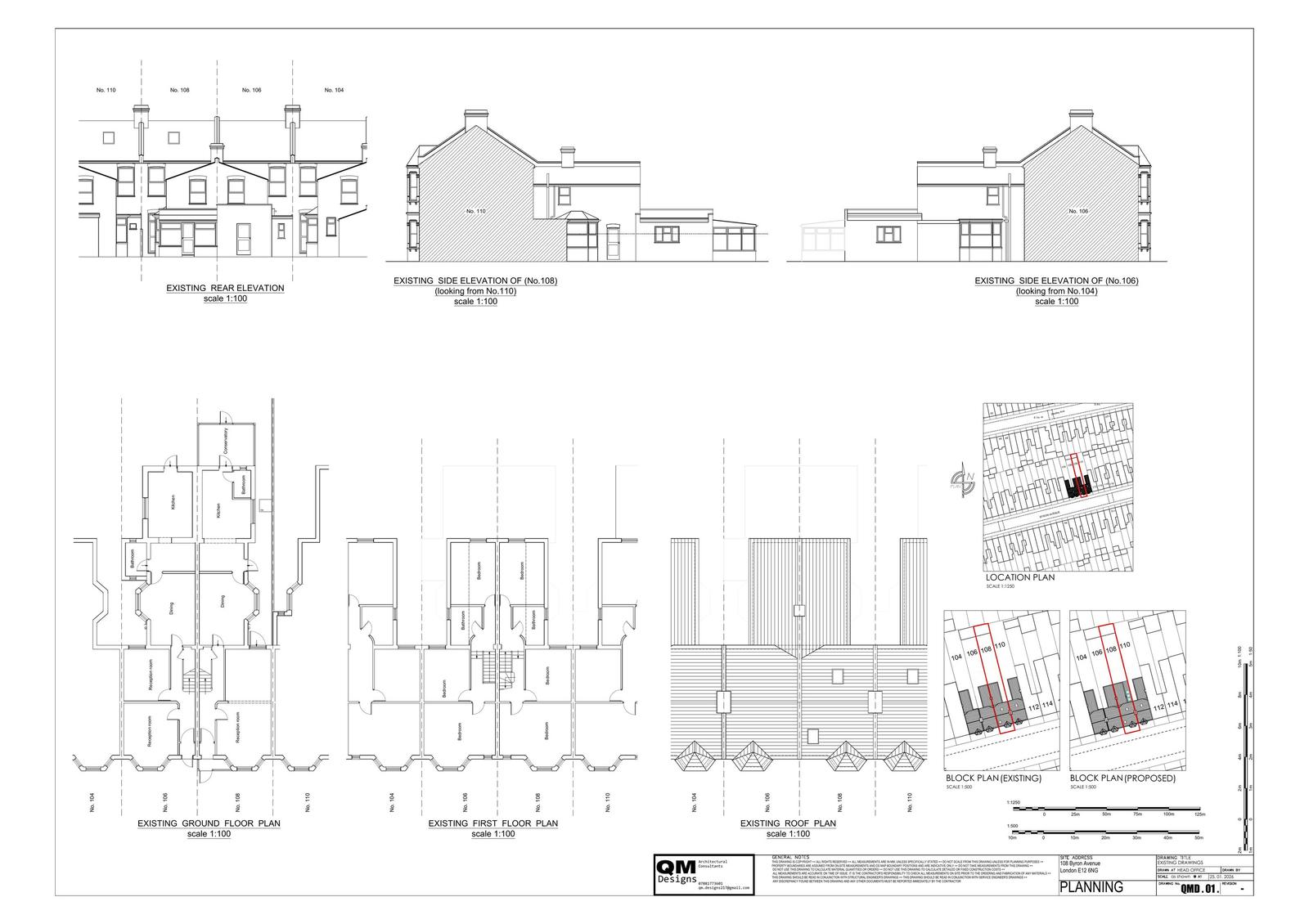
Full proposal

Erection of ground floor rear side infill extension.

Documents

Application Form (Public)
Archived · Original link
Drawing
Archived · Original link
Drawing
Archived · Original link

Have your say

Your comment matters. Councils must consider every representation that raises material planning considerations.

Write a comment