← Newham

Status

Pending Change of use
Received
Not recorded
New homes
0

Full proposal

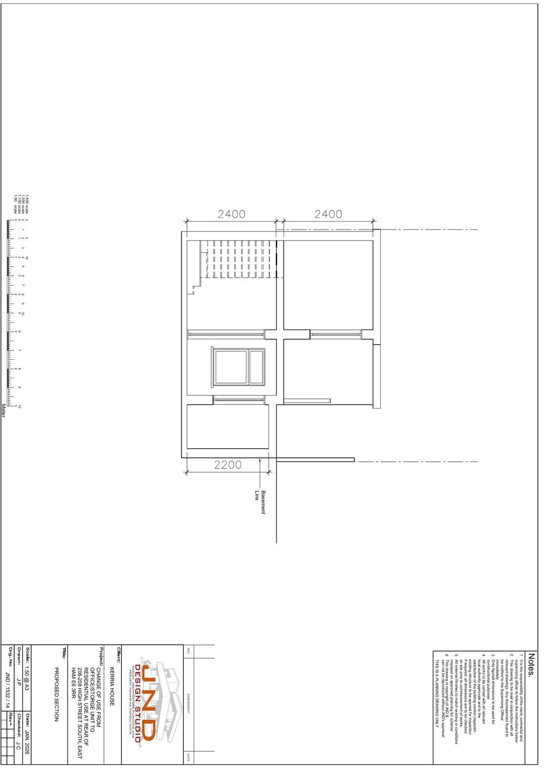
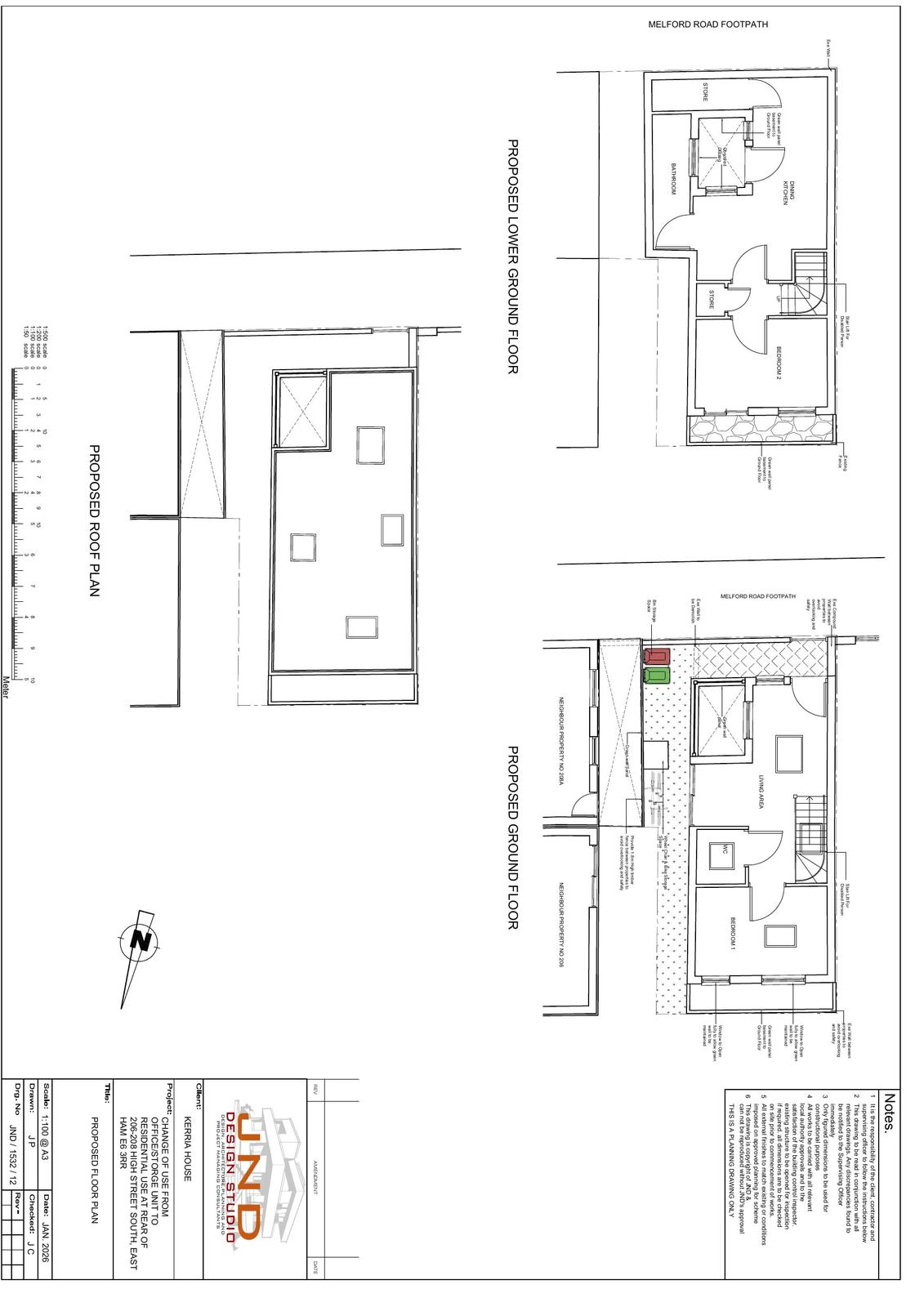
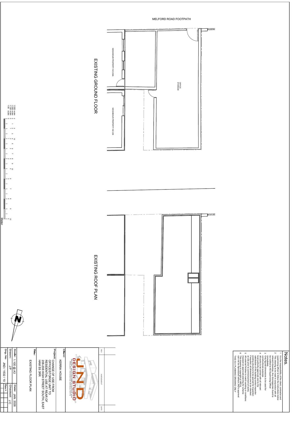
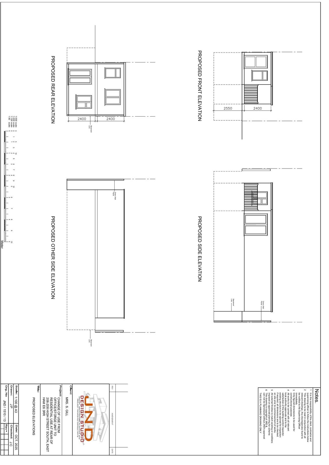
Change of use of the existing ground-floor office to create a self-contained two-bedroom residential unit arranged over the lower-ground floor and ground floor at rear of 206-208 High Street South, E6.

Documents

APPLICATIONFORMREDACTED
Application Form (Public)
Not yet archived · Original link
Documentation
Archived · Original link
Drawing
Archived · Original link
CIL
Archived · Original link
Documentation
Archived · Original link
Drawing
Archived · Original link
Drawing
Archived · Original link
FIRE SAFETY STRATEGY
Documentation
Not yet archived · Original link
Documentation
Archived · Original link
Documentation
Archived · Original link
Drawing
Archived · Original link
Drawing
Archived · Original link
Drawing
Archived · Original link
Drawing
Archived · Original link

Have your say

Your comment matters. Councils must consider every representation that raises material planning considerations.

Write a comment