← Newham

Status

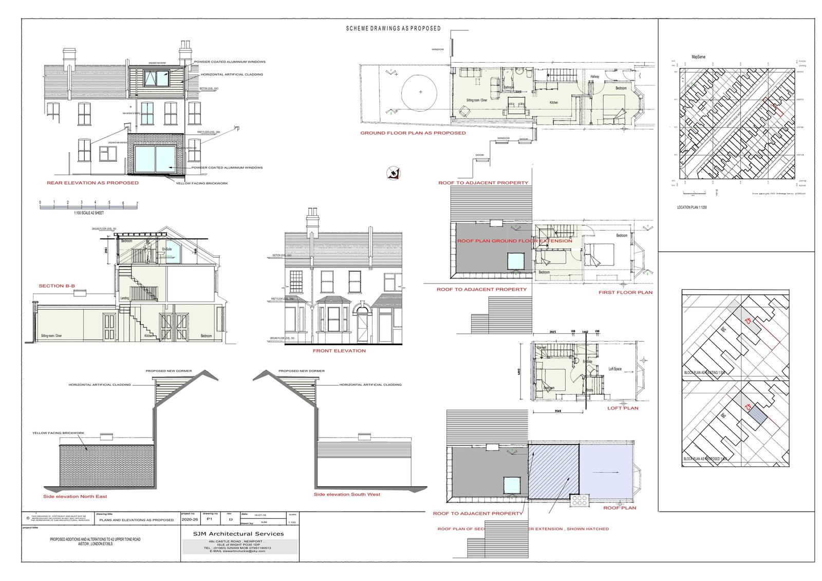
Pending House extension
Received
Not recorded
New homes
0

Full proposal

Erection of a ground floor rear and side extension, and a loft conversion with a rear dormer roof extension.

Have your say

Your comment matters. Councils must consider every representation that raises material planning considerations.

Write a comment