← Newham

Status

Pending House extension
Received
Not recorded
New homes
0

Full proposal

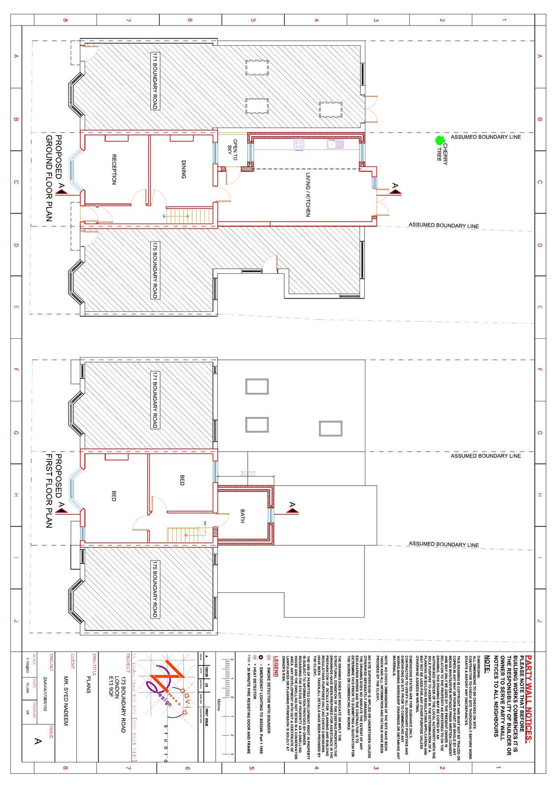
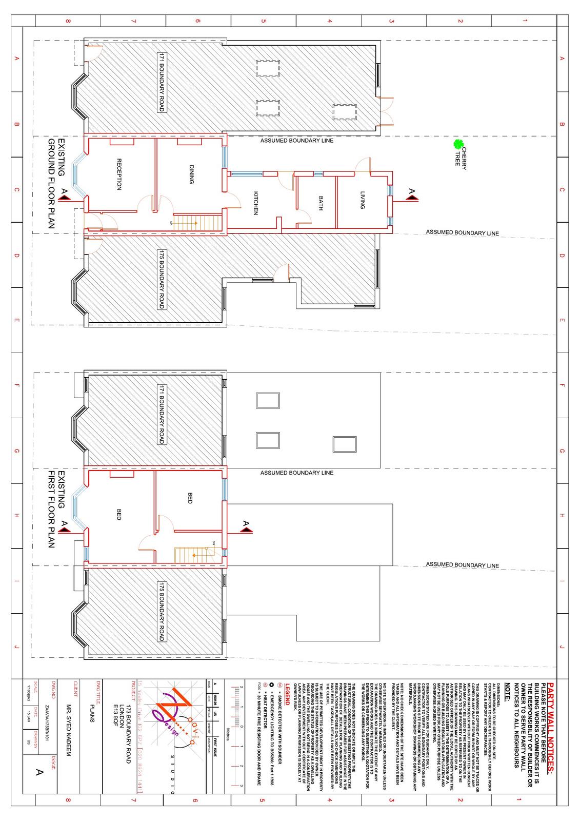
Erection of part one part two storey side and rear extension.

Have your say

Your comment matters. Councils must consider every representation that raises material planning considerations.

Write a comment