← Newham

Status

Pending House extension
Received
Not recorded
New homes
0

Full proposal

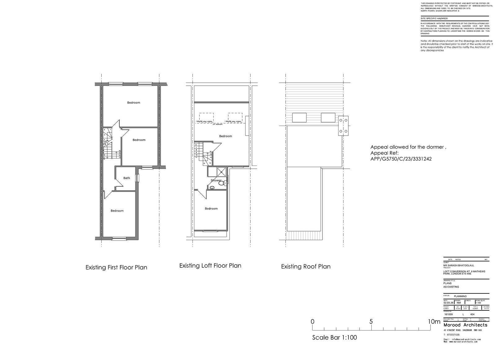
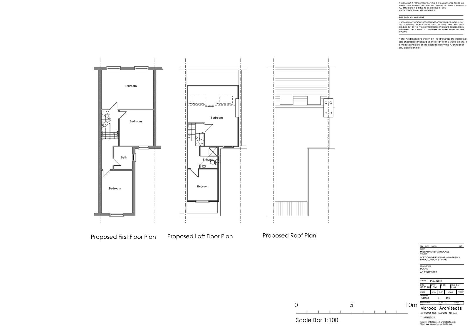
Erection of a loft conversion with new dormer extension and rooflight windows.

Have your say

Your comment matters. Councils must consider every representation that raises material planning considerations.

Write a comment