← Newham

Status

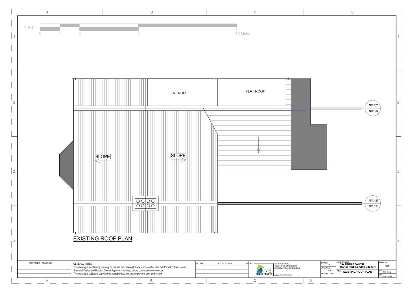
Pending House extension
Received
Not recorded
New homes
0

Full proposal

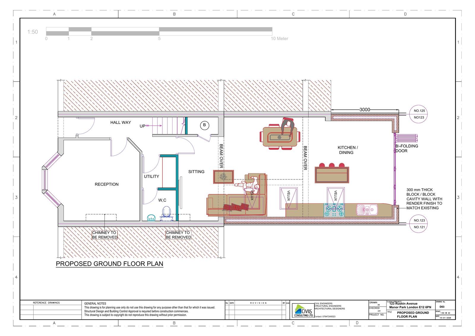
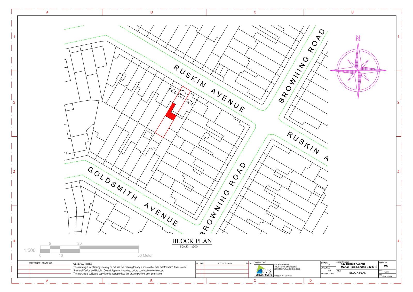
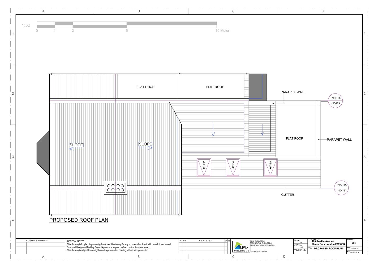
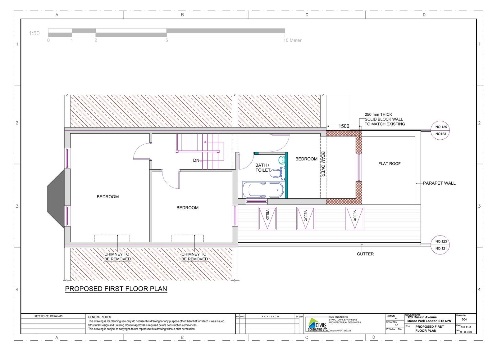
Erection of part 1 and part 2 storey rear extension.

Have your say

Your comment matters. Councils must consider every representation that raises material planning considerations.

Write a comment