← Newham

Status

Pending House extension
Received
Not recorded
New homes
0

Full proposal

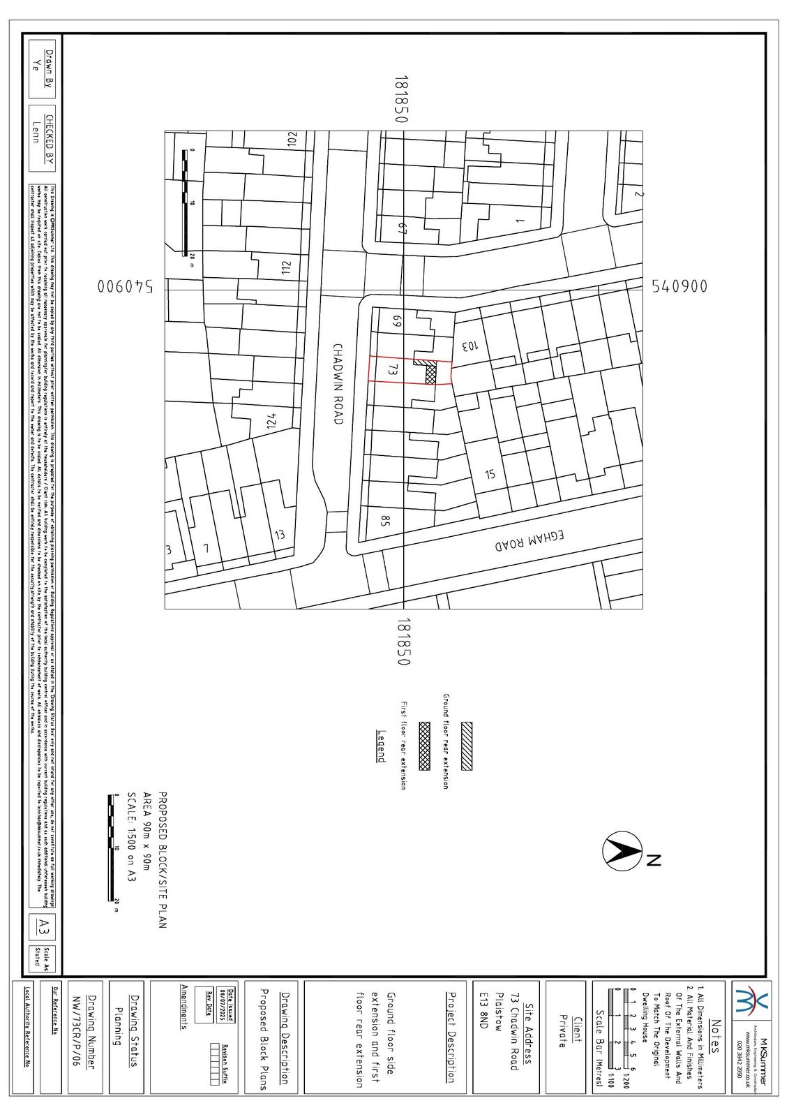
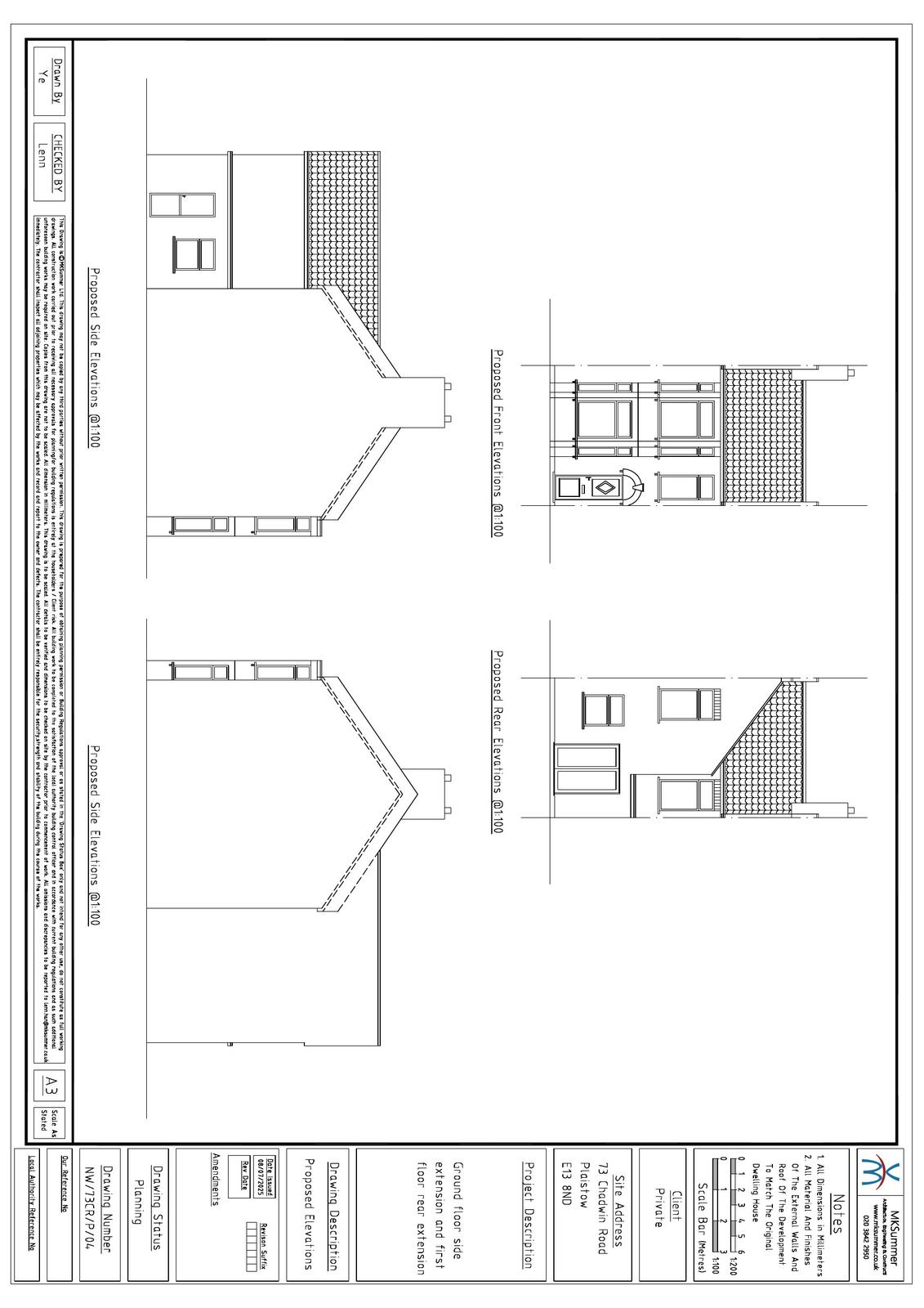
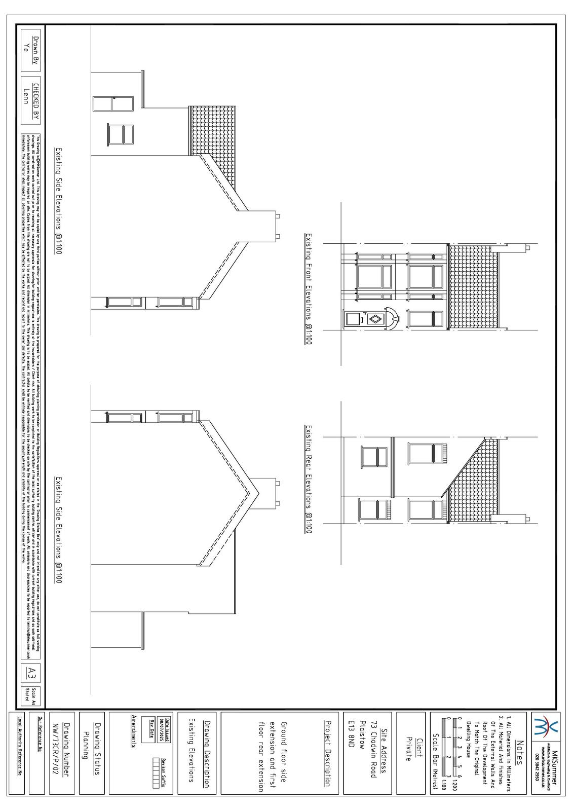
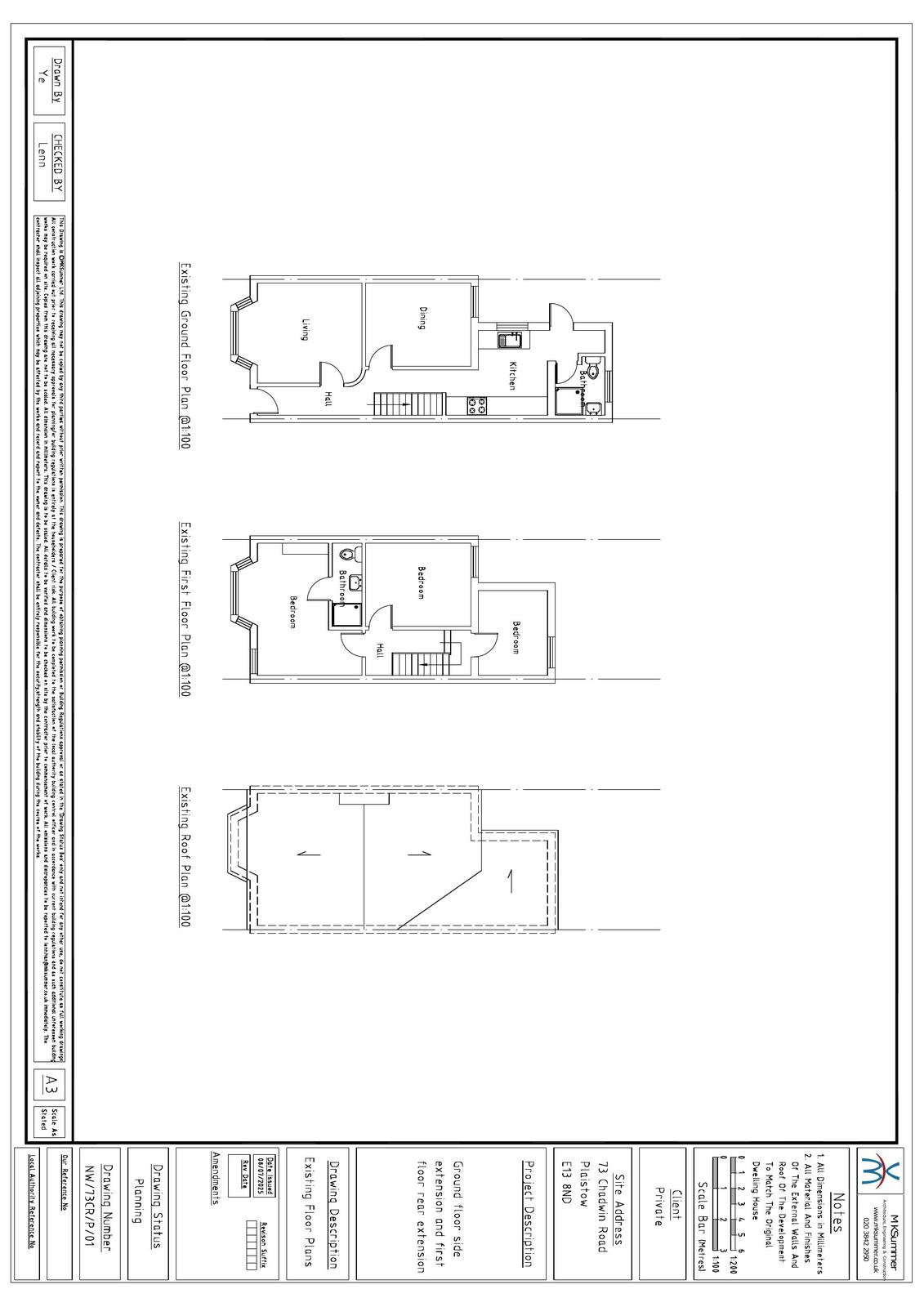
Erection of ground floor rear side Infill extension and first-floor rear extension.

Documents

Drawing
Archived · Original link
Drawing
Archived · Original link
Drawing
Archived · Original link
Drawing
Archived · Original link
Revised Drawing
Archived · Original link
Drawing
Archived · Original link
Drawing
Archived · Original link
Drawing
Archived · Original link

Have your say

Your comment matters. Councils must consider every representation that raises material planning considerations.

Write a comment