← Newport City Council

Status

Decided Change of use
Received
28 Mar 2024
New homes
1

Full proposal

CONVERSION OF FORMER BARN INTO DWELLING WITH REAR EXTENSION AND ASSOCIATED WORKS

Documents

Supporting Information
Archived · Original link
Drawing - OS Site Location Plan
Archived · Original link
Decision Notice
Archived · Original link
Supporting Information
Archived · Original link
Supporting Information
Archived · Original link
Consult Response Statutory
Archived · Original link
Consult Response Statutory
Archived · Original link
Consult Response Statutory
Archived · Original link
Consult Response Statutory
Archived · Original link
Consult Response Statutory
Archived · Original link
Consult Response Statutory
Archived · Original link
Officer Report
Archived · Original link
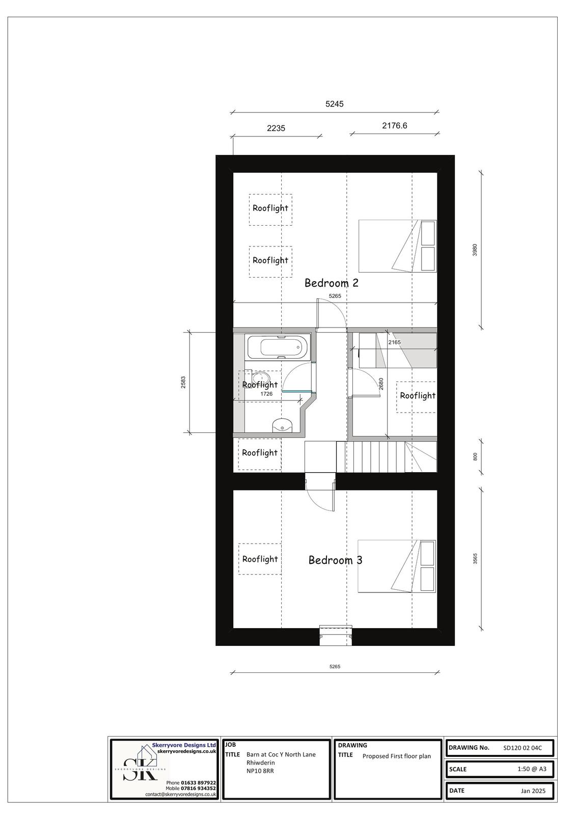
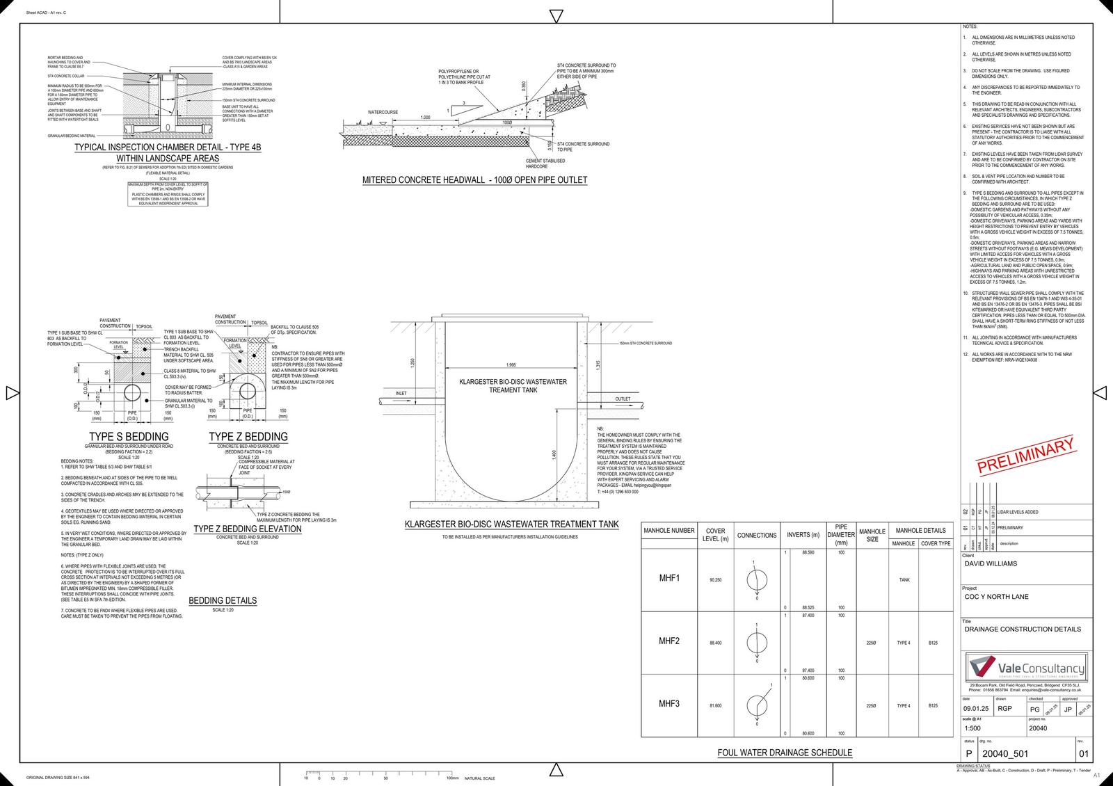
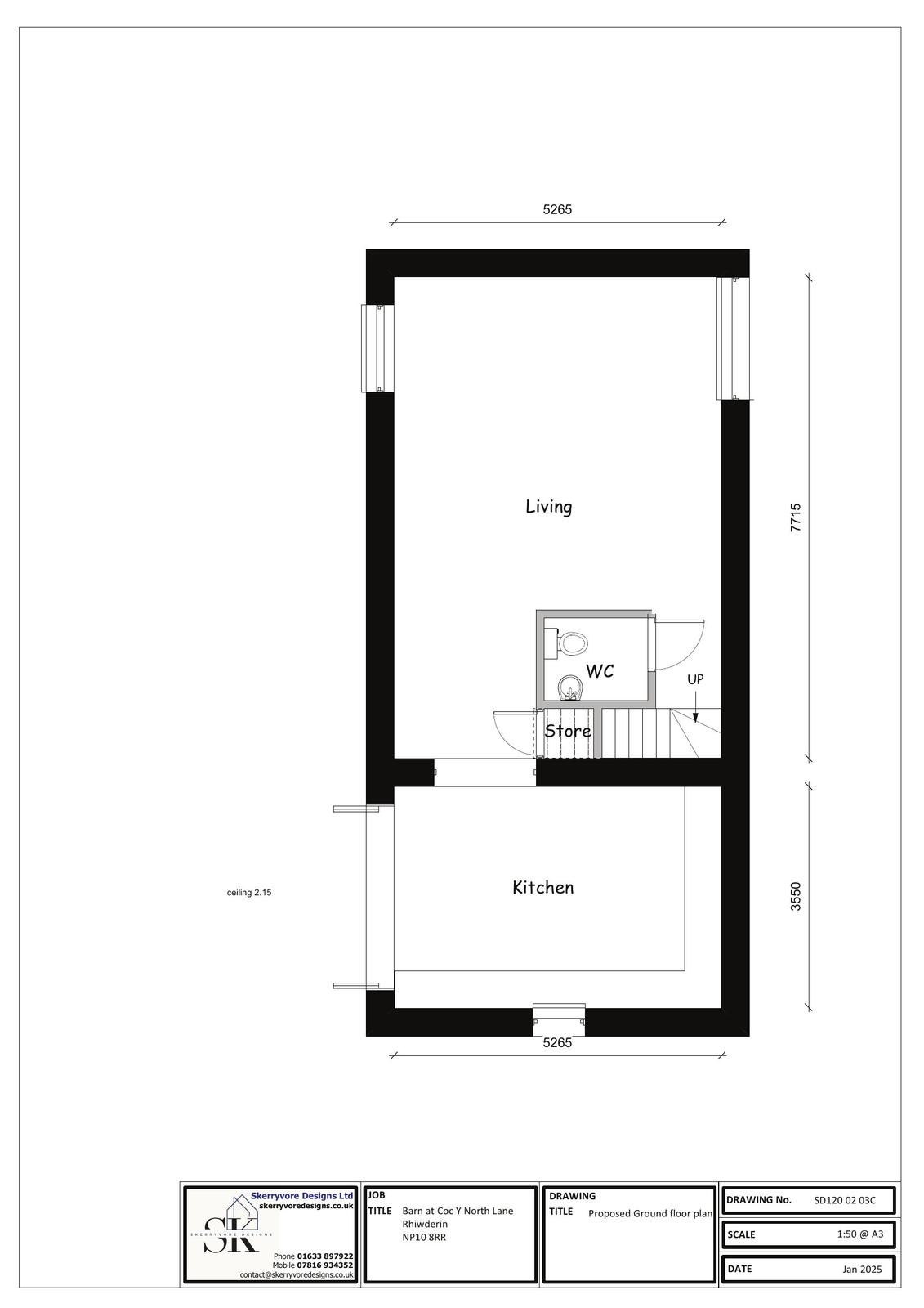
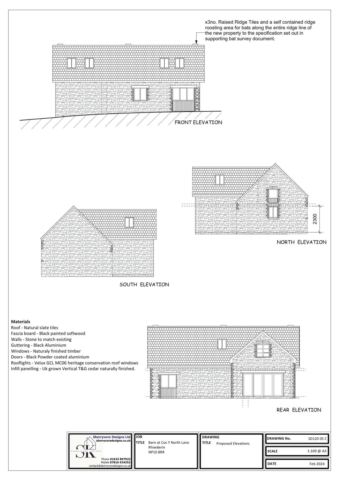
Drawing
Archived · Original link
Drawing
Archived · Original link
Drawing
Archived · Original link
Drawing
Archived · Original link
Application Form
Archived · Original link
Consult Response Statutory
Archived · Original link
Legal Agreement
Archived · Original link
SAB
Consult Response Statutory
Archived · Original link
Superseded Document
Archived · Original link
Superseded Document
Archived · Original link
Superseded Document
Archived · Original link
Superseded Document
Archived · Original link
Superseded Document
Archived · Original link
Supporting Information
Archived · Original link
Consult Response Statutory
Archived · Original link
Site/Press Notice
Archived · Original link
Drawing
Archived · Original link
Supporting Information
Archived · Original link
Supporting Information
Archived · Original link
Consult Response Statutory
Archived · Original link
Consult Response Statutory
Archived · Original link

Have your say

Your comment matters. Councils must consider every representation that raises material planning considerations.

Write a comment