← Newport City Council

Status

Decided Change of use
Received
20 Aug 2024
New homes
0

Full proposal

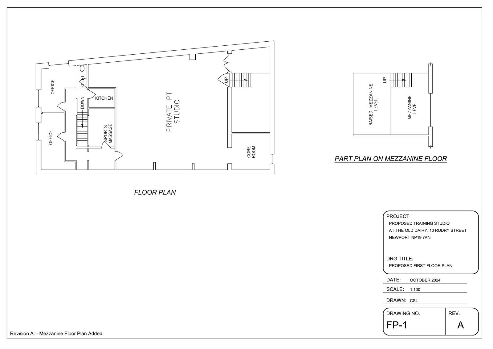
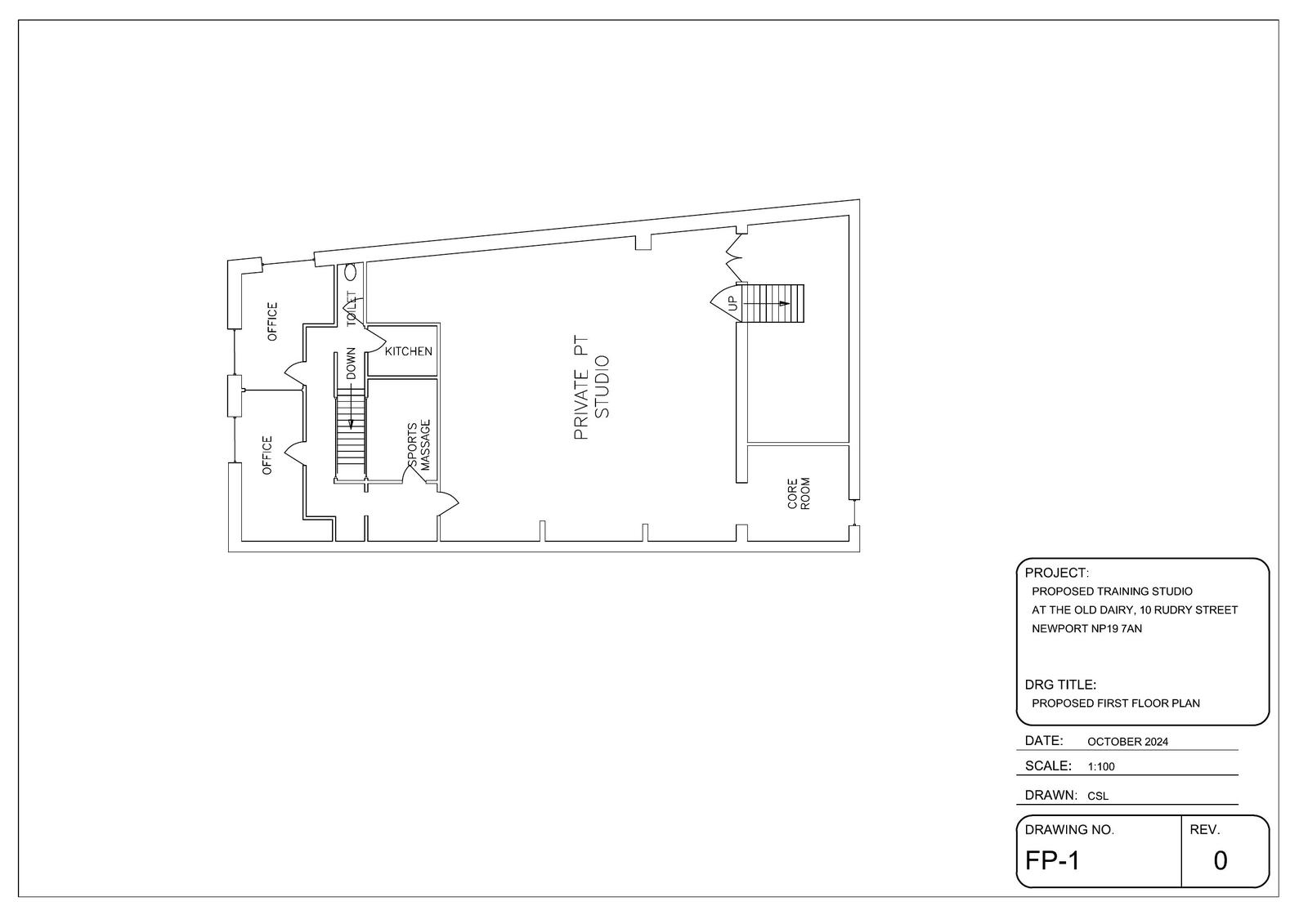
CHANGE OF USE OF THE TOP FLOOR OF THE BUILDING TO MIXED USE OFFICE, PRIVATE PERSONAL TRAINING STUDIO , 1 THERAPY ROOM AND 1 PODCAST STUDIO

Documents

Application Form
Archived · Original link
Supporting Information
Archived · Original link
Consult Response Statutory
Archived · Original link
Decision Notice
Archived · Original link
Consult Response Statutory
Archived · Original link
Supporting Information
Archived · Original link
Superseded Document
Archived · Original link
Superseded Document
Archived · Original link
Superseded Document
Archived · Original link
Consult Response Statutory
Archived · Original link
NRW
Consult Response Statutory
Archived · Original link
Officer Report
Archived · Original link
Superseded Document
Archived · Original link
Superseded Document
Archived · Original link
Drawing - OS Site Location Plan
Archived · Original link
Site/Press Notice
Archived · Original link
Site/Press Notice
Archived · Original link
Supporting Information
Archived · Original link
Consult Response Statutory
Archived · Original link

Have your say

Your comment matters. Councils must consider every representation that raises material planning considerations.

Write a comment