← Newport City Council

Status

Decided House extension
Received
03 Sep 2024
New homes
0

Full proposal

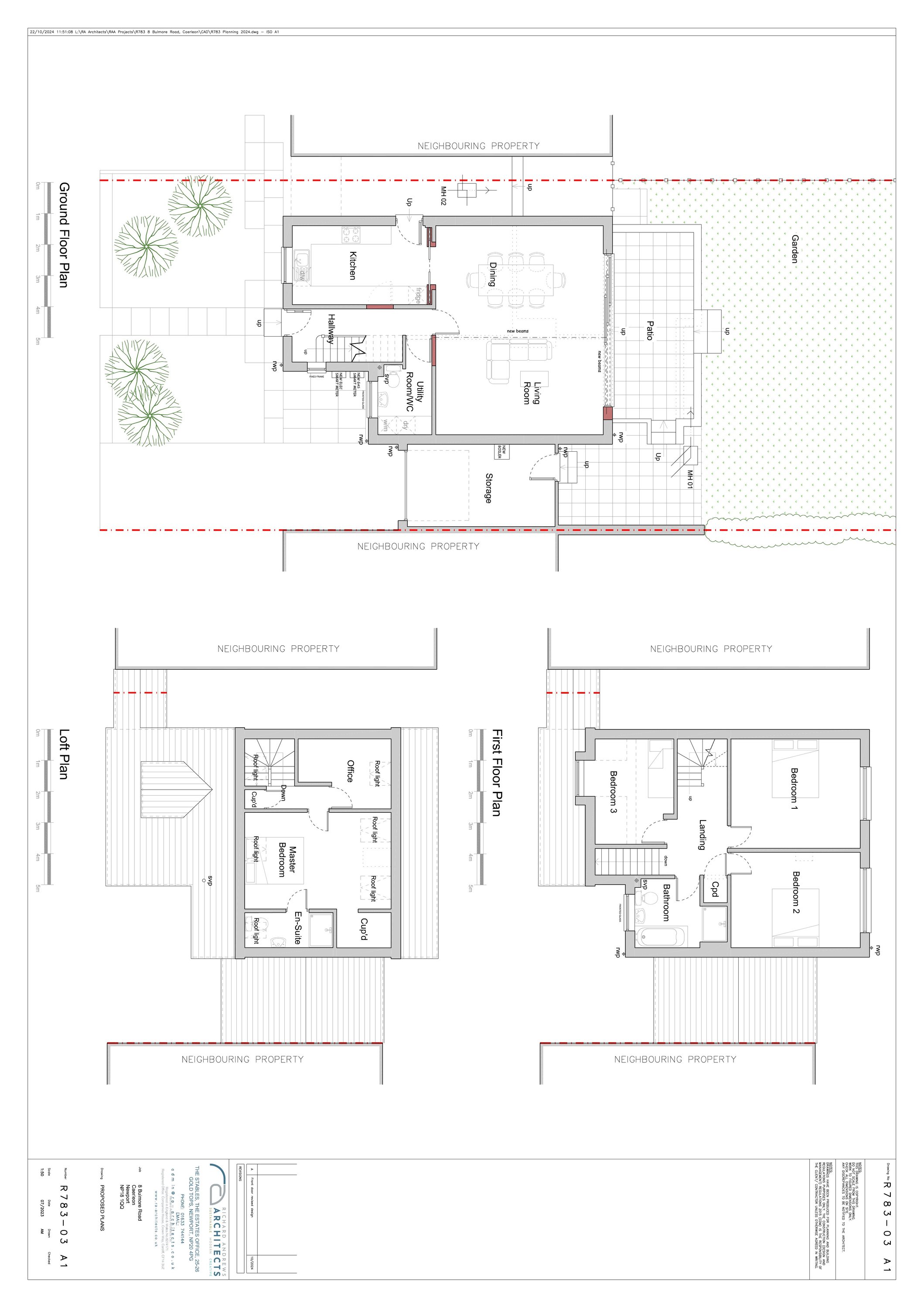
ALTERATIONS TO EXISTING DWELLING HOUSE AND REPLACEMENT OF ALL WINDOWS AND DOORS

Documents

Application Form
Application Form
Not yet archived · Original link
Decision Notice
Decision Notice
Not yet archived · Original link
Ecology officer
Consult Response Statutory
Not yet archived · Original link
GGAT
Consult Response Statutory
Not yet archived · Original link
Heritage officer
Consult Response Statutory
Not yet archived · Original link
officer report final version
Officer Report
Not yet archived · Original link
R783 - Access Statement.
Supporting Information
Not yet archived · Original link
R783 - Heritage Impact Assessment.
Supporting Information
Not yet archived · Original link
Drawing - OS Site Location Plan
Archived · Original link
R783-01 - Existing Plans
Drawing
Not yet archived · Original link
R783-02 - Existing Elevations and 3D Visuals
Drawing
Not yet archived · Original link
Superseded Document
Archived · Original link
R783-04 -Proposed Elevations and 3D Visuals
Superseded Document
Not yet archived · Original link
R783-04A proposed elevations & 3D visuals
Drawing
Not yet archived · Original link

Have your say

Your comment matters. Councils must consider every representation that raises material planning considerations.

Write a comment