← Newport City Council

Status

Decided Change of use
Received
17 Oct 2024
New homes
0

Full proposal

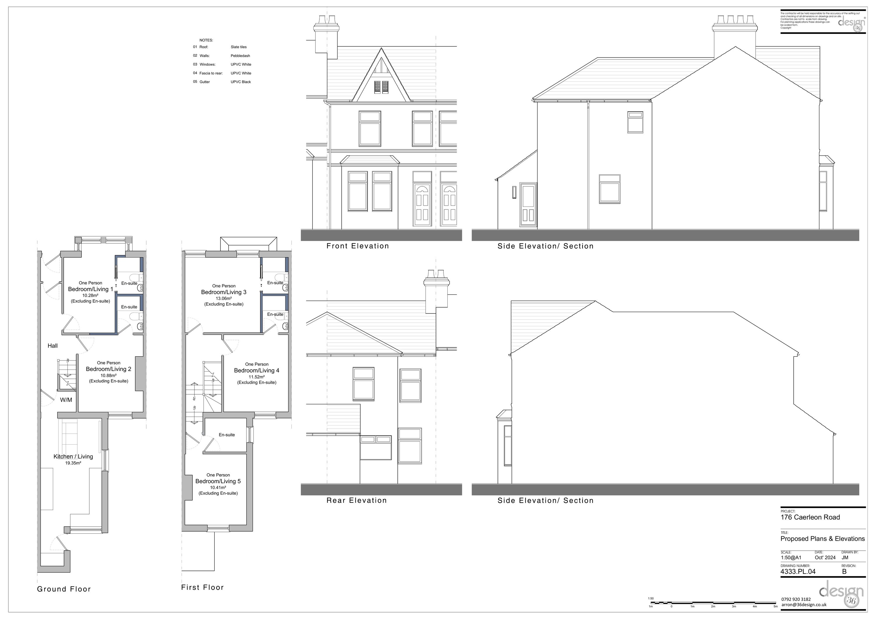
CHANGE OF USE FROM A 3 BEDROOM DWELLING (C3 USE) TO A 5 BEDROOM HOUSE IN MULTIPLE OCCUPATION (C4 USE), ERECTION OF CYCLE STORE TO REAR

Documents

Superseded Document
Archived · Original link
Drawing - OS Site Location Plan
Archived · Original link
4333.PL.02 - Existing/Proposed Block Plans Rev A
Superseded Document
Not yet archived · Original link
4333.PL.02 Existing/proposed block plans
Drawing
Not yet archived · Original link
4333.PL.03 - Existing Plans and Elevations Rev A
Superseded Document
Not yet archived · Original link
4333.PL.03 Existing plans & elevations
Drawing
Not yet archived · Original link
4333.PL04B Proposed plan
Drawing
Not yet archived · Original link
Application Form
Application Form
Not yet archived · Original link
DC - WW
Consult Response Statutory
Not yet archived · Original link
Decision Notice
Decision Notice
Not yet archived · Original link
Environmental Health
Consult Response Statutory
Not yet archived · Original link
Green Infrastructure Statement.
Supporting Information
Not yet archived · Original link
Gwent Police
Consult Response Statutory
Not yet archived · Original link
Heneb
Consult Response Statutory
Not yet archived · Original link
Highways
Consult Response Statutory
Not yet archived · Original link
Objection Cnsllr Bright
Consult Response Statutory
Not yet archived · Original link
officer report final version
Officer Report
Not yet archived · Original link
Parking Survey
Supporting Information
Not yet archived · Original link
Planning Statement
Supporting Information
Not yet archived · Original link
Proposed elevations & floor plans 4333PL.04B
Superseded Document
Not yet archived · Original link
Superseded Document
Archived · Original link
redacted objection from neighbour - no address
Consult Response Neighbour
Not yet archived · Original link
Response from 174 Caerleon Road
Consult Response Neighbour
Not yet archived · Original link
Site Notice - SNSTD
Site/Press Notice
Not yet archived · Original link
Sustainability Appraisal
Supporting Information
Not yet archived · Original link
Waste Manager
Consult Response Statutory
Not yet archived · Original link

Have your say

Your comment matters. Councils must consider every representation that raises material planning considerations.

Write a comment