← Newport City Council

Status

Decided Commercial
Received
26 Oct 2024
New homes
0

Full proposal

PROPOSED NEW SHOP FRONT,CONVERSION OF FIRST FLOOR OFFICES AND ROOF SPACES TO CREATE 5 NO. FLATS, CONVERSION OF PART GROUND FLOOR TO PROVIDE A CLASS A3 UNIT, CAR PARK ALTERATIONS AND ASSOCIATED WORKS

Documents

170 172 Commercial Road -1907 PL-207A - Proposed Elevations
Drawing
Not yet archived · Original link
170 172 Commercial Road -1907 PL-208A - Bike and Residential Bin Store
Drawing
Not yet archived · Original link
170 172 Commercial Road -1907 PL-208A - Bike and Residential Bin Store
Drawing
Not yet archived · Original link
Drawing - OS Site Location Plan
Archived · Original link
1907 PL-102 - Existing Block Plan.
Drawing
Not yet archived · Original link
1907 PL-104 - Existing Survey
Drawing
Not yet archived · Original link
1907 PL-105 - Existing Plans
Drawing
Not yet archived · Original link
1907 PL-106 - Existing Roof Plan.
Drawing
Not yet archived · Original link
1907 PL-107 - Existing Elevations
Drawing
Not yet archived · Original link
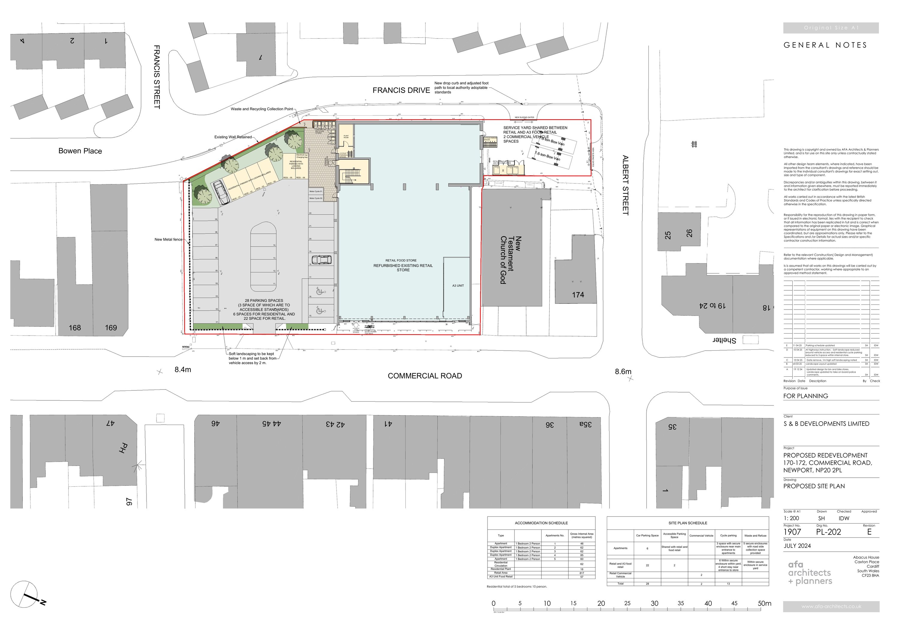
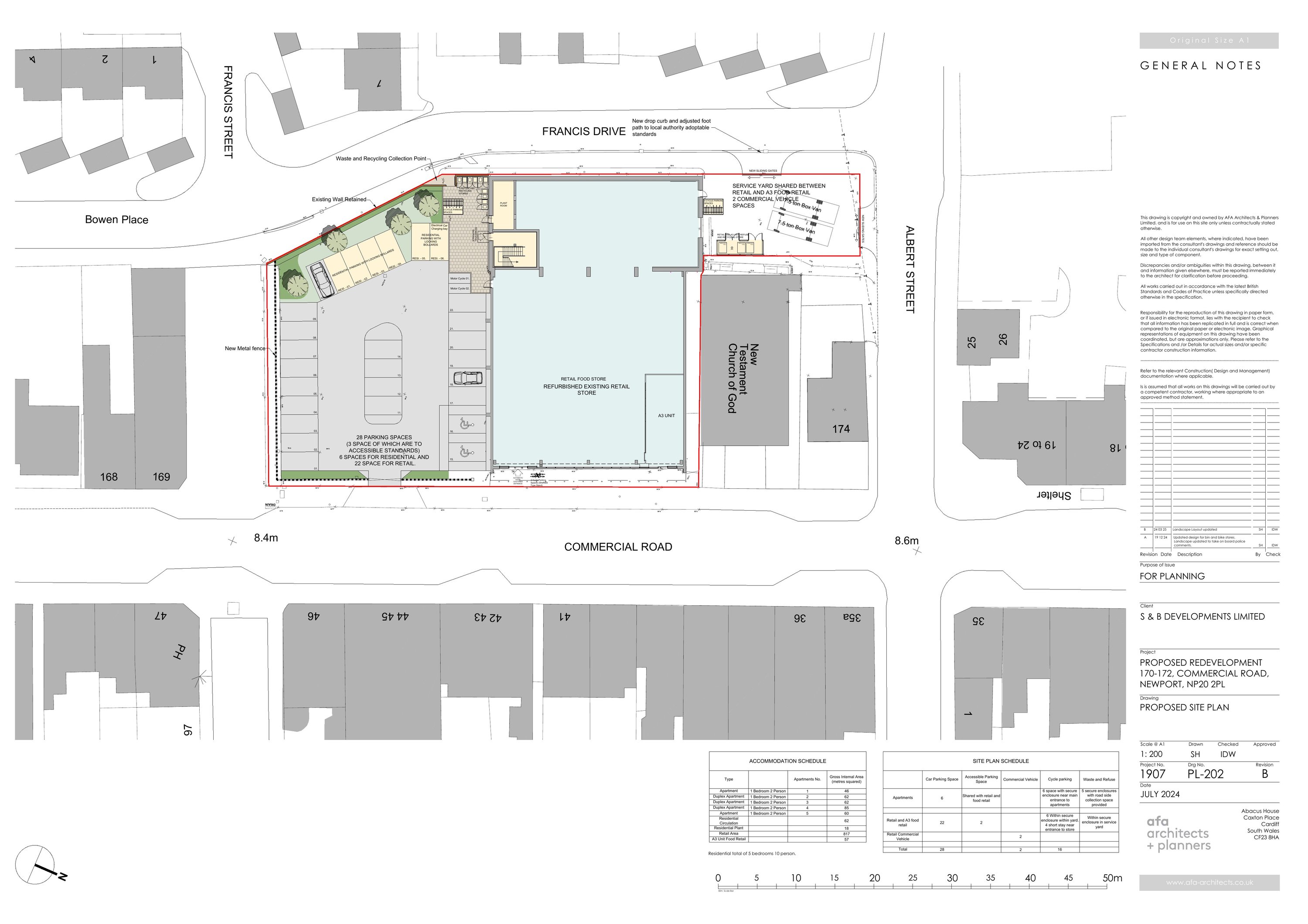
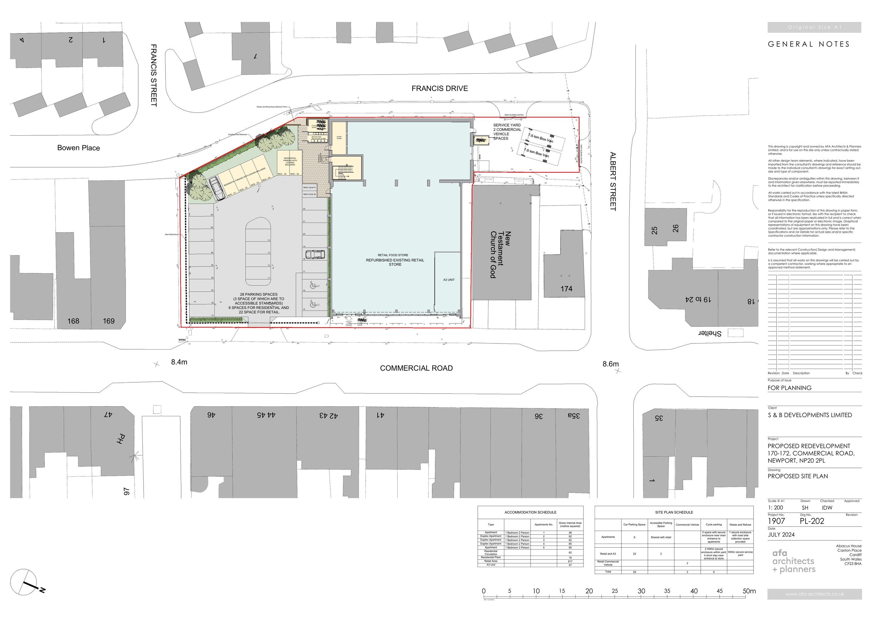
1907 PL-201 - Proposed Block Plan
Drawing Superseded
Not yet archived · Original link
1907 PL-201 A - Proposed Block Plan
Drawing
Not yet archived · Original link
Drawing Superseded
Archived · Original link
1907 PL-203 - Proposed Ground Floor Plan
Drawing
Not yet archived · Original link
1907 PL-204 - Proposed First Floor.
Drawing
Not yet archived · Original link
1907 PL-205 - Proposed Second Floor
Drawing
Not yet archived · Original link
1907 PL-206 - Proposed Roof Plan.
Drawing
Not yet archived · Original link
1907 PL-207 - Proposed Elevations.
Drawing Superseded
Not yet archived · Original link
1907 PL-208 - Proposed Waste Cycle Stores.
Drawing
Not yet archived · Original link
1908 - Sustainability Note October 2024
Supporting Information
Not yet archived · Original link
19861 - Flood Consequence Assessment - 01a.
Supporting Information
Not yet archived · Original link
19861 - Flood Warning and Evacuation Plan - 01
Supporting Information
Not yet archived · Original link
Acoustic Report.
Supporting Information
Not yet archived · Original link
Appendices A- 2017 Permission and Officer Report
Supporting Information
Not yet archived · Original link
Application Form
Application Form
Not yet archived · Original link
Bat Survey
Supporting Information
Not yet archived · Original link
Bikehangar-Brochure-280623
Supporting Information
Not yet archived · Original link
Construction Environmental Management Plan 29-01-25
Supporting Information
Not yet archived · Original link
Decision Notice
Decision Notice
Not yet archived · Original link
DWR CYMRU WELSH WATER
Consult Response Statutory
Not yet archived · Original link
DWR CYMRU WELSH WATER - Water Easement
Consult Response Statutory
Not yet archived · Original link
DWY CYMRU WELSH WATER - Water Plan
Consult Response Statutory
Not yet archived · Original link
Ecology Officer
Consult Response Statutory
Not yet archived · Original link
Green Infrastructure and Biodiversity Statement V.01
Supporting Information
Not yet archived · Original link
GWENT POLICE
Consult Response Statutory
Not yet archived · Original link
HIGHWAYS
Consult Response Statutory
Not yet archived · Original link
HIGHWAYS - Reconsultation
Consult Response Statutory
Not yet archived · Original link
HOUSING MANAGER
Consult Response Statutory
Not yet archived · Original link
LANDSCAPE OFFICER
Consult Response Statutory
Not yet archived · Original link
LANDSCAPE OFFICER (2)
Consult Response Statutory
Not yet archived · Original link
LANDSCAPE OFFICER (Final)
Consult Response Statutory
Not yet archived · Original link
LANDSCAPING PLAN
Drawing Superseded
Not yet archived · Original link
Materials
Supporting Information
Not yet archived · Original link
NRW
Consult Response Statutory
Not yet archived · Original link
NRW - Reconsultation
Consult Response Statutory
Not yet archived · Original link
Officer Report - Delegated
Officer Report
Not yet archived · Original link
Planning Statement
Supporting Information
Not yet archived · Original link
PROPOSED LANDSCAPE LAYOUT
Drawing
Not yet archived · Original link
Drawing Superseded
Archived · Original link
SAB
Consult Response Statutory
Not yet archived · Original link
Site notice
Site/Press Notice
Not yet archived · Original link
Site Notice - SNSTD
Site/Press Notice
Not yet archived · Original link
Soft Landscaping Plan PL-211
Drawing Superseded
Not yet archived · Original link
WASTE AND CLEANSING PROJECT OFFICER
Consult Response Statutory
Not yet archived · Original link

Have your say

Your comment matters. Councils must consider every representation that raises material planning considerations.

Write a comment