← Newport City Council

Status

Decided Change of use
Received
31 Oct 2024
New homes
8

Full proposal

CHANGE OF USE OF REAR GROUND, WHOLE FIRST AND WHOLE SECOND FLOOR OF THREE STOREY A2 OFFICE BUILDING TO 8NO. BEDROOM HOUSE IN MULTIPLE OCCUPATION (SUI GENERIS)

Documents

Drawing - OS Site Location Plan
Archived · Original link
56BridgeStreet-GardenFloorplanV2
Drawing
Not yet archived · Original link
Application Form
Application Form
Not yet archived · Original link
Councillor MIQDAD ALNUAIMI comments
Consult Response Statutory
Not yet archived · Original link
Cycle Storage.
Supporting Information
Not yet archived · Original link
Decision Notice
Decision Notice
Not yet archived · Original link
Environmental Health
Consult Response Statutory
Not yet archived · Original link
Environmental Health Officer
Consult Response Statutory
Not yet archived · Original link
Existing/proposed front Elevation Plans
Drawing
Not yet archived · Original link
Existing/Proposed rear elevation and proposed ground floor plan
Drawing
Not yet archived · Original link
Final Officer Report (V3)
Officer Report
Not yet archived · Original link
Flood Risk Assessment Decision
Supporting Information
Not yet archived · Original link
Highways comments
Consult Response Statutory
Not yet archived · Original link
Late waste comments
Consult Response Statutory
Not yet archived · Original link
Noise Assessment Decision.
Supporting Information
Not yet archived · Original link
Parking Considerations
Supporting Information
Not yet archived · Original link
Principal Heritage Officer
Consult Response Statutory
Not yet archived · Original link
Revised existing floor plans
Drawing
Not yet archived · Original link
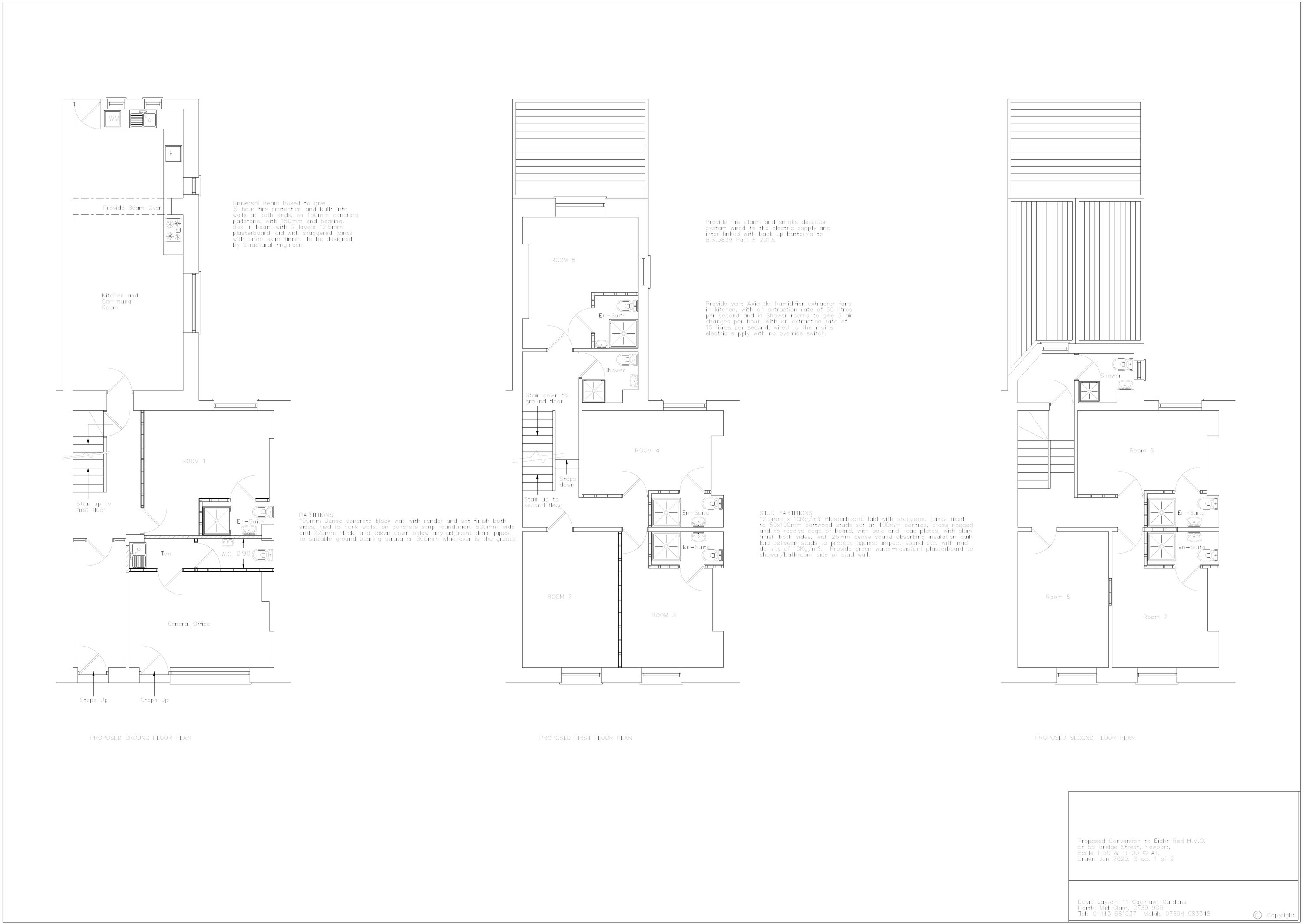
Revised proposed first floor and second floor plans
Drawing
Not yet archived · Original link
Drawing - OS Site Location Plan
Archived · Original link
Site Notice - SNSTD
Site/Press Notice
Not yet archived · Original link
SUPERDED 56BridgeStreet-ExistingFloorPlan.
Superseded Document
Not yet archived · Original link
SUPERSEDED 56BridgeStreet-ProposedFloorPlan
Superseded Document
Not yet archived · Original link
SUPERSEDED Existing and proposed Garden floor plan
Superseded Document
Not yet archived · Original link
SUPERSEDED Existing Floor Plan.
Superseded Document
Not yet archived · Original link
SUPERSEDED Proposed Floor Plan.
Superseded Document
Not yet archived · Original link
SUPERSEDED Revised floor plans 2
Superseded Document
Not yet archived · Original link
SUPERSEDED Revised floor plans 3
Superseded Document
Not yet archived · Original link
Superseded Document
Archived · Original link
Waste Storage and Recycling.
Supporting Information
Not yet archived · Original link
Welsh Water comments
Consult Response Statutory
Not yet archived · Original link

Have your say

Your comment matters. Councils must consider every representation that raises material planning considerations.

Write a comment