← Newport City Council

Status

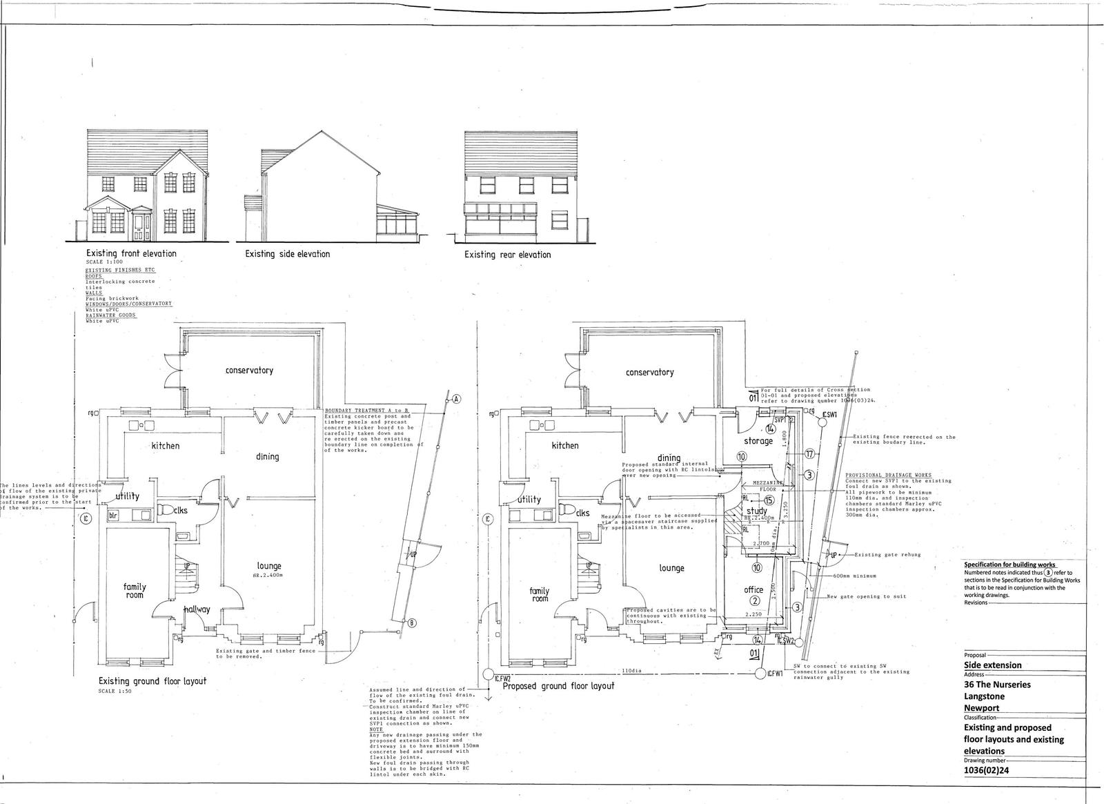
Decided House extension
Received
19 Nov 2024
New homes
0

Full proposal

SINGLE STOREY SIDE EXTENSION CONTAINING A HOME OFFICE, STUDY AND STORAGE ROOM

Documents

Decision Notice
Archived · Original link
Consult Response Statutory
Archived · Original link
Consult Response Statutory
Archived · Original link
Officer Report
Archived · Original link
Drawing - OS Site Location Plan
Archived · Original link
Consult Response Statutory
Archived · Original link
Consult Response Statutory
Archived · Original link
Supporting Information
Archived · Original link
Supporting Information
Archived · Original link

Have your say

Your comment matters. Councils must consider every representation that raises material planning considerations.

Write a comment