← Newport City Council

Status

Decided Change of use
Received
28 Nov 2024
New homes
0

Full proposal

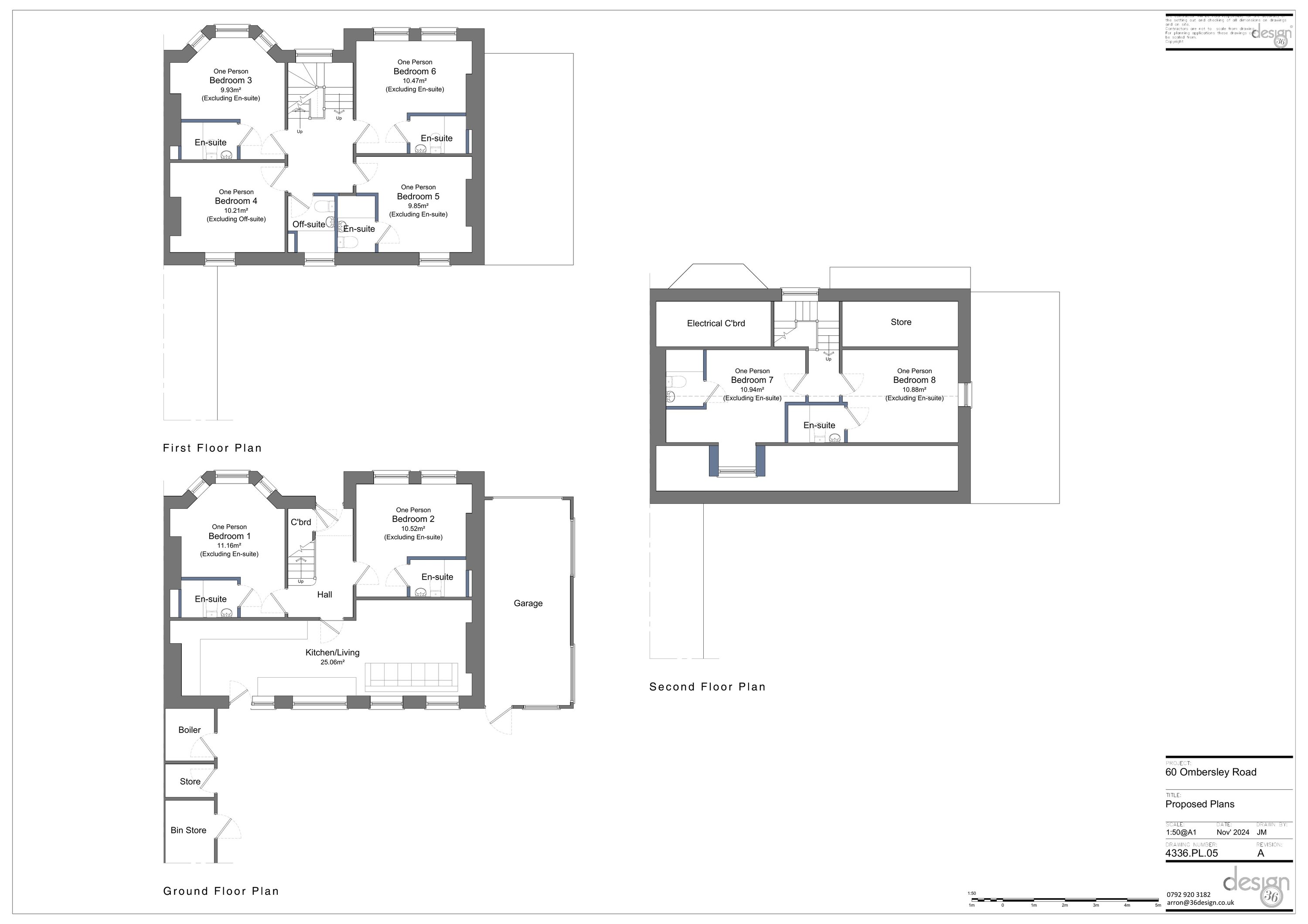
CHANGE OF USE OF DWELLING (C3 USE) TO AN 8 BEDROOM HOUSE OF MULTIPLE OCCUPATION (SUI GENERIS USE) AND ERECTION OF REAR DORMER

Documents

Drawing - OS Site Location Plan
Archived · Original link
4336.PL.02 Rev B.- Existing / Proposed Block Plans
Superseded Document
Not yet archived · Original link
4336.PL.03 Rev A. - Existing Plans
Drawing
Not yet archived · Original link
4336.PL.04 Rev A. - Existing Elevations
Drawing
Not yet archived · Original link
4336.PL.06 Rev A.- Proposed Elevations
Drawing
Not yet archived · Original link
Application Form
Application Form
Not yet archived · Original link
Cllr D Evans Comments
Consult Response Statutory
Not yet archived · Original link
CLLR P DREWETT COMMENTS
Consult Response Statutory
Not yet archived · Original link
Conservation Officer Comments - No objection
Consult Response Statutory
Not yet archived · Original link
DCWW Comments
Consult Response Statutory
Not yet archived · Original link
Decision Notice
Decision Notice
Not yet archived · Original link
EH Housing Comments
Consult Response Statutory
Not yet archived · Original link
Existing and Proposed Block Plan
Drawing
Not yet archived · Original link
Green Infrastructure Statement.
Supporting Information
Not yet archived · Original link
HIGHWAY COMMENTS
Consult Response Statutory
Not yet archived · Original link
OFFER REPORT
Officer Report
Not yet archived · Original link
Parking Survey Final.
Supporting Information
Not yet archived · Original link
Planning Statement
Supporting Information
Not yet archived · Original link
S106 OFFICER COMMENTS
Consult Response Statutory
Not yet archived · Original link
Site Notice - SNSTD
Site/Press Notice
Not yet archived · Original link

Have your say

Your comment matters. Councils must consider every representation that raises material planning considerations.

Write a comment