← Newport City Council

Status

Decided Change of use
Received
07 Dec 2024
New homes
1

Full proposal

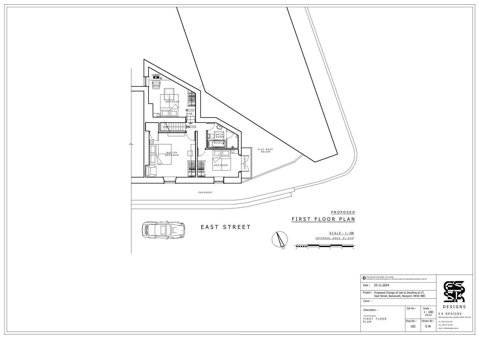
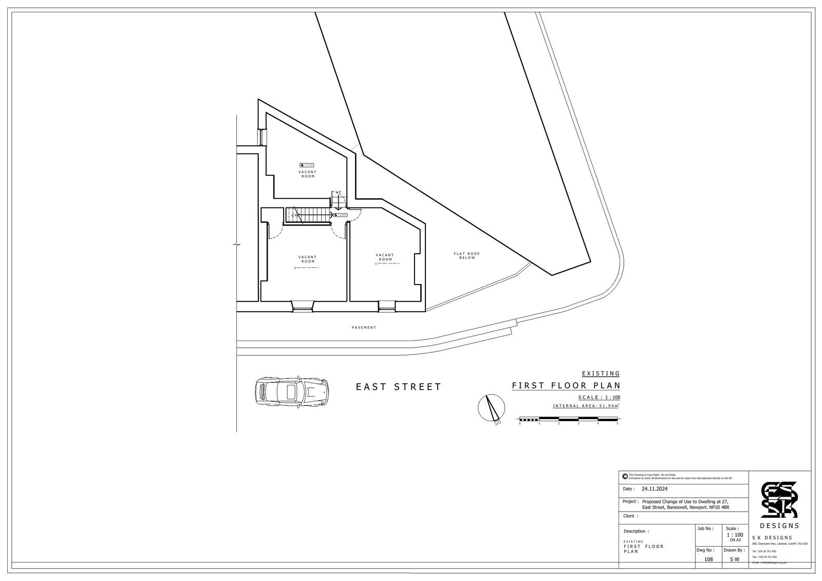
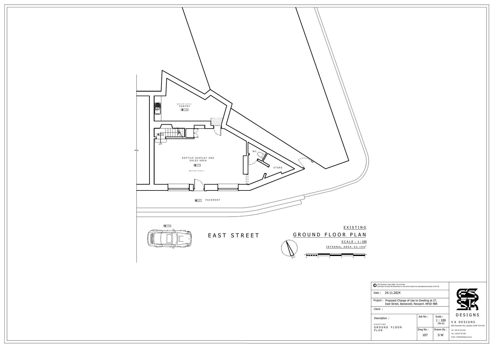
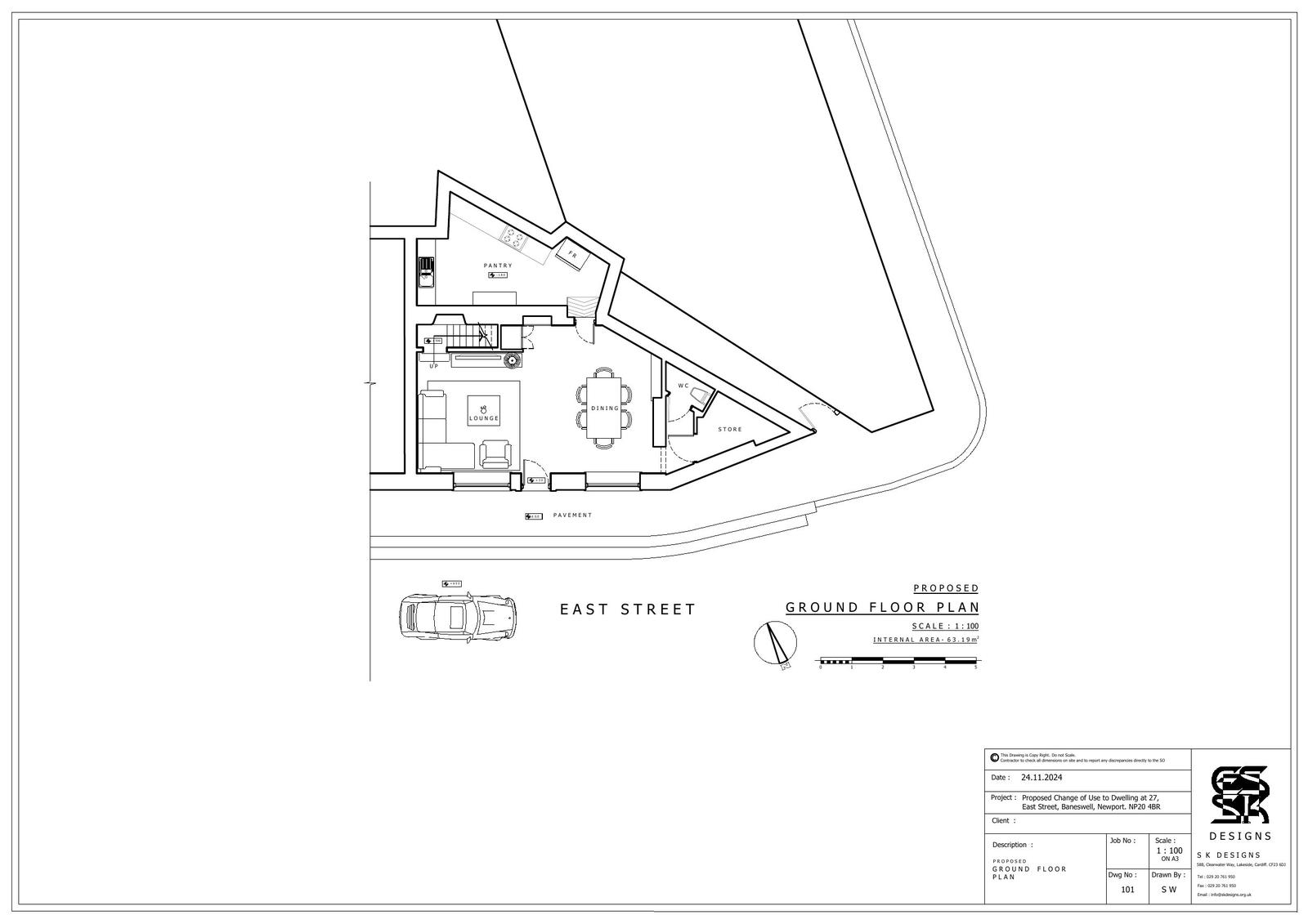
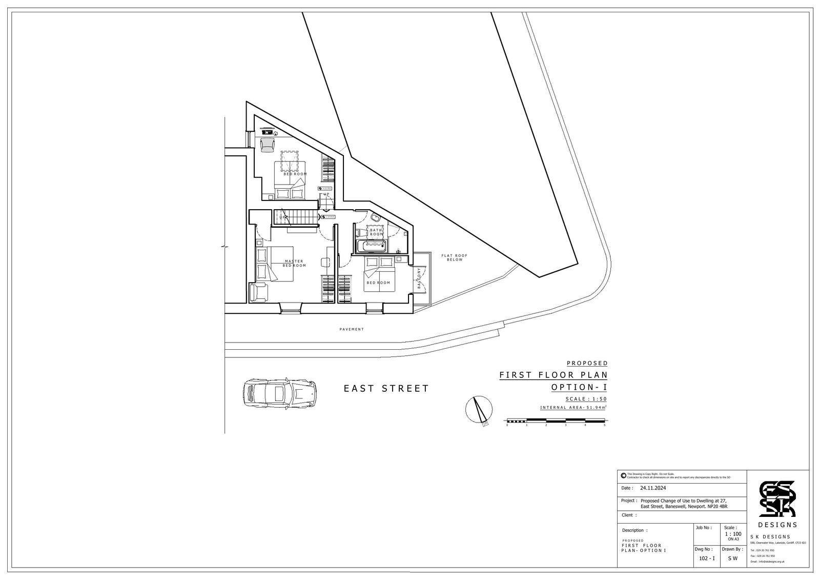
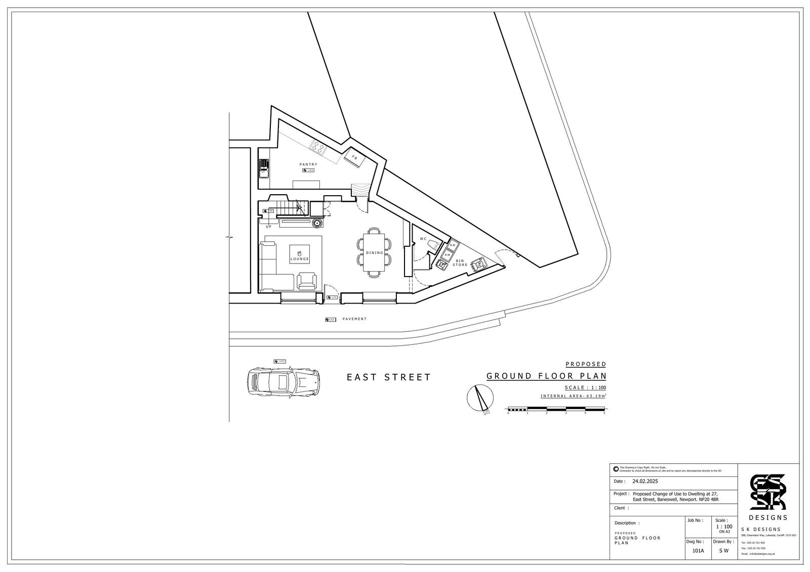
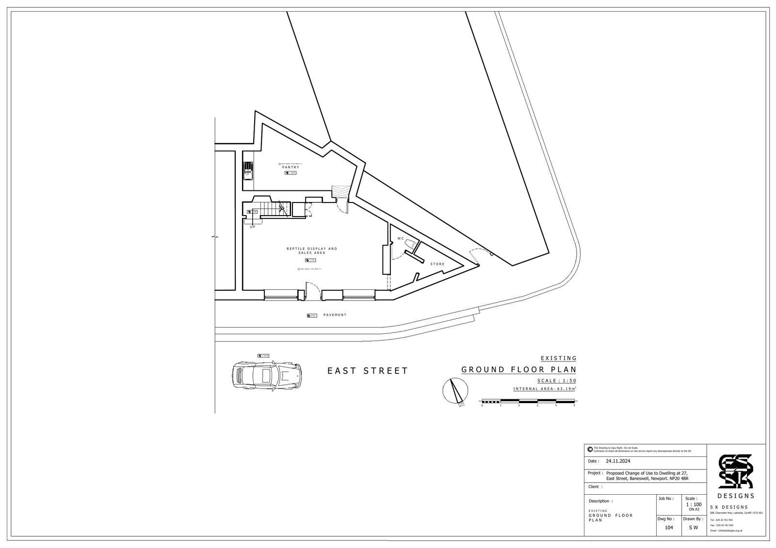
PROPOSED CHANGE OF USE FROM RETAIL PREMISES (USE CLASS A1) TO DWELLING HOUSE (USE CLASS C3) AND ASSOCIATED DEVELOPMENT THERETO

Documents

Application Form
Archived · Original link
Decision Notice
Archived · Original link
Consult Response Statutory
Archived · Original link
Consult Response Statutory
Archived · Original link
Consult Response Statutory
Archived · Original link
Consult Response Statutory
Archived · Original link
Officer Report
Archived · Original link
Supporting Information
Archived · Original link
Consult Response Statutory
Archived · Original link
Drawing - OS Site Location Plan
Archived · Original link
Supporting Information
Archived · Original link
Consult Response Statutory
Archived · Original link

Have your say

Your comment matters. Councils must consider every representation that raises material planning considerations.

Write a comment