← Newport City Council

Status

Decided House extension
Received
20 Dec 2024
New homes
0

Full proposal

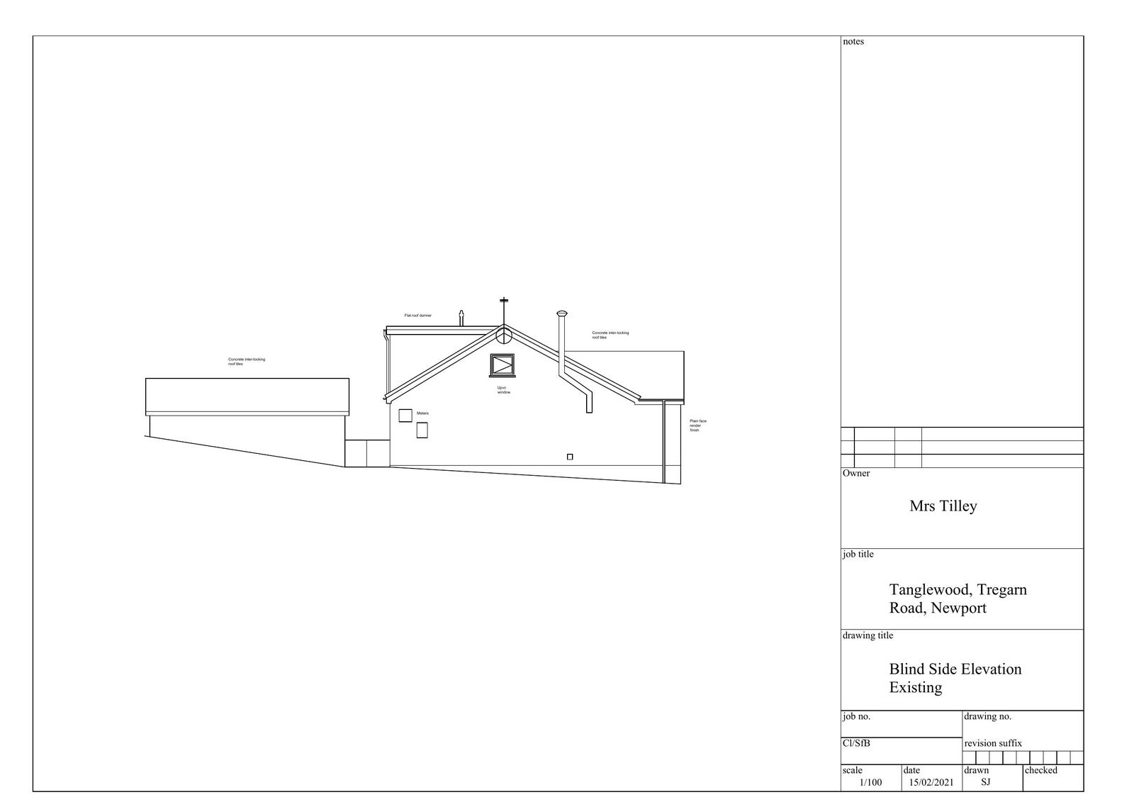
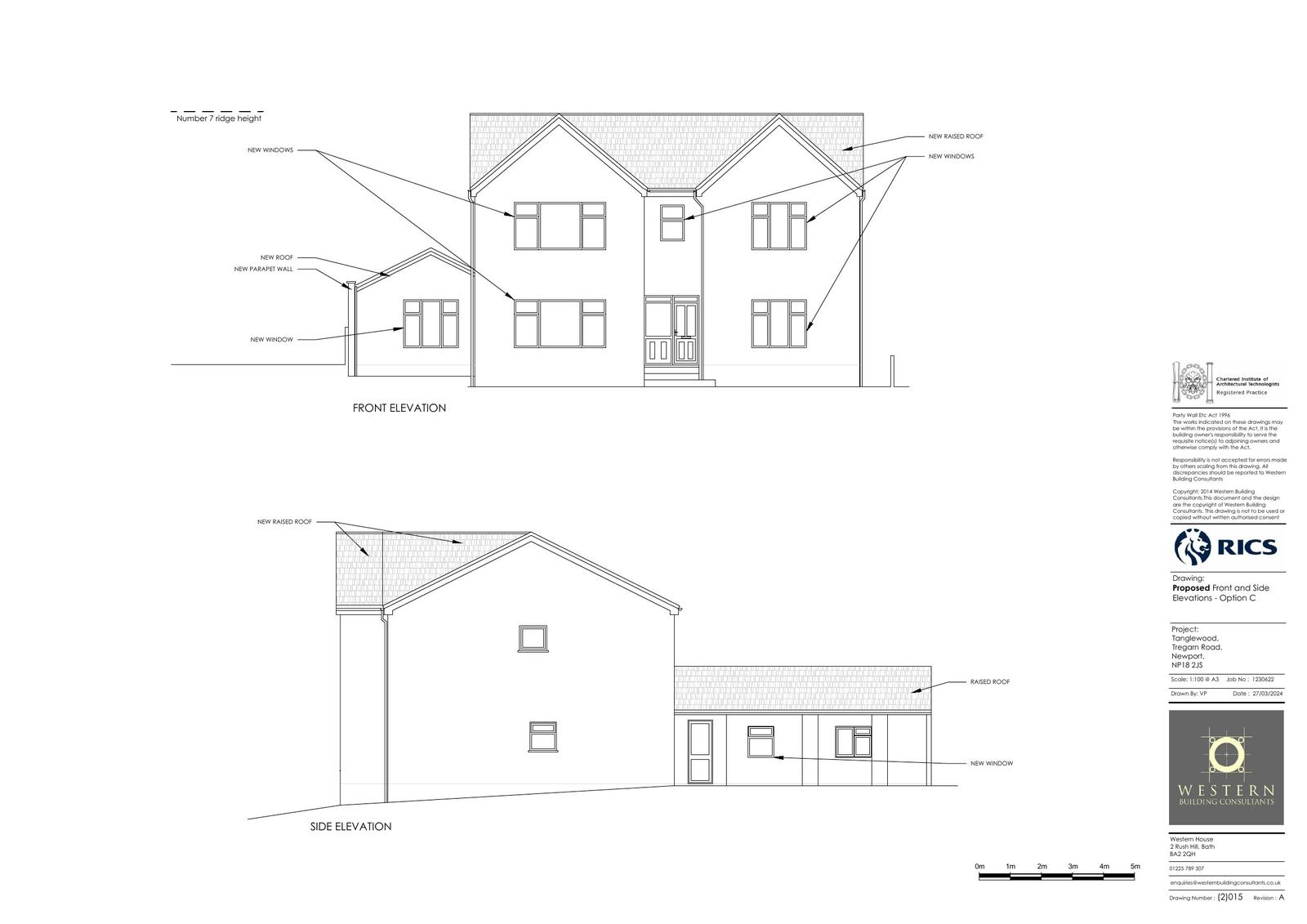
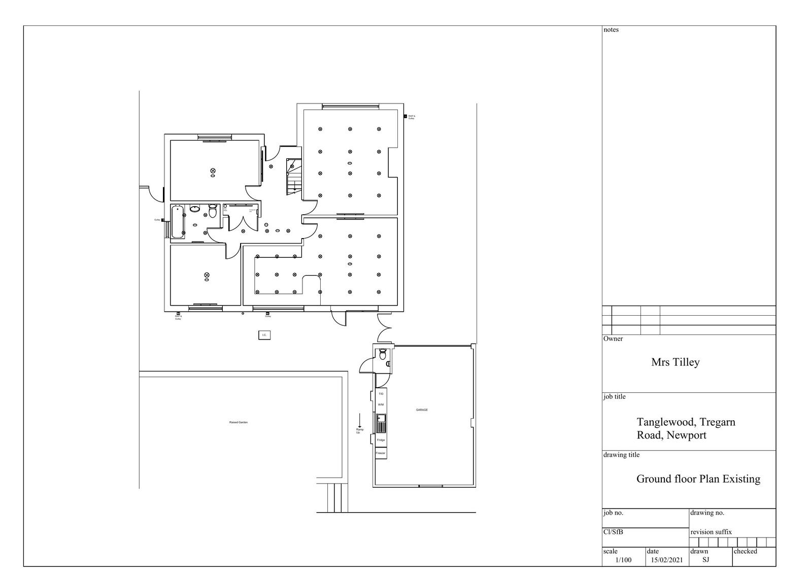
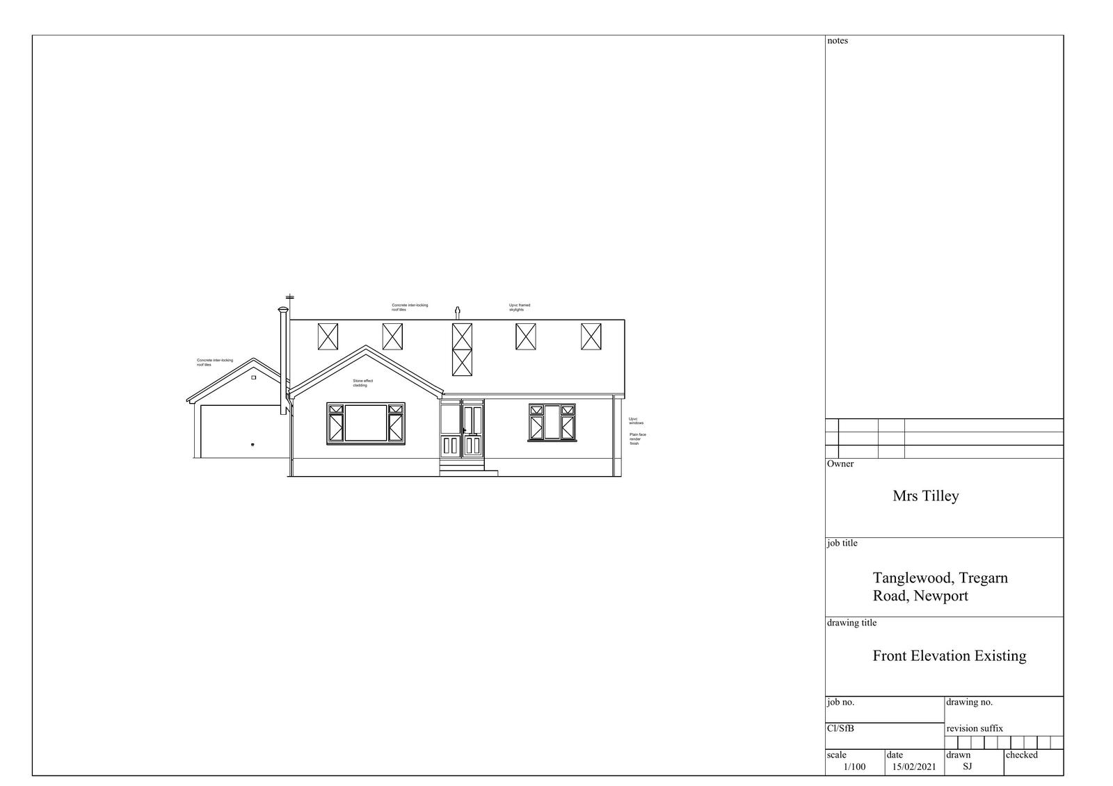
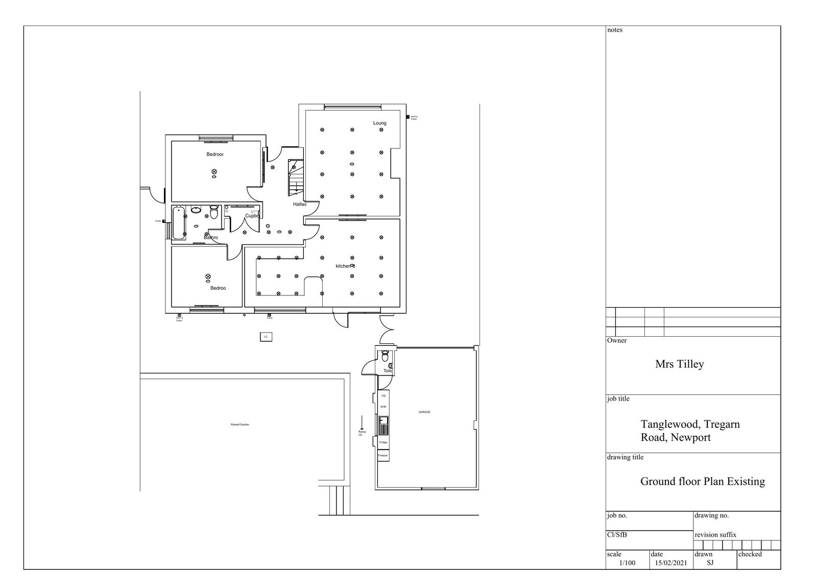
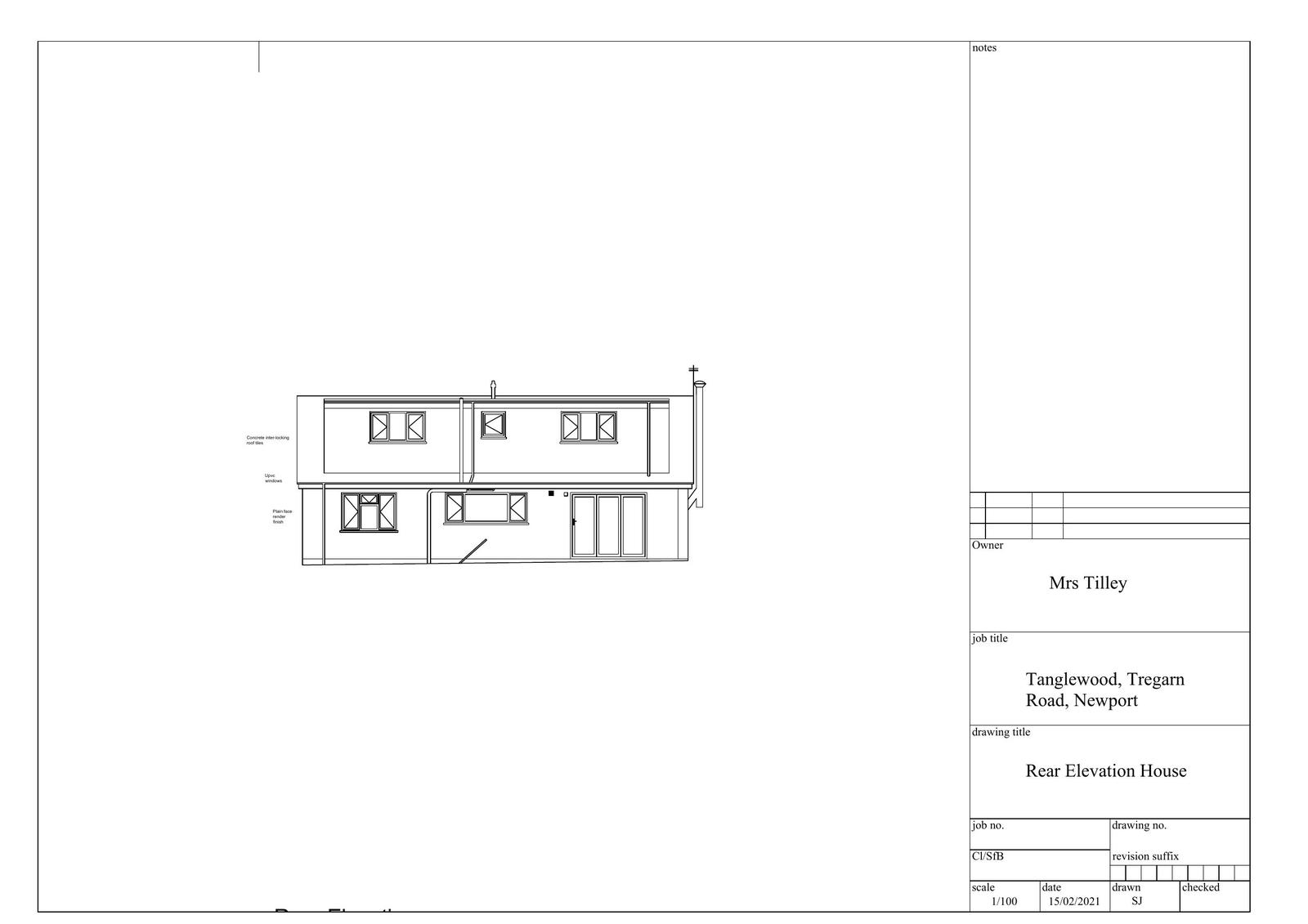
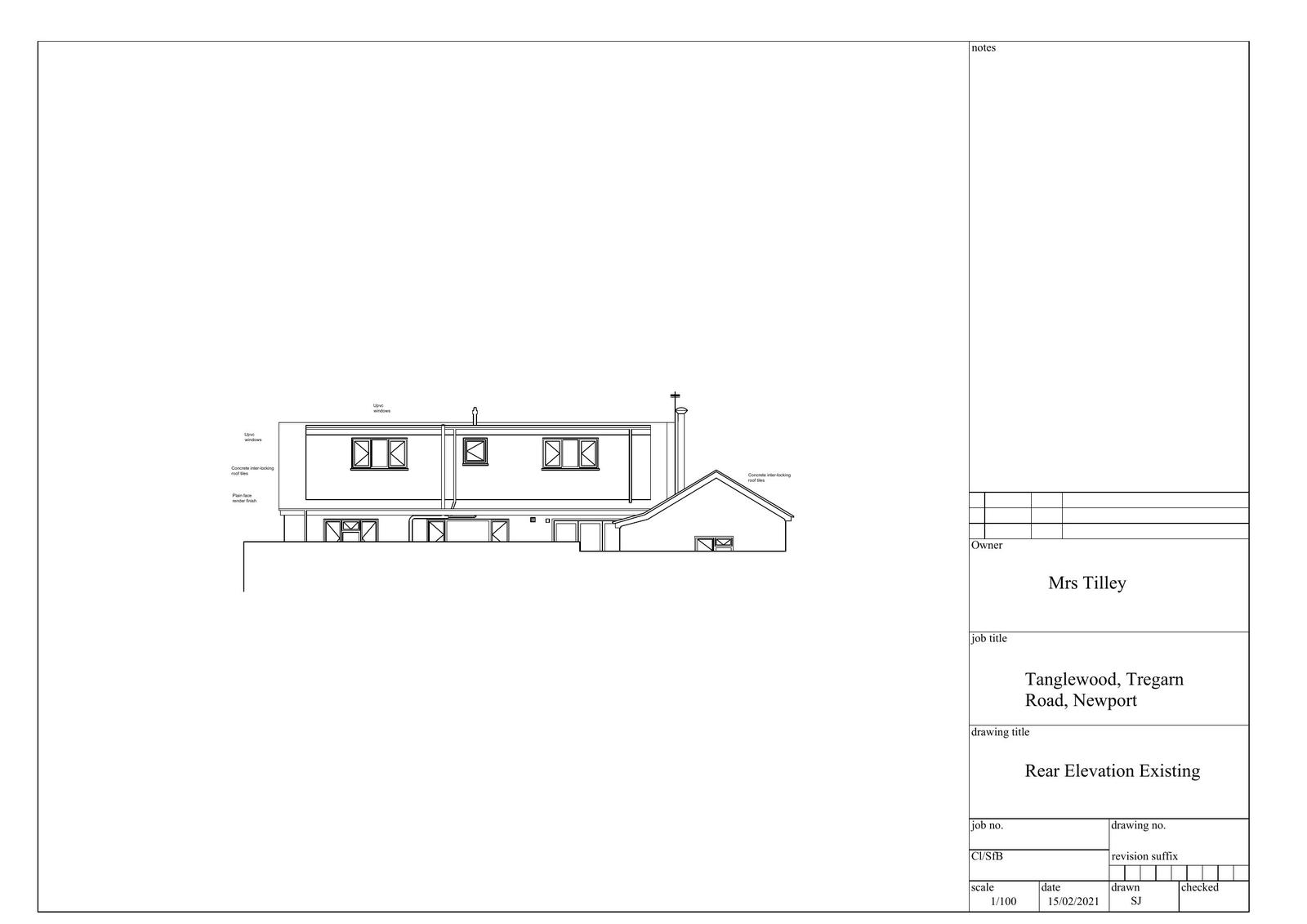
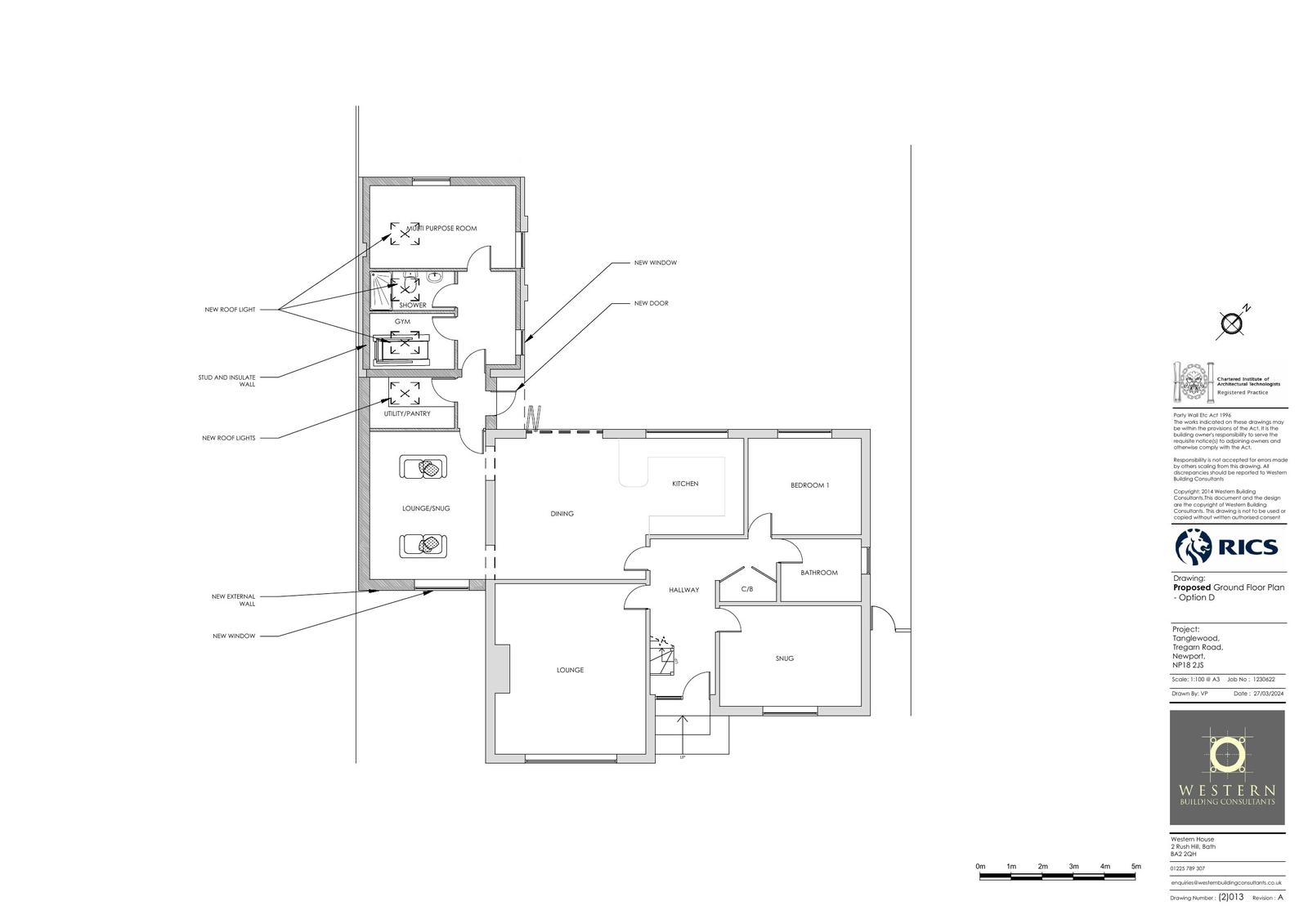
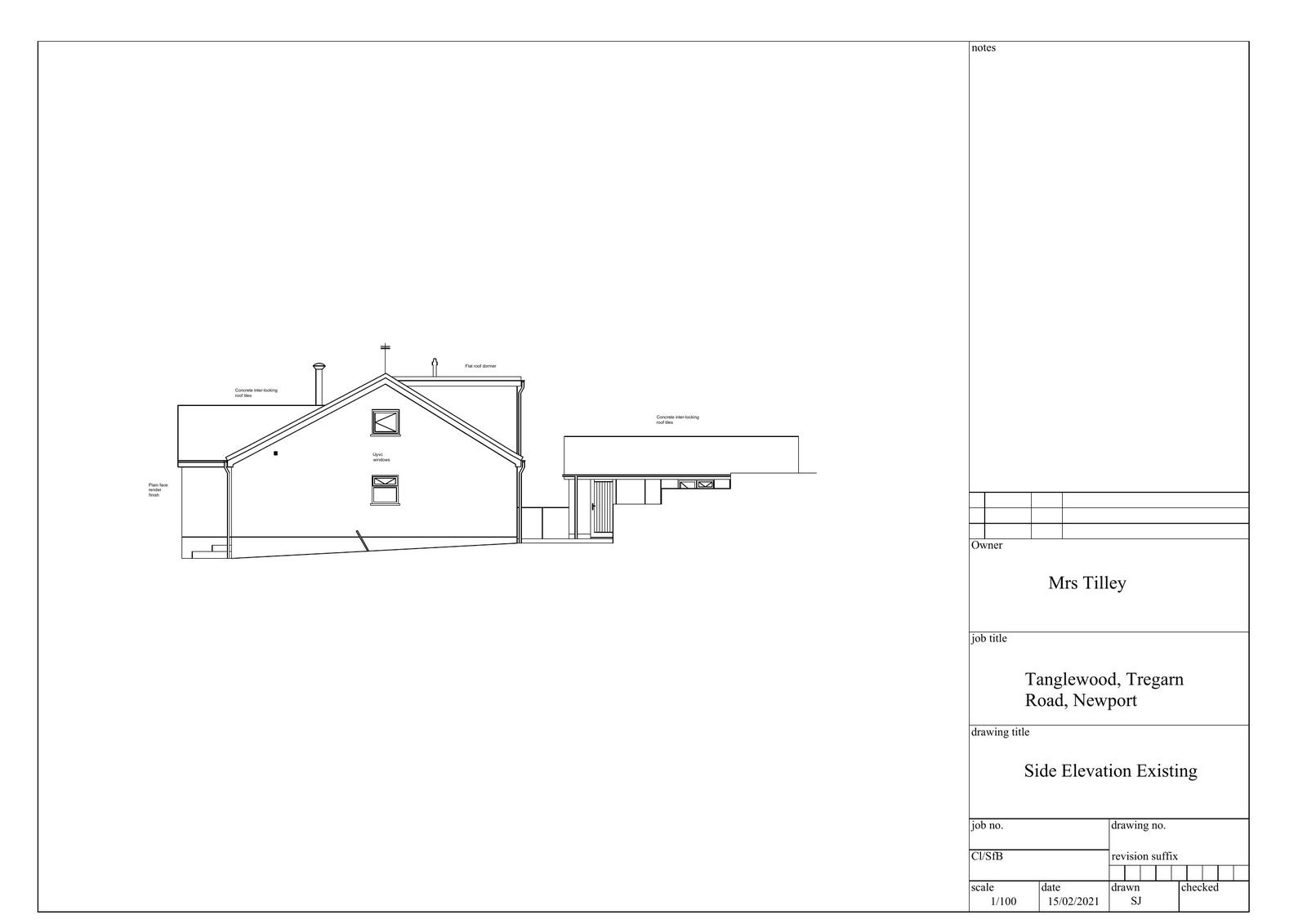
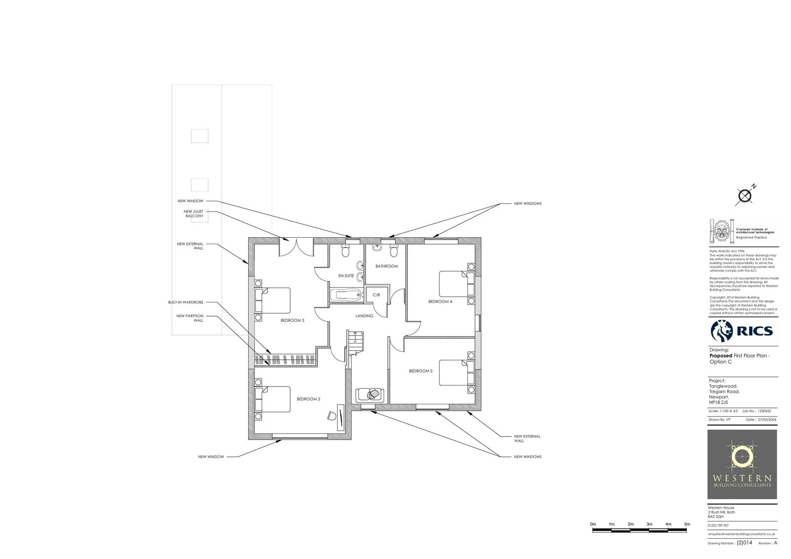
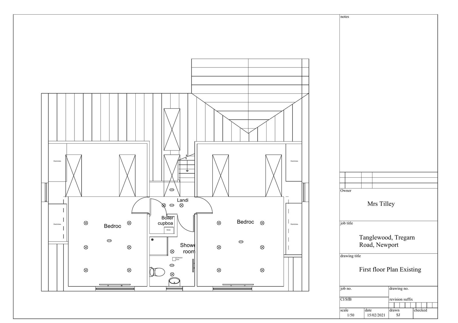
INCREASED HEIGHT OF DORMER BUNGALOW TO CREATE ADDITIONAL FIRST FLOOR ACCOMMODATION. CONVERSION OF GARAGE AND A SINGLE STOREY EXTENSION TO LINK GARAGE TO HOUSE

Documents

Application Form
Archived · Original link
Supporting Information
Archived · Original link
Consult Response Statutory
Archived · Original link
Decision Notice
Archived · Original link
Consult Response Statutory
Archived · Original link
Drawing - OS Site Location Plan
Archived · Original link
Consult Response Statutory
Archived · Original link
Officer Report
Archived · Original link
Drawing
Archived · Original link
Site/Press Notice
Archived · Original link
Drawing - OS Site Location Plan
Archived · Original link

Have your say

Your comment matters. Councils must consider every representation that raises material planning considerations.

Write a comment