← Newport City Council

Status

Decided Demolition
Received
09 Jan 2025
New homes
0

Full proposal

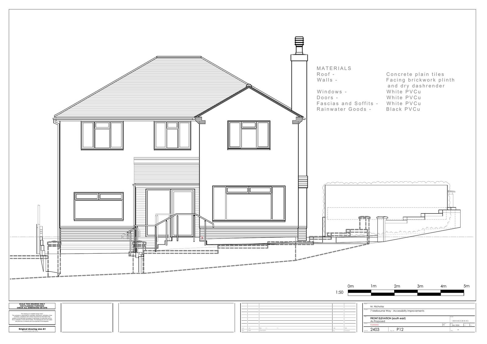
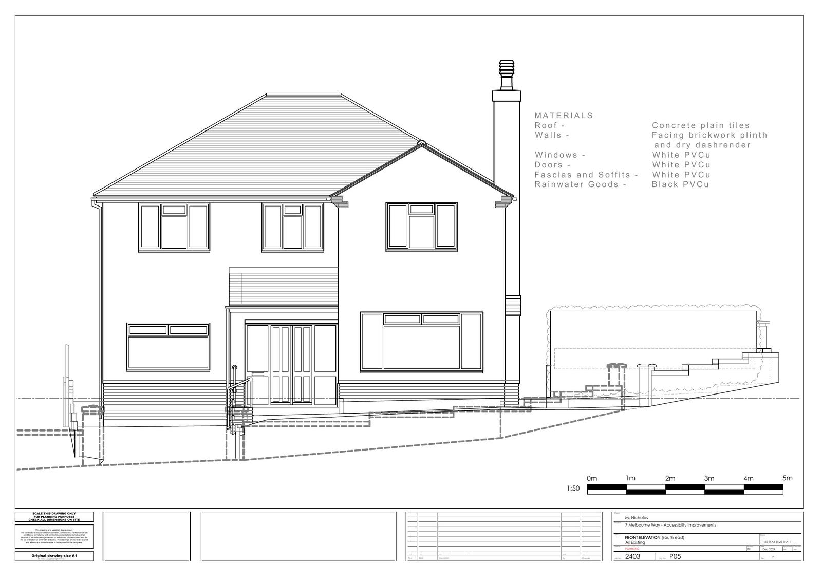
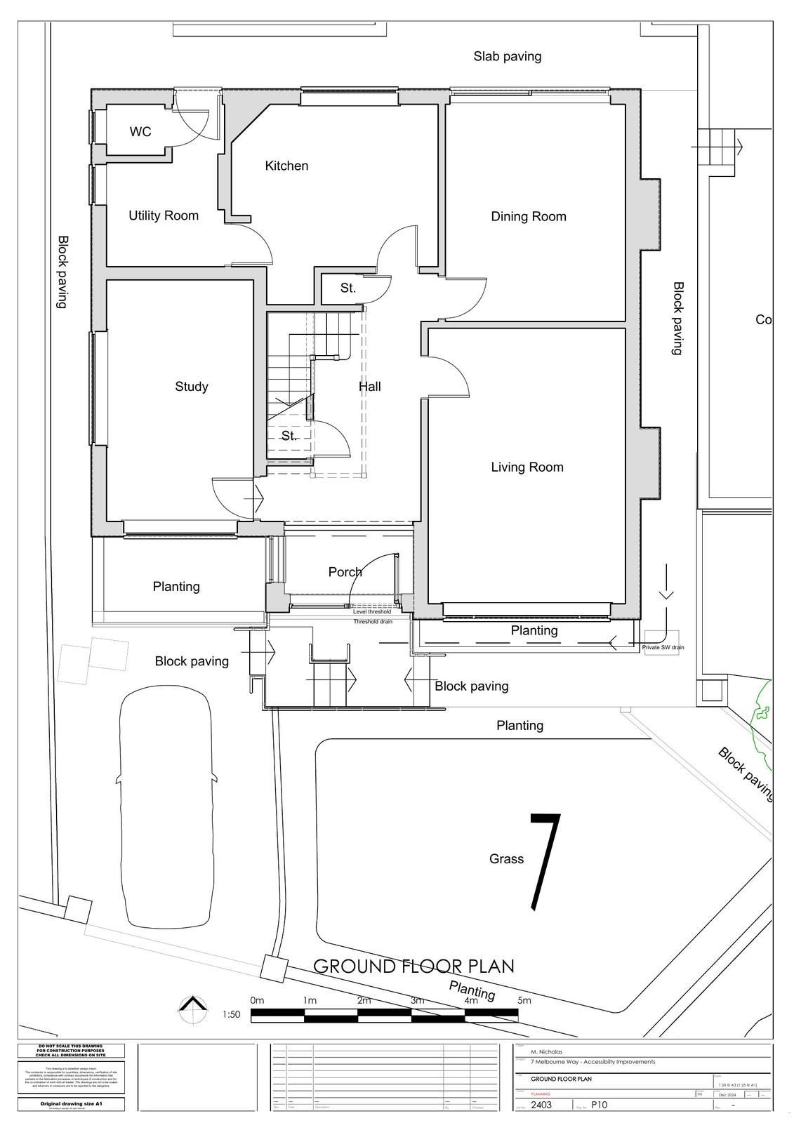
DEMOLITION OF EXISTING PORCH AND CONSTRUCTION OF NEW PORCH WITH LEVEL FLOOR, NEW STEPPED APPROACH AND HANDRAILS TO IMPROVE ACCESSIBILITY AND SAFETY

Have your say

Your comment matters. Councils must consider every representation that raises material planning considerations.

Write a comment