← Newport City Council

Status

Decided Commercial
Received
09 Jan 2025
New homes
0

Full proposal

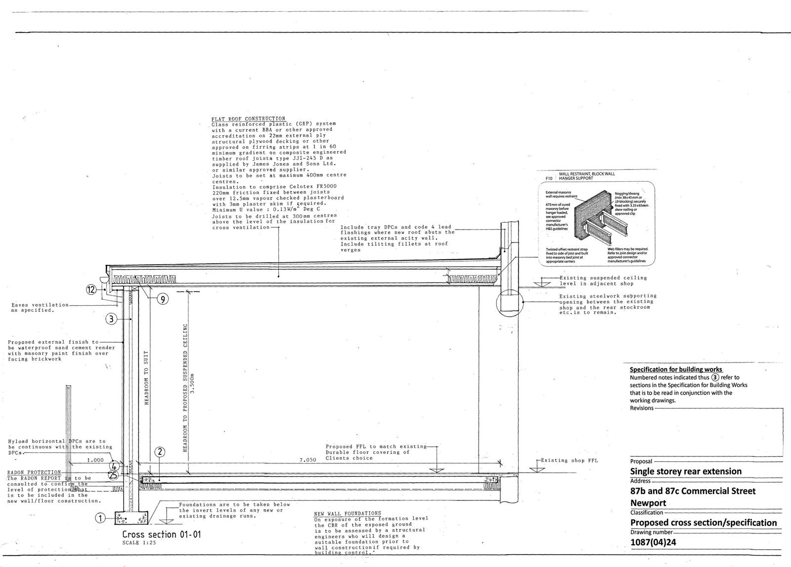
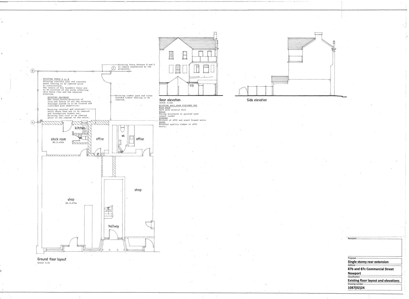
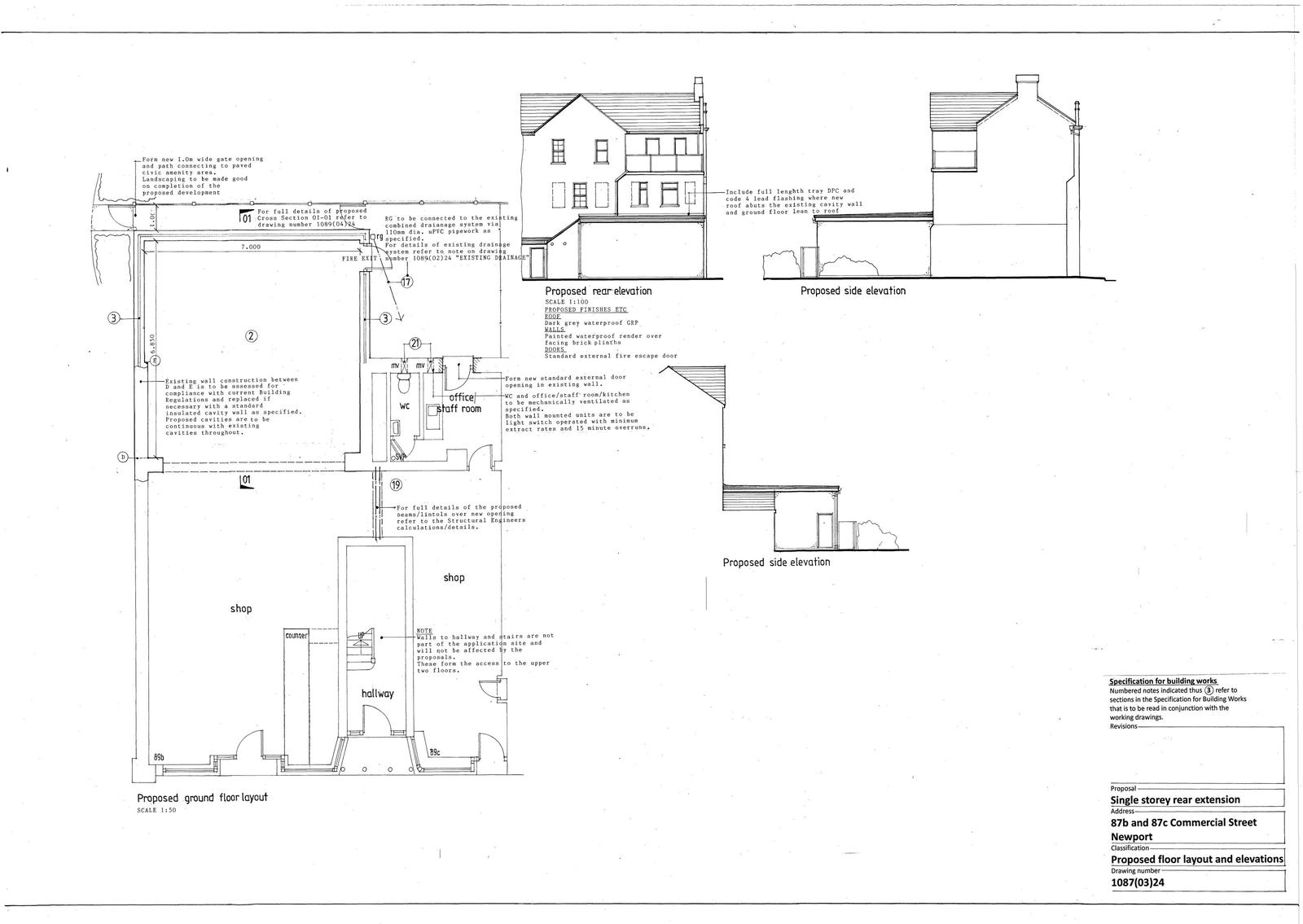
DEMOLITION OF EXISTING SINGLE STOREY ANNEXE CONTAINING STOCK ROOM, KITCHEN AND STAFF WC AND CONSTRUCTION OF A NEW SINGLE STOREY REAR EXTENSION FOR ADDITIONAL RETAIL AREA

Documents

Drawing - OS Site Location Plan
Archived · Original link
Application Form
Archived · Original link
Supporting Information
Archived · Original link
Decision Notice
Archived · Original link
Consult Response Statutory
Archived · Original link
Consult Response Statutory
Archived · Original link
Officer Report
Archived · Original link
SAB
Consult Response Statutory
Archived · Original link
Consult Response Statutory
Archived · Original link

Have your say

Your comment matters. Councils must consider every representation that raises material planning considerations.

Write a comment