← Newport City Council

Status

Decided Industrial
Received
11 Jan 2025
New homes
0

Full proposal

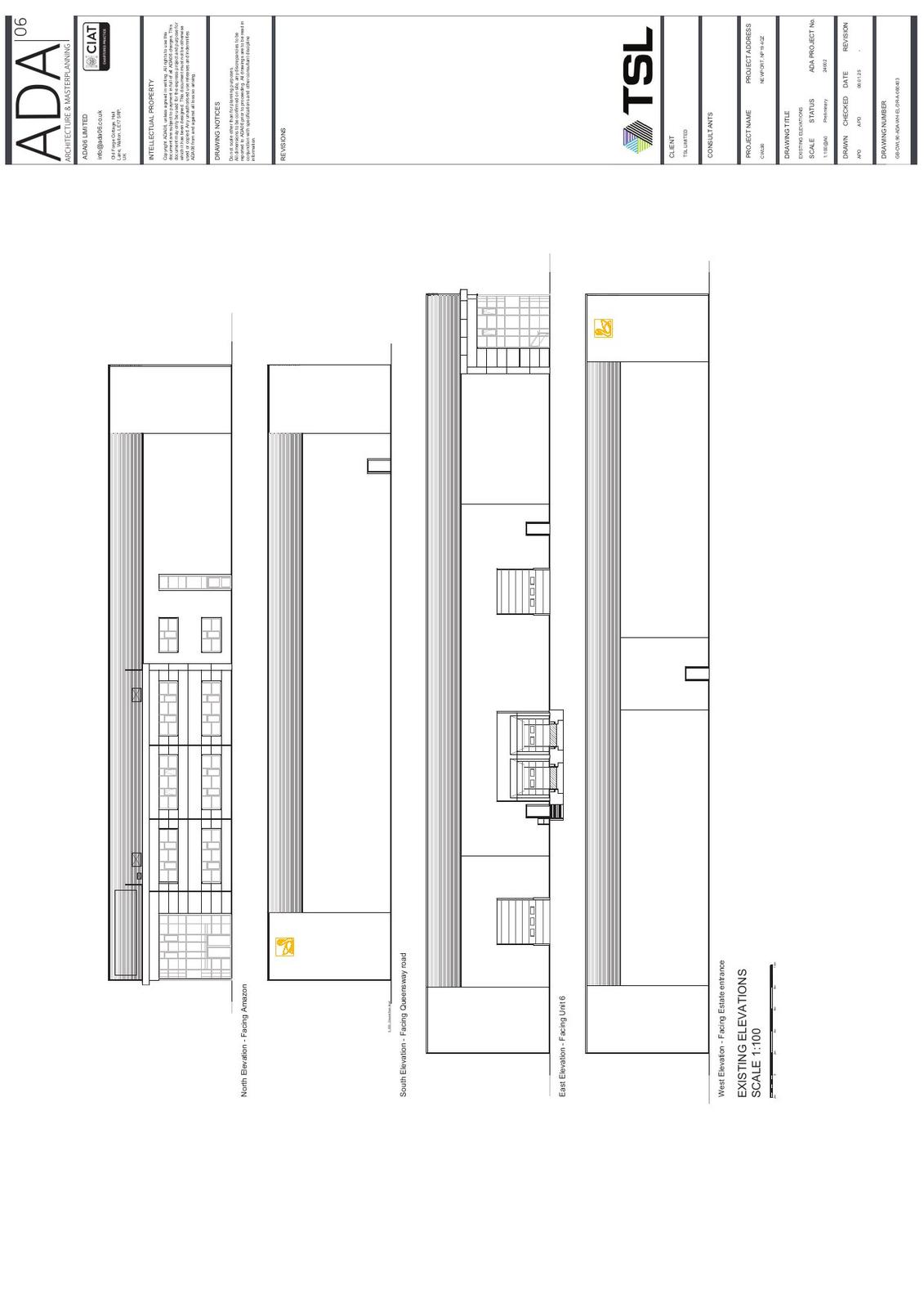
ERECTION OF SECURITY FENCING TO SITE PERIMETER WITH ASSOCIATED ACCESS GATES, INSTALLATION OF SPRINKLER TANKS, PUMP HOUSE, HOUSED GENERATOR AND INSTALLATION OF EXTERNAL AIR HANDLING EQUIPMENT

Documents

Consult Response Statutory
Archived · Original link
Consult Response Statutory
Archived · Original link
Decision Notice
Archived · Original link
Superseded Document
Archived · Original link
Consult Response Statutory
Archived · Original link
Consult Response Statutory
Archived · Original link
Consult Response Statutory
Archived · Original link
Consult Response Statutory
Archived · Original link
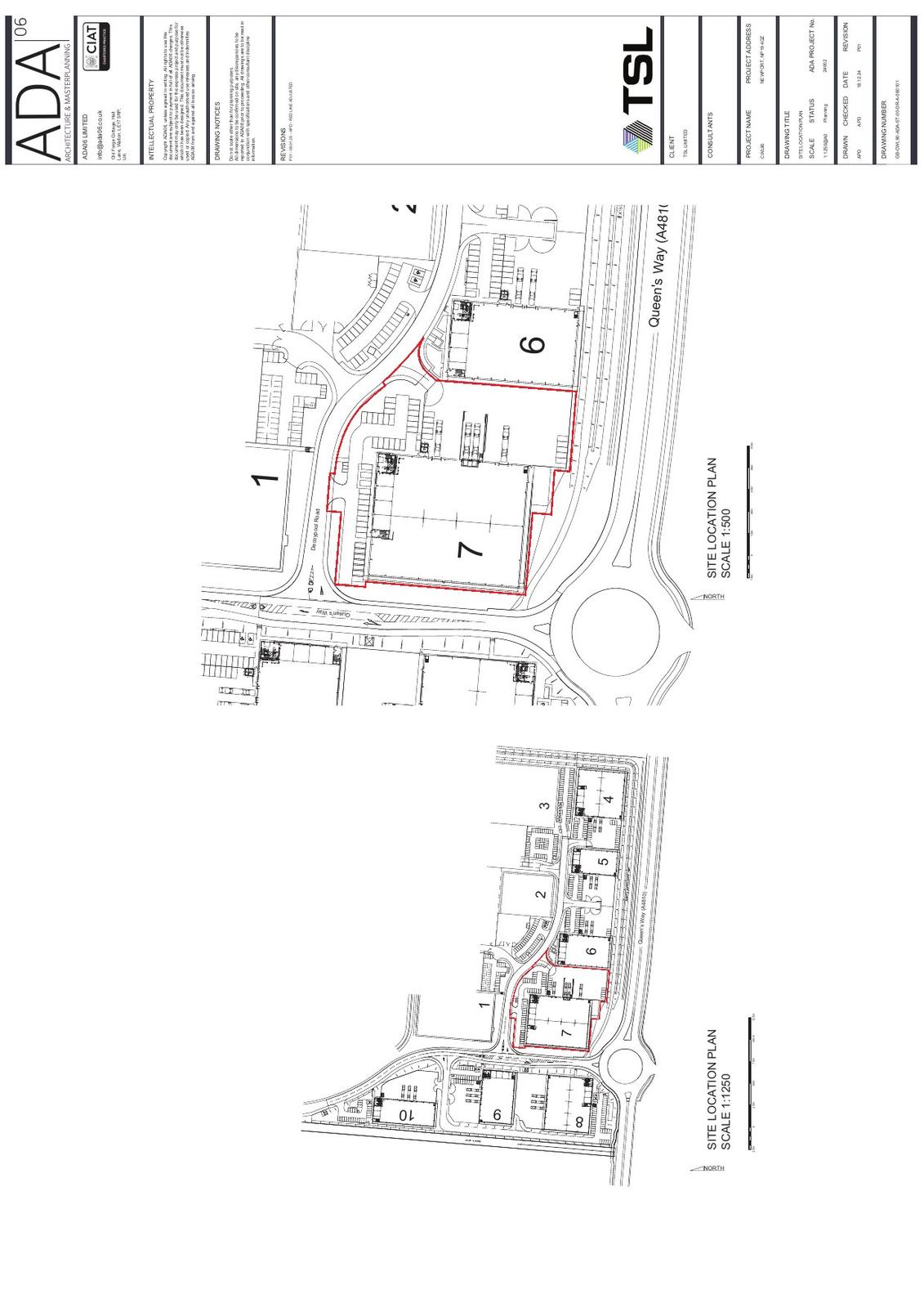
Drawing - OS Site Location Plan
Archived · Original link
Consult Response Statutory
Archived · Original link
Consult Response Statutory
Archived · Original link
Consult Response Statutory
Archived · Original link
Consult Response Statutory
Archived · Original link
Consult Response Statutory
Archived · Original link
Consult Response Statutory
Archived · Original link
Consult Response Statutory
Archived · Original link
Consult Response Statutory
Archived · Original link
Consult Response Statutory
Archived · Original link
Consult Response Statutory
Archived · Original link
Officer Report
Archived · Original link
Application Form
Archived · Original link
Consult Response Statutory
Archived · Original link
Consult Response Statutory
Archived · Original link
Site/Press Notice
Archived · Original link
Site/Press Notice
Archived · Original link
Supporting Information
Archived · Original link
Consult Response Statutory
Archived · Original link

Have your say

Your comment matters. Councils must consider every representation that raises material planning considerations.

Write a comment