← Newport City Council

Status

Decided House extension
Received
10 Apr 2025
New homes
0

Full proposal

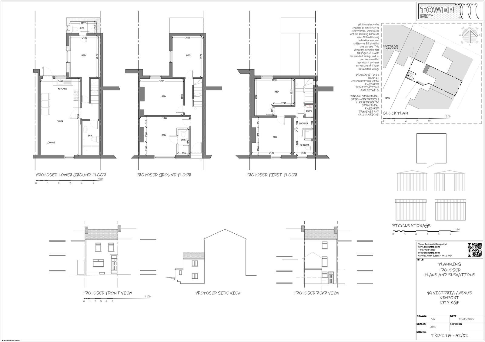
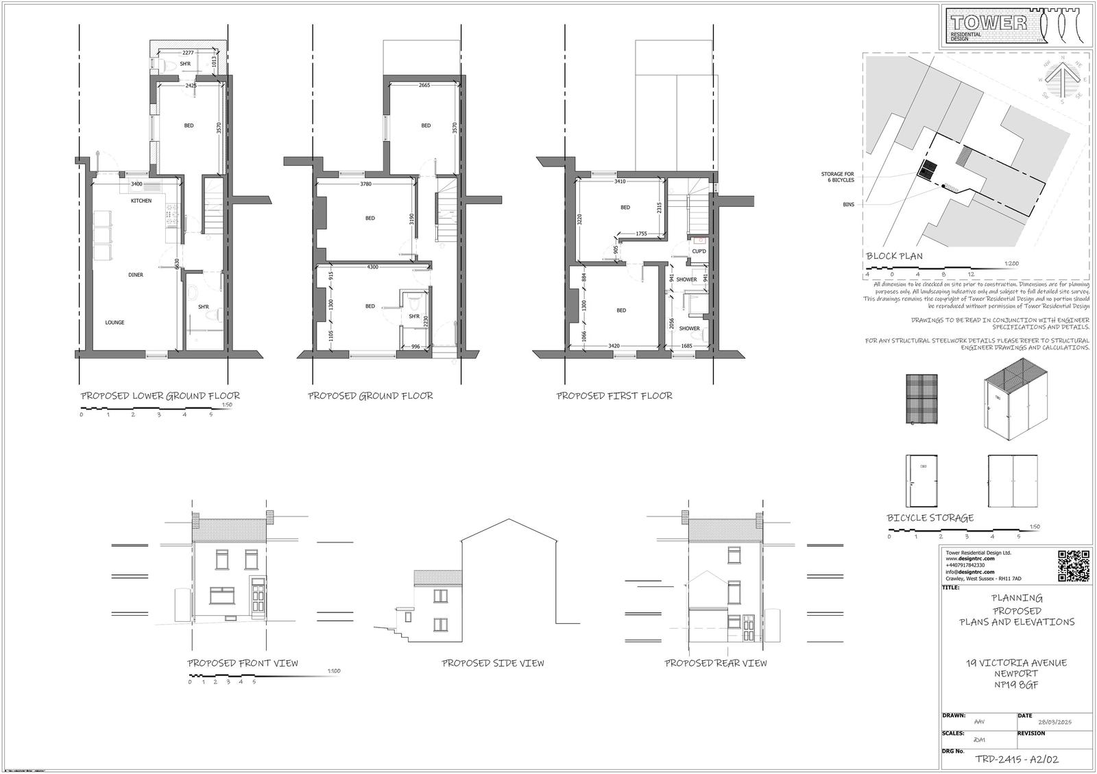
INCREASE IN THE SIZE OF A HOUSE IN MULTIPLE OCCUPATION FROM A 4 BEDROOM (C4 USE) RESTRICTED BY CONDITION 2 OF PLANNING PERMISSION REFERENCE: 19/0006 TO A 6 BEDROOM HOUSE IN MULTIPLE OCCUPATION (C4 USE) INCLUDING REAR EXTENSION AND MINOR EXTERNAL CHANGES

Documents

19 Victoria Avenue-PL-TRD-2415 - A1 - Existing Plans
Drawing
Not yet archived · Original link
Application Form
Application Form
Not yet archived · Original link
Decision Notice
Decision Notice
Not yet archived · Original link
DOCO report - Gwent Police
Consult Response Statutory
Not yet archived · Original link
Further Highways comments
Consult Response Statutory
Not yet archived · Original link
Green Infrastructure Statement FINAL
Supporting Information
Not yet archived · Original link
Highways
Consult Response Statutory
Not yet archived · Original link
officer report - final version
Officer Report
Not yet archived · Original link
Parking Survey FINAL
Supporting Information
Not yet archived · Original link
Planning Statement Victoria Avenue FINAL
Supporting Information
Not yet archived · Original link
Site Notice - SNSTD
Site/Press Notice
Not yet archived · Original link
Site Notice - SNSTD
Site/Press Notice
Not yet archived · Original link
supporting email from agent
Supporting Information
Not yet archived · Original link
Sustainability Appraisal FINAL
Supporting Information
Not yet archived · Original link
Updated Parking Survey June 2025
Supporting Information
Not yet archived · Original link
Waste Manager
Consult Response Statutory
Not yet archived · Original link

Have your say

Your comment matters. Councils must consider every representation that raises material planning considerations.

Write a comment