← Newport City Council

Status

Awaiting decision Change of use
Received
30 Apr 2025
New homes
4

Full proposal

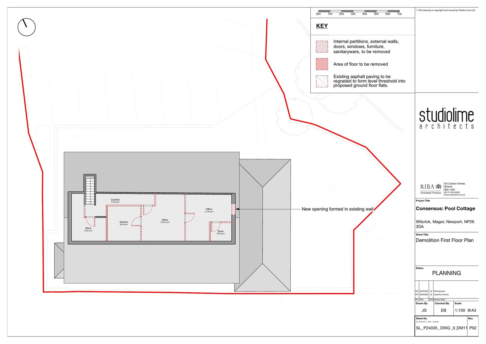
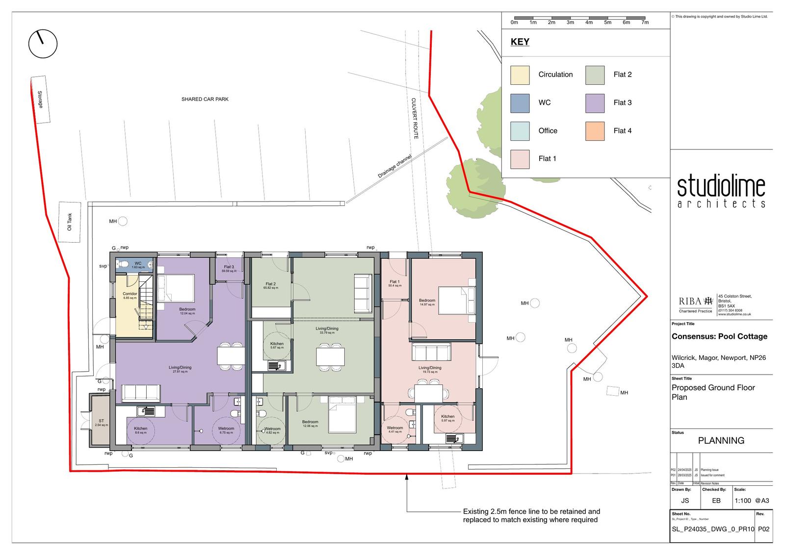
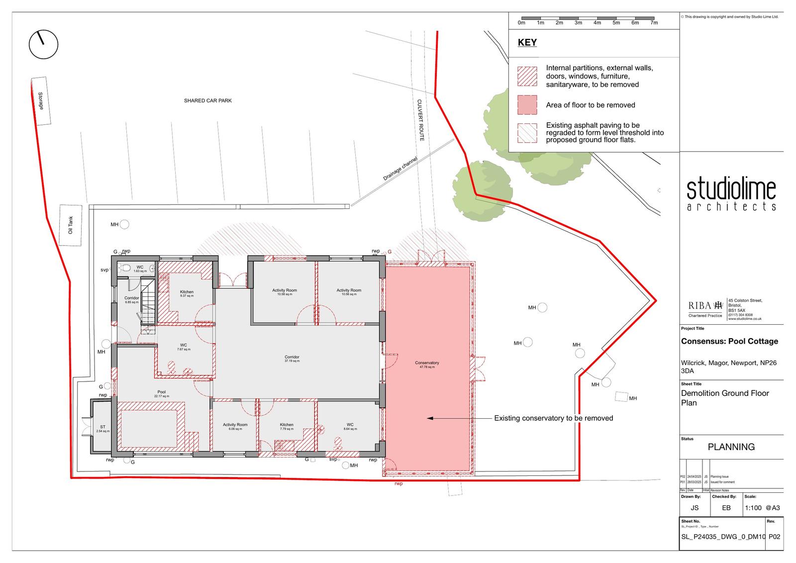
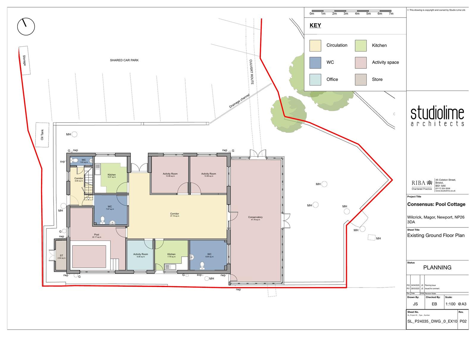
CHANGE OF USE INCLUDING EXTENSION OF BUILDING FROM DAY CENTRE (D1) INTO 4NO ASSISTED LIVING FLATS (C2) THAT WILL FORM PART OF THE EXISTING CARE HOME ON SITE TO BE USED AS SOLE OR MAIN RESIDENCES FOR PERSONS RECEIVING CARE

Documents

Application Form
Archived · Original link
Supporting Information
Archived · Original link
Consult Response Statutory
Archived · Original link
Design Access Statement
Archived · Original link
Supporting Information
Archived · Original link
Supporting Information
Archived · Original link
Consult Response Statutory
Archived · Original link
Consult Response Statutory
Archived · Original link
Consult Response Statutory
Archived · Original link
Consult Response Statutory
Archived · Original link
Consult Response Statutory
Archived · Original link
Superseded Document
Archived · Original link
Superseded Document
Archived · Original link
Consult Response Statutory
Archived · Original link
Consult Response Statutory
Archived · Original link
Consult Response Statutory
Archived · Original link
Consult Response Statutory
Archived · Original link
Supporting Information
Archived · Original link
Consult Response Statutory
Archived · Original link
Supporting Information
Archived · Original link
Consult Response Statutory
Archived · Original link
Consult Response Statutory
Archived · Original link
Consult Response Statutory
Archived · Original link
Site/Press Notice
Archived · Original link
Consult Response Statutory
Archived · Original link
Consult Response Statutory
Archived · Original link

Have your say

Your comment matters. Councils must consider every representation that raises material planning considerations.

Write a comment