← Newport City Council

Status

Unknown Change of use
Received
17 May 2025
New homes
1

Full proposal

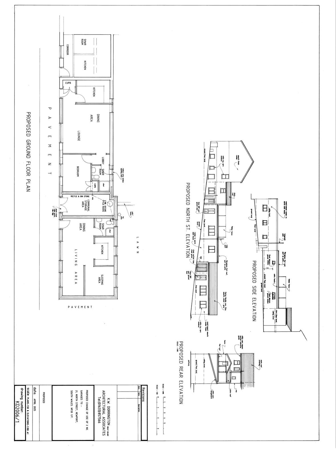
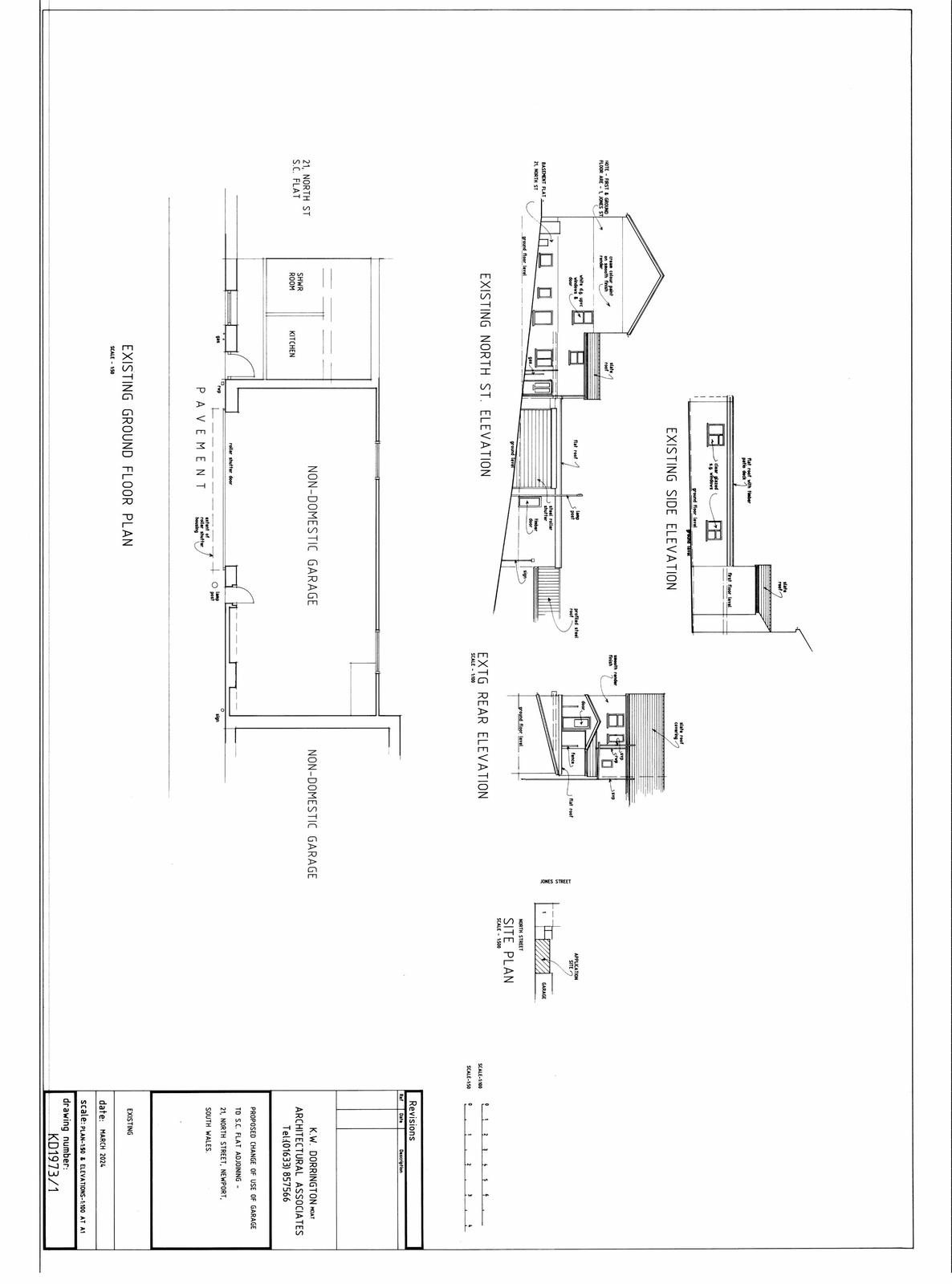
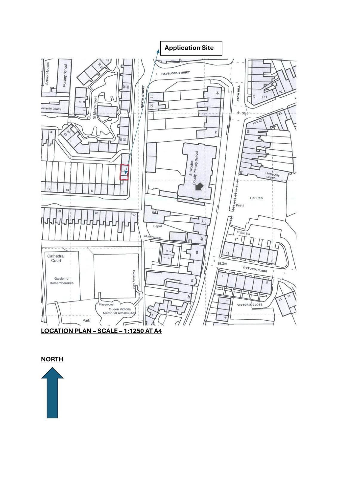
CHANGE OF USE OF VACANT COMMERCIAL GARAGE TO SELF-CONTAINED FLAT, WITH ASSOCIATED FACADE ALTERATIONS

Documents

Supporting Information
Archived · Original link
Application Form
Archived · Original link
Decision Notice
Archived · Original link
Officer Report
Archived · Original link
Consult Response Statutory
Archived · Original link
Consult Response Statutory
Archived · Original link
Consult Response Statutory
Archived · Original link
SAB
Consult Response Statutory
Archived · Original link
Drawing - OS Site Location Plan
Archived · Original link
Consult Response Statutory
Archived · Original link
Consult Response Statutory
Archived · Original link

Have your say

Your comment matters. Councils must consider every representation that raises material planning considerations.

Write a comment