25/0403
Newport City Council
Status
Decided
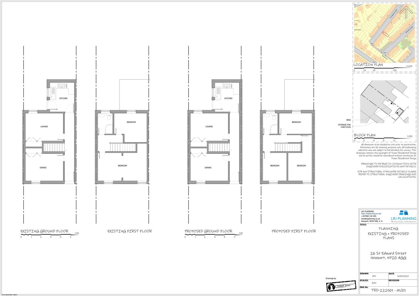
Change of use
Received
26 May 2025
New homes
0
Full proposal
CHANGE OF USE FROM DWELLING (C3 USE) TO A 4 BEDROOM HOUSE IN MULTIPLE OCCUPATION (C4 USE)
Documents
Have your say
Your comment matters. Councils must consider every representation that raises material planning considerations.